Contact Agent

Contact Michael Chandler Estate Agents
3 Bed Detached House
15 Rockmount Close
Saintfield, Ballynahinch, BT24 7AW
price
£1,300pm

Key Features & Description
Description
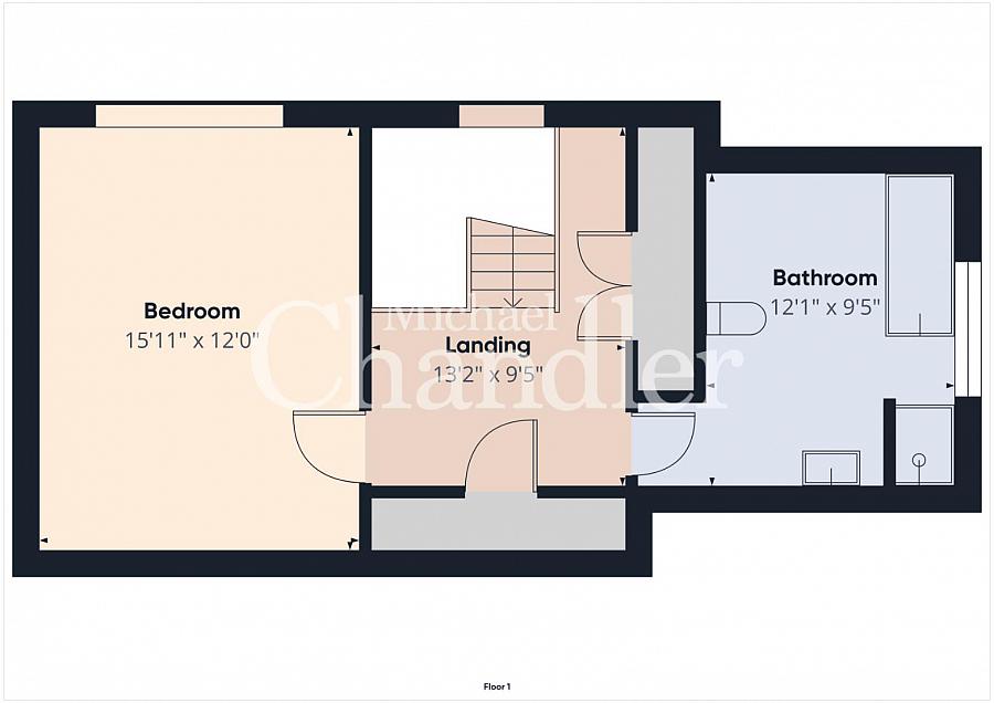
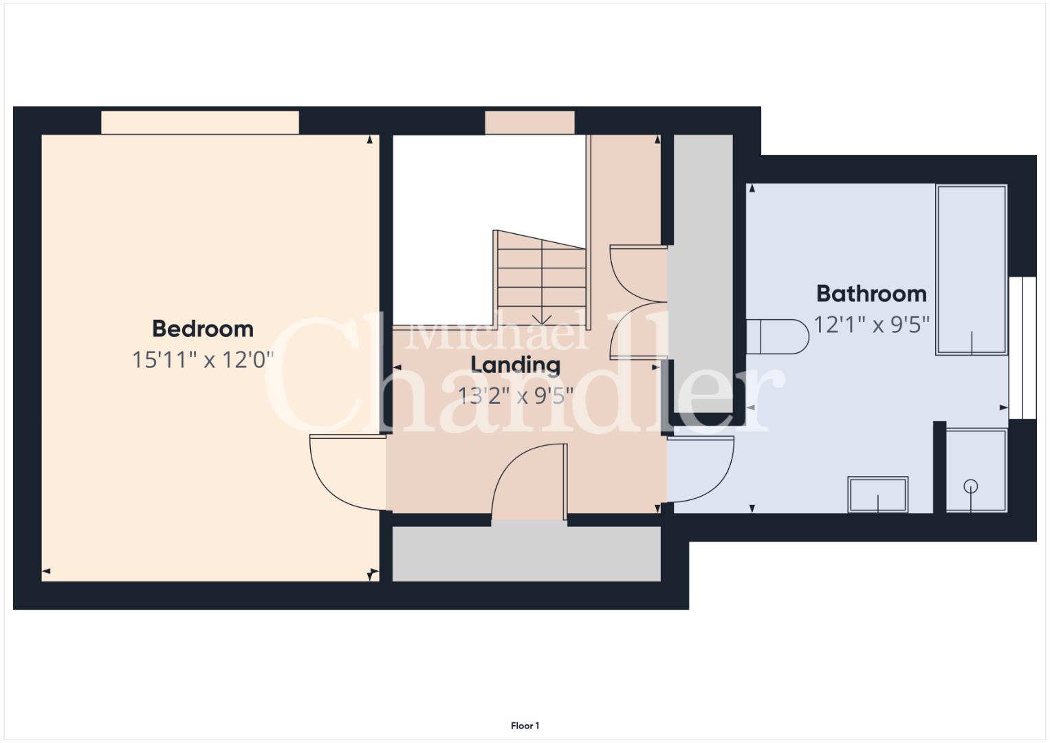
Nestled in the tranquil setting of Rockmount Close, Saintfield, this charming house presents an excellent opportunity for families seeking a spacious and adaptable home. Currently configured as a two-bedroom property, it boasts the potential to easily transform into a four-bedroom residence, catering to the evolving needs of modern family life.
The property features two inviting reception rooms, providing ample space for relaxation and entertainment. There is also the possibility of creating a third reception area, allowing for versatile living arrangements. The well-appointed kitchen, complemented by a separate utility room, ensures that daily tasks are both convenient and efficient. Downstairs further benefits from a separate WC. Upstairs there is a master bedroom, family bathroom suite and an abundance of storage facilities.
The exterior of the home is equally impressive, with beautiful enclosed rear gardens that offer a serene outdoor space for children to play or for hosting gatherings with friends and family.
The driveway provides space for up to three vehicles, making this property not only practical but also ideal for those with multiple cars or visiting guests and in addition the garage an ideal space for extra storage.
In summary, this delightful family home at 15 Rockmount Close is a rare find, combining comfort, flexibility, and a peaceful location. It is perfect for those looking to settle in a friendly community while enjoying the benefits of a spacious and well-designed living environment.
A deposit and the first month´s rent are payable in advance. The property is available from October 2025 and is part furnished.
To arrange a viewing or for further information please call Michael Chandler Estate Agents on 02890 450550 or visit www.michael-chandler.co.uk
Nestled in the tranquil setting of Rockmount Close, Saintfield, this charming house presents an excellent opportunity for families seeking a spacious and adaptable home. Currently configured as a two-bedroom property, it boasts the potential to easily transform into a four-bedroom residence, catering to the evolving needs of modern family life.
The property features two inviting reception rooms, providing ample space for relaxation and entertainment. There is also the possibility of creating a third reception area, allowing for versatile living arrangements. The well-appointed kitchen, complemented by a separate utility room, ensures that daily tasks are both convenient and efficient. Downstairs further benefits from a separate WC. Upstairs there is a master bedroom, family bathroom suite and an abundance of storage facilities.
The exterior of the home is equally impressive, with beautiful enclosed rear gardens that offer a serene outdoor space for children to play or for hosting gatherings with friends and family.
The driveway provides space for up to three vehicles, making this property not only practical but also ideal for those with multiple cars or visiting guests and in addition the garage an ideal space for extra storage.
In summary, this delightful family home at 15 Rockmount Close is a rare find, combining comfort, flexibility, and a peaceful location. It is perfect for those looking to settle in a friendly community while enjoying the benefits of a spacious and well-designed living environment.
A deposit and the first month´s rent are payable in advance. The property is available from October 2025 and is part furnished.
To arrange a viewing or for further information please call Michael Chandler Estate Agents on 02890 450550 or visit www.michael-chandler.co.uk
Virtual Tour
Broadband Speed Availability
Potential Speeds for 15 Rockmount Close
Max Download
10000
Mbps
Max Upload
10000
MbpsThe speeds indicated represent the maximum estimated fixed-line speeds as predicted by Ofcom. Please note that these are estimates, and actual service availability and speeds may differ.
Property Location

Contact Agent

Contact Michael Chandler Estate Agents
Request More Information
Requesting Info about...
15 Rockmount Close, Saintfield, Ballynahinch, BT24 7AW
By registering your interest, you acknowledge our Privacy Policy

By registering your interest, you acknowledge our Privacy Policy