Contact Agent
Contact Ulster Property Sales (UPS) Ballynahinch
4 Bed Detached House
59 Grove Road
Spa, Ballynahinch, BT24 8PW
offers around
£350,000
Key Features & Description
Four Bedrooms
Two Reception
Large Mature Gardens
Two Garages
Two Stores
Excellent Location
Approximately One Acre
Detached House
Kitchen/ dining area
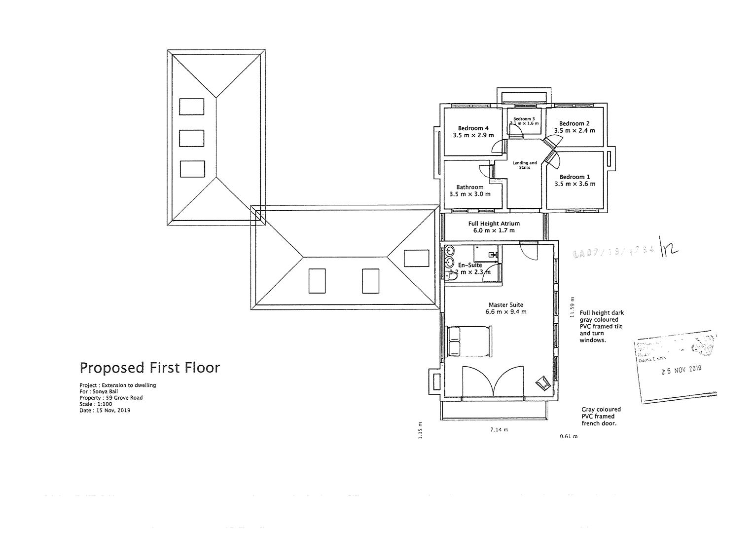
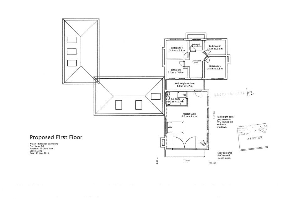
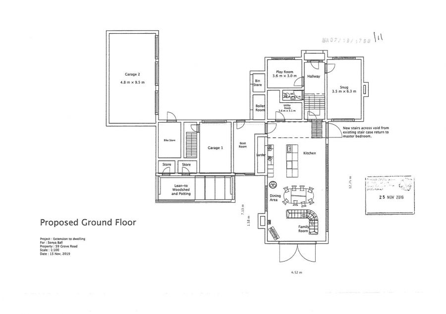
Plans for extension
Description
This spacious detached residence is set on a mature and private site extending to approximately 1 acre, surrounded by established shrubs, trees and attractive planting that create a peaceful and secluded setting.
The property currently offers generous accommodation comprising two reception rooms, a fitted kitchen with dining area/sunroom, utility room and ground floor w.c, four well-proportioned bedrooms and a family bathroom. In addition, the home benefits from two garages and two useful store rooms with an office above, providing excellent storage and potential for a variety of uses.
The current owner previously explored extending the property and still holds architectural plans for a proposed extension, offering prospective purchasers an exciting opportunity to further enhance and personalise the home if desired.
One of the standout features of this property is undoubtedly the impressive site, with its mature surroundings and pleasant views, rarely found so close to town. Located just approximately one mile from Ballynahinch town centre, the property enjoys the perfect balance of countryside tranquillity while remaining convenient to the town´s wide range of amenities.
This superb location will particularly appeal to families and those seeking a quieter lifestyle, while still benefiting from easy access to local leisure facilities including Spa Golf Club and Ballynahinch Rugby Club.
This spacious detached residence is set on a mature and private site extending to approximately 1 acre, surrounded by established shrubs, trees and attractive planting that create a peaceful and secluded setting.
The property currently offers generous accommodation comprising two reception rooms, a fitted kitchen with dining area/sunroom, utility room and ground floor w.c, four well-proportioned bedrooms and a family bathroom. In addition, the home benefits from two garages and two useful store rooms with an office above, providing excellent storage and potential for a variety of uses.
The current owner previously explored extending the property and still holds architectural plans for a proposed extension, offering prospective purchasers an exciting opportunity to further enhance and personalise the home if desired.
One of the standout features of this property is undoubtedly the impressive site, with its mature surroundings and pleasant views, rarely found so close to town. Located just approximately one mile from Ballynahinch town centre, the property enjoys the perfect balance of countryside tranquillity while remaining convenient to the town´s wide range of amenities.
This superb location will particularly appeal to families and those seeking a quieter lifestyle, while still benefiting from easy access to local leisure facilities including Spa Golf Club and Ballynahinch Rugby Club.
Rooms
Entrance Hall
Leaded stain glass front door and side panels, solid wood flooring, stairs leading to first floor.
Living Room 21'0" X 12'0" (6.40m X 3.66m)
Wood flooring, wood burning stove, slate hearth, double doors to rear. Spot ceiling lights.
Kitchen / Dining / sunroom 8'7" X 12'0" (2.62m X 3.66m)
Range of high and low level units including double drainer stainless steel sink unit , recess for dish washer and fridge. Integrated oven and grill with four gas hobs, stainless steel cooker hood with extractor fan, tiled flooring.
Sitting Room/Study 12'1" X 12'0" (3.68m X 3.66m)
Wood flooring, wall shelving.
Utility Area 5'8" X 4'3" (1.73m X 1.30m)
Leading to WC.
WC
White low flush wc, wash hand basin, tiled flooring.
Landing
Feature stained glass window to the rear.
FIRST FLOOR
Bedroom 1 10'10" X 10'10" (3.30m X 3.29m)
Front facing room.
Bedroom 2 7'0" X 8'9" (2.13m X 2.67m)
Front facing room.
Bedroom 3 9'6" X 10'11" (2.90m X 3.33m)
Front facing room.
Bathroom
White suite comprising low flush WC, pedestal wash hand basin, free standing bath with 'telephone' shower fitting over. heated towel rail, tiled flooring and wall tiling. Walk in shower unit.
Bedroom 4 10'3" X 12'0" (3.12m X 3.66m)
Rear facing room.
OUTSIDE
To the front is a sweeping driveway with large shrub area, small pond, lawn area and mature trees. Also a small boiler house.
To the rear are large lawn areas with mature plantings and a large pond.
To the rear are large lawn areas with mature plantings and a large pond.
Garage 16'0" X 10'6" (4.88m X 3.20m)
Up and over door and steps to overhead office.
Store one 11'7" X 9'3" (3.53m X 2.82m)
Garage two 18'6" X 10'6" (5.64m X 3.20m)
Up and over doors.
Store two 19'0" X 9'0" (5.79m X 2.74m)
Office above 17'3 X 10'5 (5.26m X 3.18m)
Outside
Outside there is a mature and private site extending to approximately 1 acre, surrounded by established shrubs, trees and attractive planting that create a peaceful and secluded setting.
Broadband Speed Availability
Potential Speeds for 59 Grove Road
Max Download
1800
Mbps
Max Upload
220
MbpsThe speeds indicated represent the maximum estimated fixed-line speeds as predicted by Ofcom. Please note that these are estimates, and actual service availability and speeds may differ.
Property Location
Mortgage Calculator
Contact Agent
Contact Ulster Property Sales (UPS) Ballynahinch
Request More Information
Requesting Info about...
59 Grove Road, Spa, Ballynahinch, BT24 8PW
By registering your interest, you acknowledge our Privacy Policy
By registering your interest, you acknowledge our Privacy Policy