Contact Agent
Contact Ulster Property Sales (UPS) Ballynahinch
5 Bed Land - Building Plot
Building Site, 200M East Of 7 Hillside Road
Ballynahinch, BT24 8UL
offers around
£125,000
- Status For Sale
- Property Type Land - Building Plot
- Bedrooms 5
- Receptions 3
- Interior Area 1347 sqft
-
Stamp Duty
Higher amount applies when purchasing as buy to let or as an additional property£0 / £6,250*
Key Features & Description
Foundations poured
Large house
Full planning
Popular location
Building site
Description
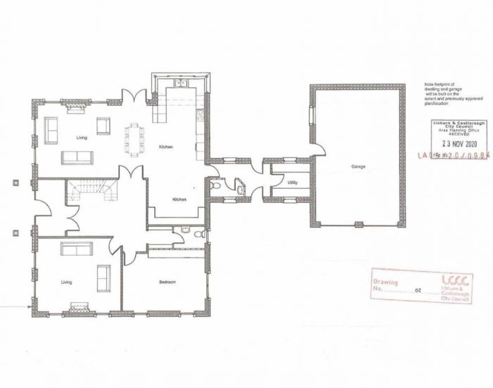
Situated in the heart of the country in a peaceful private position, this spacious site enjoys pleasing far reaching views over the surrounding countryside.
The site approached from a shared gravel drive with all necessary rights of ways/ easements in place extends to about 0.477 of an acre. Reserved Matters Planning Permission has been granted for a classic style two storied residence including 3½ / 4 receptions, laundry room, master bedroom en suite and Jack and Jill shower room serving two bedrooms, principal bathroom, cloakroom and ample storage. Permission has been granted for a double integral garage.
Foundations have been dug, concrete poured, footing constructed and filled, the site is landscaped ready for immediate construction.
The site is convenient to Ballynahinch, Lisburn, Saintfield, Carryduff and is an easy commute to Belfast.
Situated in the heart of the country in a peaceful private position, this spacious site enjoys pleasing far reaching views over the surrounding countryside.
The site approached from a shared gravel drive with all necessary rights of ways/ easements in place extends to about 0.477 of an acre. Reserved Matters Planning Permission has been granted for a classic style two storied residence including 3½ / 4 receptions, laundry room, master bedroom en suite and Jack and Jill shower room serving two bedrooms, principal bathroom, cloakroom and ample storage. Permission has been granted for a double integral garage.
Foundations have been dug, concrete poured, footing constructed and filled, the site is landscaped ready for immediate construction.
The site is convenient to Ballynahinch, Lisburn, Saintfield, Carryduff and is an easy commute to Belfast.
Rooms
Features
Building Site Extending to 0.477 acres
Reserved Matters Planning Permission Granted for Two Storied Residence with Garage.
Foundations Have Been Dug, Concrete Poured, Footing Constructed and Filled.
Convenient to Ballynahinch, Lisburn, Saintfield, Carryduff and is an Easy Commute to Belfast.
LOCATION
From the Magheraknock Road, turn right into the Creevytenant Road at Safe and Sound Day Nursery. Proceed about ½ mile and turn left into Hillside Road, proceed ½ of a mile and turn into lane towards 17 and 17a Hillside Road. At fork in lane bear right and then right again and proceed to end of the lane.
Reserved Matters Planning Permission Granted for Two Storied Residence with Garage.
Foundations Have Been Dug, Concrete Poured, Footing Constructed and Filled.
Convenient to Ballynahinch, Lisburn, Saintfield, Carryduff and is an Easy Commute to Belfast.
LOCATION
From the Magheraknock Road, turn right into the Creevytenant Road at Safe and Sound Day Nursery. Proceed about ½ mile and turn left into Hillside Road, proceed ½ of a mile and turn into lane towards 17 and 17a Hillside Road. At fork in lane bear right and then right again and proceed to end of the lane.
Property Location
Mortgage Calculator
Contact Agent
Contact Ulster Property Sales (UPS) Ballynahinch
Request More Information
Requesting Info about...
Building Site, 200M East Of 7 Hillside Road, Ballynahinch, BT24 8UL
By registering your interest, you acknowledge our Privacy Policy
By registering your interest, you acknowledge our Privacy Policy