Contact Agent

Contact Lynn and Brewster

Contact Lynn and Brewster

4 Bed Detached Split-level Bungalow

11 Knockhill Park

Ballymoney, BT53 6DD

offers around £290,000
  • Status For Sale
  • Property Type Detached Split-level Bungalow
  • Bedrooms 4
  • Receptions 4
  • Bathrooms 3
  • Heating Oil
  • EPC Rating D55 / D62
  • Stamp Duty
    Higher amount applies when purchasing as buy to let or as an additional property
    £4,500 / £19,000*
  • Typical Mortgage
    Click price to use our mortgage calculator
EPC Rating

Description

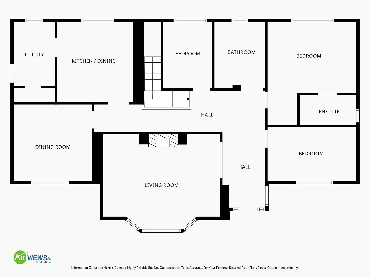
This deceptively spacious detached 4-bedroom home offers a well-presented level of flexible accommodation  arranged over two floors and is positioned within an established and popular area of the town just off the Portrush Road.

Internally, to the ground floor, the entrance hall which features wood flooring opens to a lounge with fireplace, a dining room, a kitchen with a seated corner aspect dining area, utility room and three bedrooms with the master bedroom including an ensuite. A staircase also off the hallway, leads to the lower ground floor which is ideal for someone wishing to have a self-contained living area if required. There is a hallway which accesses the gardens to the rear, kitchenette which opens to a generous integral garage with electric door, lounge, conservatory and bedroom with a further ensuite.

Externally, this attractive property is complimented with neatly maintained grounds which encompass a driveway to the side leading to the rear, a garden to the front and further gardens to the rear including and a patio area and lawned area to enjoy.

The location is ideal being a short drive to the bustling town centre with its array of shops, amenities, cafes and within close proximity to Dalriada School, yet equally a short drive to pick up the A26/ Frosses Road to access the north coast or for commuting to the south.

 

Entrance Hall:

With wood flooring extending through, wainscotting and telephone point, access to loft (via drop down ladder, partially floored with lighting)

 

Double doors opening to;

Lounge:

18’1 x 13’0 (5.500m x 3.969m including chimney breast)

Featuring open fireplace with pine surround, metal inset and tiled hearth, bay window, TV point, wall light points

 

Dining Room:

12’1 x 11’8 (3.677m x 3.567m)

 

Kitchen/Dining Area:

12’5 x 11’7 (3.773m x 3.540m)

Fitted kitchen including Hotpoint eye level fan assisted oven and grill and separate grill, Blanco 4 ring glass plate electric hob, canopy above with integrated extractor, integrated Hotpoint dishwasher, 1 1/2 bowl sink unit and mixer tap, pelmet above with concealed lighting, partly tiled, corner aspect seating area, dado rail,telephone point, integrated spotlights, tiled flooring extending through

 

Utility Room:

9’10 x 5’10 (2.993m x 1.765m)

Complimentary range of units including space for washing machine, stainless steel single sink and drainer unit with mixer tap, partially tiled surround, hotpress (shelved), door to exterior

 

Bedroom 1:

13’8 x 10’9, 15’8 into recess (4.168m x 3.272m, 4.773m into recess)

With wood effect flooring

 

Ensuite:

8’4 x 4’6 (2.627m x 1.363m max)

Comprising full wall length shower cubicle with Triton electric shower unit, marine boarding, vanity unit with counter top basin, mixer tap and drawer below, wall mounted mirror with lighting, low flush wc, half panelled marine boarded walls

 

Bedroom 2:

13’8 x 8’10 (4.164m x 2.682m)

With wood effect flooring

 

Bedroom 3:

9’9 x 7’4 (2.973m x 2.244m max)

Currently used as a study with wood effect flooring, built in wardrobe (shelved)

 

Bathroom:

9’9 x 7’10 (2.978m x 2.386m)

Comprising shower cubicle with

Triton shower unit, marine boarding, panelled bath with mixer tap, pedestal wash hand basin with mixer tap, wall mounted mirror and light above, low flush wc, wainscotting, tiled flooring

 

Stairs down to lower ground floor

Hall:

With access to rear garden, cloaks cupboard, wainscotting, wood effect flooring, glazed door opening to;

 

Lounge:

14’10 x 9’4 (4.524m including stairs recess x 2.844m)

With chimney breast, fireplace opening with oak surround and raised oak hearth, oak mantel (fireplace chimney not functional), wood effect flooring, French doors opening into;

 

Conservatory:

10’7 x 10’3 (3.233m x 3.129m max, approximate measurements)

With tiled flooring, double doors opening to garden

 

Kitchenette:

12’2 x 4’11 (3.710m max x 1.497m)

Range of low level units including Whirlpool Schott Ceran 4 ring electric glass plate hob, space for low level fridge, space for low level freezer, stainless steel single drainer sink unit with mixer tap, splashback panel, panelled walls, boiler cupboard, tiled flooring, door to;

 

Integral Garage:

23’10 x 18’ (7.267m x 5.490m)

With electric roller door, sink with splashback tiling, storage cupboard, power and light

 

Bedroom 4:

14’11 x 13’10 (4.555m x 4.224m overall measurements)

With wood effect flooring

 

Ensuite:

6’9 x 4’9 (2.055m x 1.400m)

With fully tiled walls and comprising corner aspect shower cubicle with Gainsborough Impulse 9.5kw shower unit, pedestal wash hand basin, low flush wc

 

EXTERIOR FEATURES

Tarmac driveway providing parking to the front and leading to the side, rear and integral garage

Lawned area to the front with flower and shrub beds

Paved access path to front and side

To the rear, paved patio area, lawned area with flower and shrub beds

Greenhouse and gardens shed 

Outside lighting

Outside tap

Outside power points

 

ADDITIONAL FEATURES

Double glazed windows set within PVC finish frames

PVC guttering and downpipes

Oil fired central heating

 

Broadband Speed Availability

Ultrafast

Potential Speeds for 11 Knockhill Park

Max Download
10000
Mbps
Max Upload
10000
Mbps
The speeds indicated represent the maximum estimated fixed-line speeds as predicted by Ofcom. Please note that these are estimates, and actual service availability and speeds may differ.

Property Location

Show Map

Mortgage Calculator

Disclaimer: The following calculations act as a guide only, and are based on a typical repayment mortgage model. Financial decisions should not be made based on these calculations and accuracy is not guaranteed. Always seek professional advice before making any financial decisions.

Contact Agent

Contact Lynn and Brewster

Contact Lynn and Brewster

Request More Information
Requesting Info about...
11 Knockhill Park, Ballymoney, BT53 6DD 11 Knockhill Park, Ballymoney, BT53 6DD

By registering your interest, you acknowledge our Privacy Policy
Ask Holmes
Ask Holmes
Let's find your next home

Are you sure you want to reset the chat?

Checking API...