Contact Agent

Contact McAfee Properties (Ballymoney)

Contact McAfee Properties (Ballymoney)

Site

9 Victoria Street

Suberb Development Opportunity, Ballymoney, BT53 6DW

asking price £195,000
  • Status For Sale
  • Property Type Site
  • Stamp Duty
    Higher amount applies when purchasing as buy to let or as an additional property
    £1,400 / £11,150*
  • Typical Mortgage
    Click price to use our mortgage calculator
EPC Rating

Description

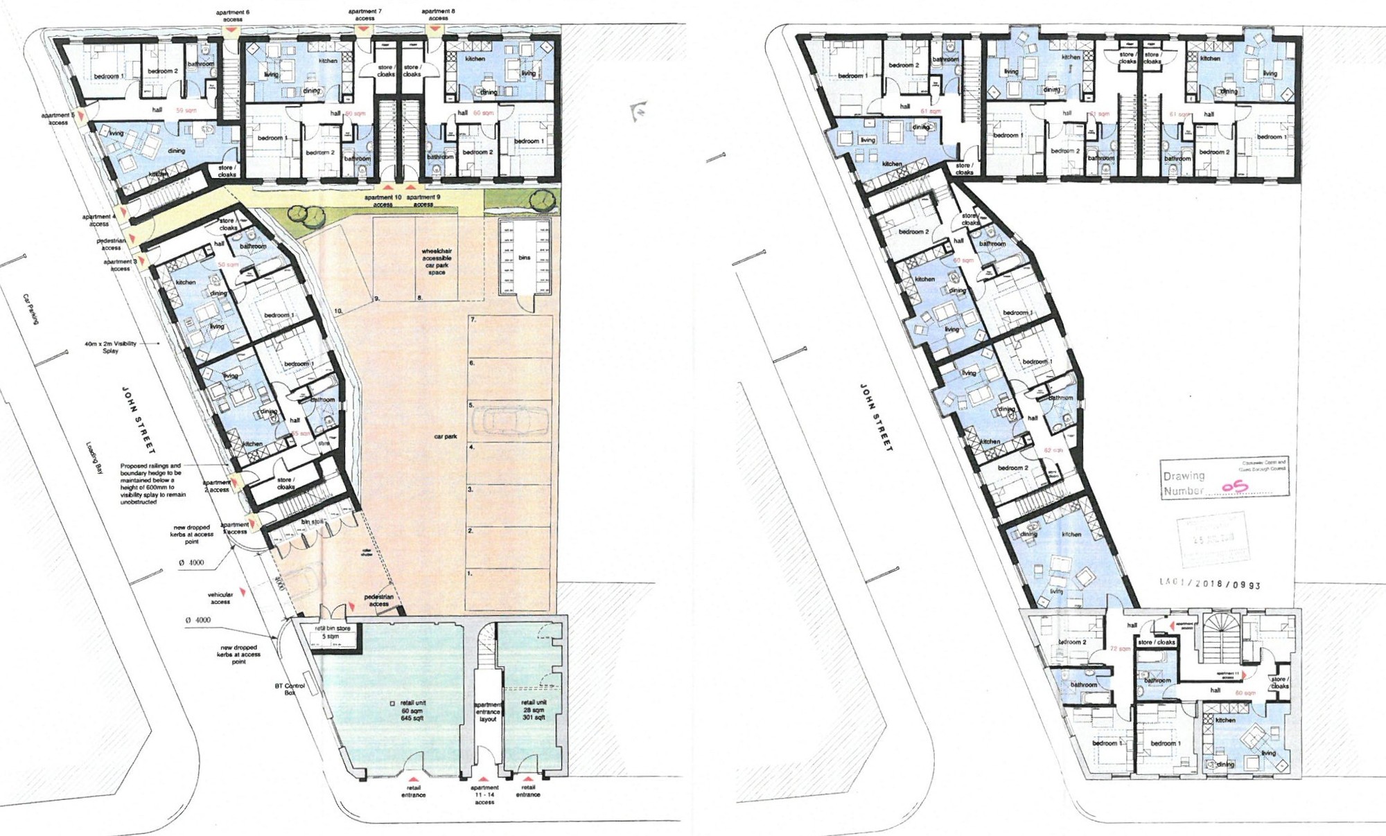
We are delighted to offer for sale this superb development opportunity (subject to planning) to redevelop or refurbish/alter this iconic building/site which occupies a choice town centre situation.

Previous planning applications included D/2006/0484/F (for a three storey block of apartments); D/2006/0505/DCA relating to the demolition of the outbuildings to the rear of number 9 Victoria Street; D/2014/0101/F relating to alterations to number 9 for apartments and 10 further apartments to the rear.

As such there should be various options available (subject to planning) with similar developments completed nearby – most notably the contemporary block of apartments opposite the site on John Street.

Indeed we believe this is a superb opportunity for redevelopment – for possibly a mix of retail, townhouses and apartments – subject to any necessary approvals.

Broadband Speed Availability

Ultrafast

Potential Speeds for 9 Victoria Street

Max Download
10000
Mbps
Max Upload
10000
Mbps
The speeds indicated represent the maximum estimated fixed-line speeds as predicted by Ofcom. Please note that these are estimates, and actual service availability and speeds may differ.

Property Location

Show Map

Mortgage Calculator

Disclaimer: The following calculations act as a guide only, and are based on a typical repayment mortgage model. Financial decisions should not be made based on these calculations and accuracy is not guaranteed. Always seek professional advice before making any financial decisions.

Directions

The site occupies a prominent position a stone"s throw from the town centre with most local amenities, a local supermarket and schools all within walking distance.

Contact Agent

Contact McAfee Properties (Ballymoney)

Contact McAfee Properties (Ballymoney)

Request More Information
Requesting Info about...
9 Victoria Street, Suberb Development Opportunity, Ballymoney, BT53 6DW 9 Victoria Street, Suberb Development Opportunity, Ballymoney, BT53 6DW

By registering your interest, you acknowledge our Privacy Policy
Ask Holmes
Ask Holmes
Let's find your next home

Are you sure you want to reset the chat?

Checking API...