Contact Agent

Contact McAfee Properties (Ballymoney)

Contact McAfee Properties (Ballymoney)

3 Bed Detached Bungalow

New Build 10 Kirk Road

Ballymoney, BT53 6PP

asking price £299,950
  • Status Sale Agreed
  • Property Type Detached Bungalow
  • Bedrooms 3
  • Receptions 1
  • Heating Gas
  • Stamp Duty
    Higher amount applies when purchasing as buy to let or as an additional property
    £4,998 / £19,995*
  • Typical Mortgage
    Click price to use our mortgage calculator

Key Features & Description

Introducing an exclusive small development of 3 luxury bungalows built to a high level specification.
Accommodation including 3 double bedrooms (master with an ensuite).
And then the piece de resistance- A fantastic kitchen/ dining/ living room with a large "Aluclad lift and slide patio door".
This allowing these homes to be flooded with light and air while promoting free movement between the garden and indoor living.
Indeed a high specification turnkey finish throughout.
Kitchen and utility- Bespokely designed which personalise your new home in your own choice of style- complete with a choice of units and laminated worktops.
Standard 4 zone hob and fully integrated high end appliances including an oven, fridge/freezer, dishwasher, washing machine, condenser dryer and even a wine cooler!
Bathrooms- boasting perfectly white sanitary ware with vanity units and contemporary fittings.
Finished in a choice of high quality stylish tiles to exude opulence and personal taste.
The same to be the full height of the room as a splashback feature behind the vanity units.
Bulkhead/ full tiling available at an additional cost.
Bath/shower enclosures and floors tiled as standard in the bathroom and ensuite.
Internal walls and ceilings finished in a high quality white emersion.
"Deanta" contemporary solid (44mm) core doors - ladder style prefinished in "light grey ash".
Kitchen and lounge with clear glass.
"Sabre" on rose door handles, ball race hinges and bathroom locks.
5" square skirting, 4" architrave and hockey stick door frame surround.
Mains gas heating - latest energy efficient boiler.
Programmable single zoned system.
Anthracite designer radiators in the living room, hall and kitchen.
Lounge - feature media wall, electric fire and high quality wooden flooring.
Quality Upvc double glazed windows.
Wired for broadband/smart home - Cat 6 ethernet cable for significantly higher data transfer speeds.
Generous electrical specification throughout.
6 panel (recessed roof installation) 2.4kw solar panel system - to reduce electricity costs within your home.
Private road access with a brick wall and pillar entrance.
Asphalt/Resin driveway providing secure off street parking to the front.
Landscaped and southernly orientated rear garden and patio/ veranda areas.
New contemporary panel fencing with concrete posts to the sides and rear.
A "Steeltech" supreme shed with a sheltered exterior overhang finishes everything off - for all your storage needs.
To be erected on a concrete base = 4m x 3m with a 2m overhang.
Non-drip clear roof panels, a sliding access door, a window and wired with a double socket and a light.
Also - FINISHED WITH ATTIC TRUSSES WITH THE OPTION TO CONVERT UPSTAIRS (PRICE ON REQUEST) TO PROVIDE 4 BEDROOMS (1 ENSUITE), A STUDY AND AN ADDITIONAL SHOWER ROOM IF DESIRED.
Conveniently designed and constructed so any purchaser can more readily convert the same at any stage in the future.
IN SUMMARY - A UNIQUE OPPORTUNITY TO PURCHASE A HIGH SPECIFICATION NEW BUILD BANGALOW IN A DESIRABLE AND CONVENIENT LOCATION.
WHAT ARE YOU WAITING FOR!
Description

Introducing this exclusive release of only 3 Luxurious Bungalows on a desirable road fronting situation and benefiting from high energy efficient construction standards resulting in lower energy running costs. Indeed, folks these fantastic homes are really a level above anything else available to include a luxurious high specification contemporary finish throughout, all bordered extensively by landscaped grounds including veranda/patio areas leading to the private southerly orientated rear gardens.

 Please read the additional features to provide you with much of the detail and contact us early to avoid missing out on this unique opportunity to purchase a high quality contemporary new build in such a prime and convenient location.

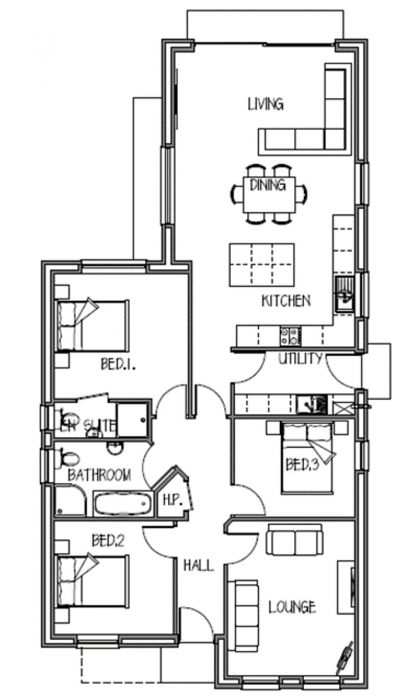
Rooms

Lounge 14'1 X 11'8 (4.29m X 3.56m)
Kitchen/Dining/Living Room 27' X 16'5 (8.23m X 5.00m)
Utility Room 11' X 5'10 (3.35m X 1.78m)
Bedroom 1 12'3 X 11'5 (3.73m X 3.48m) Size excluding the ensuite.
Bedroom 2 10'11 X 10'5 (3.33m X 3.18m)
Bedroom 3 11' X 9' (3.35m X 2.74m)
( X ) NOTE: ALL SIZES ARE APPROXIMATE AS THE PROPERTIES ARE PRESENTLY UNDER CONSTRUCTION.

Property Location

Show Map

Mortgage Calculator

Disclaimer: The following calculations act as a guide only, and are based on a typical repayment mortgage model. Financial decisions should not be made based on these calculations and accuracy is not guaranteed. Always seek professional advice before making any financial decisions.

Directions

These new homes occupy a super convenient situation within walking distance to the town centre, schools and local transport links. Leave the town centre on Queen Street and turn left at the roundabout onto the Newal Road. Continue for c. 0.5 miles and these fantastic new homes will be situated on the left hand side.

Contact Agent

Contact McAfee Properties (Ballymoney)

Contact McAfee Properties (Ballymoney)

Request More Information
Requesting Info about...
New Build 10 Kirk Road, Ballymoney, BT53 6PP New Build  10 Kirk Road, Ballymoney, BT53 6PP

By registering your interest, you acknowledge our Privacy Policy