Contact Agent

Contact McAfee Properties (Ballymoney)

Contact McAfee Properties (Ballymoney)

4 Bed Detached House

New Build Garryduff Road

Ballymoney, BT53 7DH

Price on Application
  • Status Sale Agreed
  • Property Type Detached
  • Bedrooms 4
  • Receptions 2
  • Heating Oil

Key Features & Description

Oil fired heating (Grant Vortex boiler).
uPVC double glazed windows.
Composite front and back door.
Detached double garage with attic storage included with electric roller door, pedestrian door and window.
The property will have internal walls painted white.
Wired for broadband.
Underfloor heating on the ground floor.
Tarmac driveway with parking area.
Generous electrical specification.
Generous electrical specification.
Paved patio area with pathways to match.
Gardens laid in lawn.
The boundary will be finished with a 6ft fence to the rear of the property.
The front of the property will have a 4 foot high D rail fence.
Description

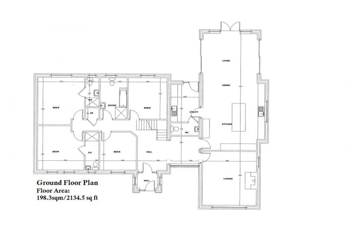
An impressive detached chalet bungalow circa 2,650 sq ft plus double garage set on a spacious rural site on the popular Garryduff Road and approximately 1.7 miles from Ballymoney and its numerous amenities. The property provides well proportioned 4 or 5 bedroom (3 ensuite), 1 or 2 reception room accommodation together with a feature large open plan kitchen/Dining/Living room with a vaulted ceiling. The property constructed by the highly regarded CML Building provides generous PC sum allowances with this substantial high quality rural family home.

Generous PC allowances for the following:

Kitchen/utility room (supplied & fitted) – Nobel Kitchens

Bathroom/ensuite/w.c (supplied only) – Stevensons & Reid

Tiling (supplied only)-Tiles Plus

Carpets (supplied & fitted) – Innovation flooring

Stove (supplied & fitted) – Wilsons Coleraine 

Labour on tiling is allowed for on kitchen/dining/sun room floors and in addition all  bathroom / ensuites / w.c floor and shower walls.

Deposit is non refundable.

All artist impressions are for illustration purposes only.

Property Location

Show Map

Directions

Leave Ballymoney town centre along Queen Street and continue through the mini roundabout onto Roeding Foot. Continue along to the next mini roundabout and turn right onto the Garryduff Road. Continue along for approximately 2 ½ miles (passing the Joey Dunlop Leisure Centre) and the property is located on the right hand side.

Contact Agent

Contact McAfee Properties (Ballymoney)

Contact McAfee Properties (Ballymoney)

Request More Information
Requesting Info about...
New Build Garryduff Road, Ballymoney, BT53 7DH New Build  Garryduff Road, Ballymoney, BT53 7DH

By registering your interest, you acknowledge our Privacy Policy
Ask Holmes
Ask Holmes
Let's find your next home

Are you sure you want to reset the chat?

Checking API...