2 Bed End Terrace
42 Market Road
Ballymena, BT43 6EL
offers around
£130,000
- Status For Sale
- Property Type End Terrace
- Bedrooms 2
- Receptions 2
- Heating OFCH
-
Stamp Duty
Higher amount applies when purchasing as buy to let or as an additional property£100 / £6,600*
Key Features & Description
End-terrace house
2 bedrooms
Living room with fireplace
Dining room with fireplace (back boiler)
Kitchen with fitted units
Utility room off kitchen
Ground floor shower room
First floor shower room
Attic room
Oil fired central heating system
Composite front door
PVC rear door
PVC double glazed windows
Garage
On street parking to front
Enclosed concrete yard to front and rear
Walking distance to local amenities
Convenient to local primary and grammar schools
Town centre location
Approximate date of construction: 1910
Tenure: Freehold
Estimated Domestic Rate Bill: £837
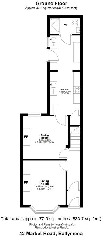
Total area: approx: 77.5 sq. metres (833.7 sq. feet)
Description
Homes Independent are pleased to offer for sale this well-presented two-bedroom end-terrace property, conveniently located within walking distance of the town centre. With easy access to local shops, schools, and public transport links, this home is ideally suited to a range of buyers. The accommodation comprises a living room, separate dining room, and a fitted kitchen leading to a utility area and a ground floor shower room. Set in a popular residential area, the property benefits from a quiet setting while remaining close to all local amenities. Properties of this type are in high demand, and early viewing is highly recommended so contact Homes Independent today to arrange your viewing.
Homes Independent are pleased to offer for sale this well-presented two-bedroom end-terrace property, conveniently located within walking distance of the town centre. With easy access to local shops, schools, and public transport links, this home is ideally suited to a range of buyers. The accommodation comprises a living room, separate dining room, and a fitted kitchen leading to a utility area and a ground floor shower room. Set in a popular residential area, the property benefits from a quiet setting while remaining close to all local amenities. Properties of this type are in high demand, and early viewing is highly recommended so contact Homes Independent today to arrange your viewing.
Rooms
ENTRANCE PORCH:
With composite front door with decorative glazed panes. Glazed door to entrance hall.
ENTRANCE HALL:
With staircase leading to first floor. Laminated wooden flooring.
LIVING ROOM: 11' 4" X 10' 3" (3.45m X 3.13m)
With cast iron fire place to tiled hearth, decorative mantle and surround. Picture rail. Bay window.
DINING ROOM: 10' 11" X 10' 3" (3.33m X 3.12m)
With fireplace to tiled hearth, surround and wooden mantle (back boiler). Dado rail. Laminated wooden flooring.
KITCHEN: 18' 12" X 7' 3" (5.79m X 2.21m)
With eye and low-level kitchen units. 1 1/4 Stainless-steel sink unit and drainer with Stainless- steel mixer tap. Space for a freestanding 4 ring electric hob and oven with stainless- steel extractor fan over. Cutlery drawer. Saucepan drawers. Splash back tiling. Under stairs storage cupboard. Tiled flooring.
UTILITY ROOM:
With low level units. Stainless- Steel sink unit and drainer with Stainless-steel mixer tap. Plumbed for washing machine. Space for tumble dryer. Space for fridge/freezer. PVC door leading to rear. Spot lighting to ceiling. Tiled flooring.
SHOWER ROOM:
With 3- piece white suite comprising LFWC, WHB with built in vanity and shower to enclosed tiled cubical. Heated towel rail. Splash back tiling. Tiled flooring.
LANDING:
With steps leading to attic room with wooden flooring, eaves storage and Velux window.
BEDROOM (1): 13' 9" X 1056' 5" (4.19m X 322.00m)
With cast iron fireplace, wooden surround and mantel. Laminated wooden flooring.
BEDROOM (2): 10' 3" X 8' 3" (3.12m X 2.52m)
SHOWER ROOM:
With 3- piece white suite comprising LFWC, WHB and shower to enclosed corner cubical. Splash back tiling. Tiled flooring.
With on street parking to front of property. Enclosed concrete area to front. Enclosed concrete yard to rear bounded by wall and wooden gate. Sheltered area. Outside tap. Garage at rear with roller door.
Broadband Speed Availability
Potential Speeds for 42 Market Road
Max Download
1800
Mbps
Max Upload
220
MbpsThe speeds indicated represent the maximum estimated fixed-line speeds as predicted by Ofcom. Please note that these are estimates, and actual service availability and speeds may differ.
Property Location
Mortgage Calculator
Directions
Located off the
Contact Agent
Contact Homes Independent
Request More Information
Requesting Info about...
42 Market Road, Ballymena, BT43 6EL
By registering your interest, you acknowledge our Privacy Policy
By registering your interest, you acknowledge our Privacy Policy