Contact Agent

Contact Homes Independent

Contact Homes Independent

4 Bed Terrace House

198 Queen Street

Ballymena, BT42 2BQ

offers around £80,000
  • Status Sale Agreed
  • Property Type Terrace
  • Bedrooms 4
  • Heating OFCH
  • EPC Rating D59 / C72
  • Stamp Duty
    Higher amount applies when purchasing as buy to let or as an additional property
    £0 / £4,000*
  • Typical Mortgage
    Click price to use our mortgage calculator
EPC Rating

Key Features & Description

Mid-terrace house
Four bedrooms
Open plan living/dining room
Kitchen
First floor bathroom with 3-piece suite
Oil fired central heating system
PVC double glazed windows
PVC front and rear doors
On-street parking at front of property
Enclosed concrete yard to rear
Walking distance to Ballymena Town Centre
Convenient to local amenities
Approximate date of construction: 1910
Tenure: Freehold
Estimated Domestic Rate Bill: £702.00
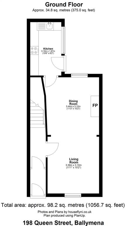
Total area: approx. 98.2 sq. metres (1056.7 sq. feet)
Description
Homes Independent are pleased to list for sale this four-bedroom mid-terrace property at 198 Queen Street. The accommodation is arranged over three floors and includes an open-plan living and dining area, a kitchen, and a first-floor bathroom. Conveniently located close to local amenities and within walking distance of the town centre, the property requires some modernisation and is ideal for investors or those seeking a renovation project.

Rooms

ENTRANCE PORCH: With PVC front door. Glazed door to entrance hallway.
ENTRANCE HALL: With staircase to first floor. Laminated wooden flooring.
LIVING ROOM: 11' 1" X 10' 2" (3.39m X 3.10m) With laminated wooden flooring. Open plan to dining area.
DINING ROOM: 11' 3" X 10' 2" (3.44m X 3.10m) With fireplace to tiled hearth, wooden surround and mantle. Laminated wooden flooring.
KITCHEN: 10' 6" X 6' 2" (3.19m X 1.87m) With eye and low-level fitted units, stainless-steel sink unit and drainer with stainless-steel mixer tap. Space for four ring electric hob and oven. Space for fridge-freezer. Plumbed for washing machine. Part tiled walls. PVC door to rear.
LANDING: With hot-press. Staircase to second floor.
BEDROOM (1): 13' 7" X 11' 0" (4.14m X 3.36m)
BEDROOM (2): 11' 3" X 8' 2" (3.44m X 2.48m)
BATHROOM: With 3-piece suite comprising LFWC, WHB and panelled bath. Part tiled walls.
LANDING:
BEDROOM (3): 11' 3" X 7' 10" (3.44m X 2.38m) With access to loft. Velux window.
BEDROOM (4): 13' 7" X 11' 1" (4.14m X 3.37m) With Velux window.
With on-street parking available at front of property. Enclosed area to front of property. Enclosed concrete yard to rear bounded by wall and wooden gate.

Broadband Speed Availability

Ultrafast

Potential Speeds for 198 Queen Street

Max Download
1800
Mbps
Max Upload
220
Mbps
The speeds indicated represent the maximum estimated fixed-line speeds as predicted by Ofcom. Please note that these are estimates, and actual service availability and speeds may differ.

Property Location

Show Map

Mortgage Calculator

Disclaimer: The following calculations act as a guide only, and are based on a typical repayment mortgage model. Financial decisions should not be made based on these calculations and accuracy is not guaranteed. Always seek professional advice before making any financial decisions.

Directions

Queen Street, Ballymena.

Contact Agent

Contact Homes Independent

Contact Homes Independent

Request More Information
Requesting Info about...
198 Queen Street, Ballymena, BT42 2BQ 198 Queen Street, Ballymena, BT42 2BQ

By registering your interest, you acknowledge our Privacy Policy