3 Bed Terrace House
14 Clonavon Road
Ballymena, BT43 5BQ
offers around
£77,500

Key Features & Description
Mid-terrace house
Three bedrooms (two on second floor)
Living room with fireplace
Dining room
Kitchen with fitted units
First floor bathroom
Oil fired central heating system
Hardwood double & single glazed windows
PVC double glazed window in kitchen
On street parking to front of property
Communal parking to rear
Concrete yard to rear
Walking distance to Ballymena Town Centre
Ideal investment property
Chain free
Approximate date of construction:
Tenure:
Estimated Domestic Rate Bill: £783.00
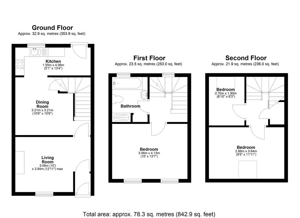
Total area: approx. 78.3 sq. metres (842.9 sq. feet)
Description
Homes Independent are pleased to present this spacious three-bedroom mid-terrace property, located within walking distance of Ballymena Town Centre. Set over three storeys, the accommodation comprises a living room, separate dining room, kitchen, bathroom with four-piece suite, and three well-proportioned bedrooms. While this home would benefit from some modernisation and cosmetic updating, it presents an excellent opportunity for investors or buyers seeking a project with strong potential. With its prime location close to shops, schools and local amenities, this property is ideal as an investment or for those looking to add value through renovation. Early viewing is recommended to appreciate the potential this home has to offer.
Homes Independent are pleased to present this spacious three-bedroom mid-terrace property, located within walking distance of Ballymena Town Centre. Set over three storeys, the accommodation comprises a living room, separate dining room, kitchen, bathroom with four-piece suite, and three well-proportioned bedrooms. While this home would benefit from some modernisation and cosmetic updating, it presents an excellent opportunity for investors or buyers seeking a project with strong potential. With its prime location close to shops, schools and local amenities, this property is ideal as an investment or for those looking to add value through renovation. Early viewing is recommended to appreciate the potential this home has to offer.
Rooms
ENTRANCE PORCH:
With hardwood front door with glazed pane above. Wooden panelling to walls. Laminated wooden flooring. Door to living room.
LIVING ROOM: 12' 11" X 10' 0" (3.94m X 3.06m)
With fireplace to tiled hearth, wooden surround and mantle.
DINING ROOM: 10' 6" X 10' 6" (3.21m X 3.21m)
With staircase to first floor. Under stair storage cupboard. Laminated wooden flooring. Archway to kitchen.
KITCHEN: 13' 4" X 5' 1" (4.06m X 1.55m)
With eye and low-level fitted units, 1 1/4 bowl sink unit and drainer with stainless-steel mixer tap. Space for four ring electric hob and oven with extractor fan over. Cutlery drawers. Space for fridge-freezer. Plumbed for washing machine. Splash back tiling. PVC double glazed door to rear.
LANDING:
With dado rail. Staircase to second floor.
BEDROOM (1): 13' 7" X 10' 0" (4.13m X 3.06m)
With solid wooden flooring. Hardwood sash windows.
BATHROOM:
With 4-piece white suite comprising LFWC, WHB, panelled bath and shower to tiled cubicle. Hot-press with shelved storage. Wooden panelling to walls.
LANDING:
With dado rail. Access to loft. Built-in storage cupboard.
BEDROOM (2): 8' 10" X 6' 3" (2.70m X 1.90m)
With Velux window.
BEDROOM (3): 11' 11" X 9' 5" (3.64m X 2.86m)
With Velux window.
With on-street parking to front of property. Paved area to rear.
Broadband Speed Availability
Potential Speeds for 14 Clonavon Road
Max Download
1800
Mbps
Max Upload
220
MbpsThe speeds indicated represent the maximum estimated fixed-line speeds as predicted by Ofcom. Please note that these are estimates, and actual service availability and speeds may differ.
Property Location

Mortgage Calculator
Directions
Clonavon Road is located between North Street and Clonavon Terrace, Ballymena.
Contact Agent

Contact Homes Independent
Request More Information
Requesting Info about...
14 Clonavon Road, Ballymena, BT43 5BQ
By registering your interest, you acknowledge our Privacy Policy

By registering your interest, you acknowledge our Privacy Policy