3 Bed Detached House
6 Glenburn Park
Ballymena, BT43 6HG
offers around
£260,000
- Status For Sale
- Property Type Detached
- Bedrooms 3
- Receptions 2
-
Stamp Duty
Higher amount applies when purchasing as buy to let or as an additional property£3,000 / £16,000*
Key Features & Description
Detached house set on a corner site
Three bedrooms
Livingroom with fireplace
Kitchen/dining area
Sunroom
Bathroom with 4-piece suite
Hardwood front and rear door
PVC double glazed doors to rear
PVC fascia and soffit
Oil fired heating system
Driveway to front of property
Gardens in lawn to front of property
Spacious enclosed garden to rear
Detached garage
Walking distance to local primary and secondary schools
Walking distance to Ballymena town centre
Approximate date of construction: 1995
Tenure: Freehold
Estimated Domestic Rates Bill: £1,572
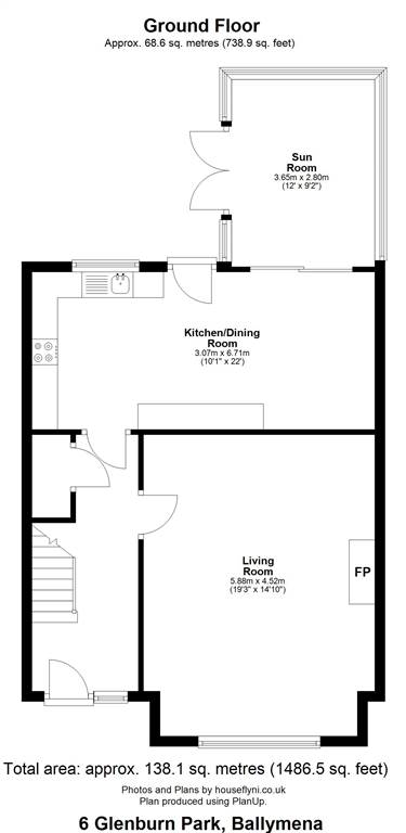
Total area: approx: 138.1 sq.metres (1486.5 sq. feet)
Description
Homes Independent Estate Agents are delighted to bring to the market 6 Glenburn Park, Ballymena. This well-presented property offers three well-proportioned bedrooms and a first floor bathroom fitted with a four-piece suite. The ground floor comprises a spacious living room complete with a feature fireplace, along with a bright kitchen/dining area, leading seamlessly into a sunroomâideal for everyday living and entertaining. Externally, the home benefits from a well-maintained front garden with a gravel driveway providing ample off-street parking. To the rear, there is a spacious enclosed garden bounded by wooden fencing, mature hedging, and gates, offering both privacy and a safe outdoor space. Conveniently located within walking distance of local amenities, schools and Ballymena town centre, this property is ideally suited for families and commuters alike - Contact Homes Independent Estate Agents today to arrange your personal viewing.
Homes Independent Estate Agents are delighted to bring to the market 6 Glenburn Park, Ballymena. This well-presented property offers three well-proportioned bedrooms and a first floor bathroom fitted with a four-piece suite. The ground floor comprises a spacious living room complete with a feature fireplace, along with a bright kitchen/dining area, leading seamlessly into a sunroomâideal for everyday living and entertaining. Externally, the home benefits from a well-maintained front garden with a gravel driveway providing ample off-street parking. To the rear, there is a spacious enclosed garden bounded by wooden fencing, mature hedging, and gates, offering both privacy and a safe outdoor space. Conveniently located within walking distance of local amenities, schools and Ballymena town centre, this property is ideally suited for families and commuters alike - Contact Homes Independent Estate Agents today to arrange your personal viewing.
Rooms
ENTRANCE HALL:
With hardwood front door with glazed panes. Balustrade staircase leading to first floor. Under stair storage cupboard. Dado rail. Coving to ceiling. Laminated wooden flooring.
LIVING ROOM: 19' 4" X 14' 10" (5.88m X 4.52m)
With fireplace to tiled hearth, wooden surround and mantle. Dado rail. Coving to ceiling. Ceiling rose.
KITCHEN / DININGROOM: 22' 0" X 10' 1" (6.71m X 3.07m)
With a range of eye and low level kitchen units. 1 1/4 bowl sink unit and drainer with stainless steel mixer tap. Intergrated 4 ring electric hob and oven with extractor fan over. Cutlery drawers. Saucepan drawers. Larder cupboard. Space for American style fridge freezer. Plumbed for dishwasher. Splash back tiling. Tiled flooring. Spacious area for dining. Hardwood rear door with glazed pane. Glazed PVC sliding doors to sun room.
SUN ROOM: 11' 12" X 9' 2" (3.65m X 2.80m)
With glazed PVC double doors to rear. Tiled flooring.
LANDING:
With access to loft. Hot-press with shelved storage.
BEDROOM (1): 12' 9" X 11' 12" (3.89m X 3.65m)
With dado rail. Coving to ceiling. Laminated wooden flooring.
BEDROOM (2): 13' 9" X 12' 0" (4.18m X 3.66m)
With dado rail. Coving to ceiling.
BEDROOM (3):
With built-in storage cupboard.
BATHROOM:
With 4- piece suite comprising LFWC, WHB, panelled bath and shower to enclosed cubical. Tiled walls.
GARAGE: 20' 2" X 12' 5" (6.15m X 3.79m)
With up and over door. Side pedestrian access.
With gravel driveway to front of property for off-street parking. Garden in lawn to front with mature shrubs and hedging. Enclosed rear garden bounded by mature hedging, wooden fence and gate. Spacious garden in lawn to rear with planted flower beds, shrubs, hedging and decorative pebbled areas. Elevated paved patio area ideal for BBQ season and outdoor entertaining. Excellent privacy at rear. Set on a corner plot. Outside lights. Outside tap.
Broadband Speed Availability
Potential Speeds for 6 Glenburn Park
Max Download
1800
Mbps
Max Upload
220
MbpsThe speeds indicated represent the maximum estimated fixed-line speeds as predicted by Ofcom. Please note that these are estimates, and actual service availability and speeds may differ.
Property Location
Mortgage Calculator
Directions
Located off the Parkway Road, Ballymena.
Contact Agent
Contact Homes Independent
Request More Information
Requesting Info about...
6 Glenburn Park, Ballymena, BT43 6HG
By registering your interest, you acknowledge our Privacy Policy
By registering your interest, you acknowledge our Privacy Policy