Lower Ground Floor 14 Old Mill Park
Cullybackey, Ballymena, BT42 1GP
per annum
£20,000
- Status For Rent
- Furnished Unfurnished
Key Features & Description
Building Currently Utilised As Modern Dental Practice But Alternative Uses Available
4no. Modern Dedicated Surgery Rooms
Large Client Waiting Room
X Ray Room
Reception and Staff Office
Located Below a Established Medical Practice (Maine Medical Practice, Cullybackey)
Large Carpark
Located In Large Catchment Area in Cullybackey and on Edge of Ballymena
Building EPC Rating of 65C
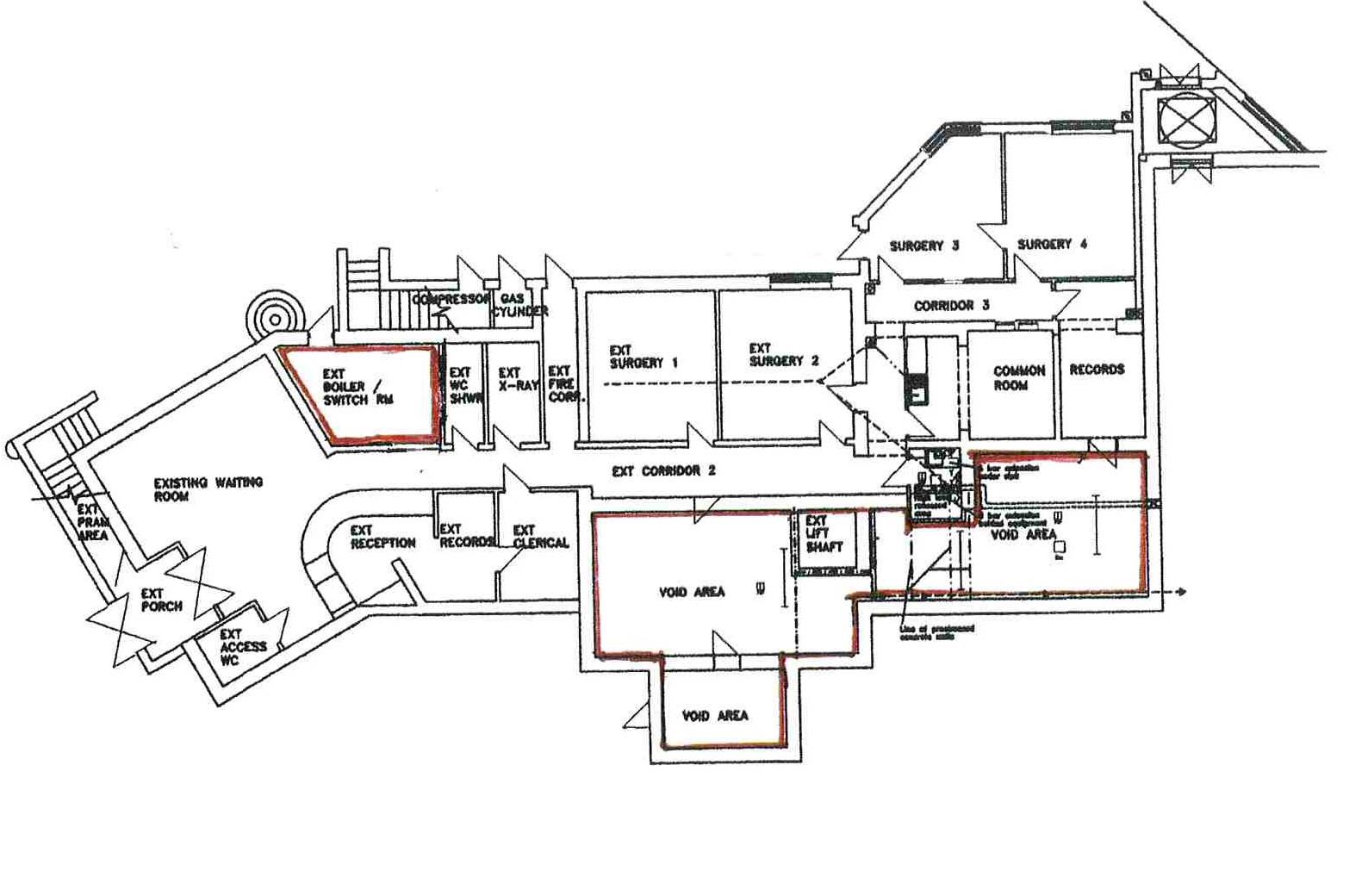
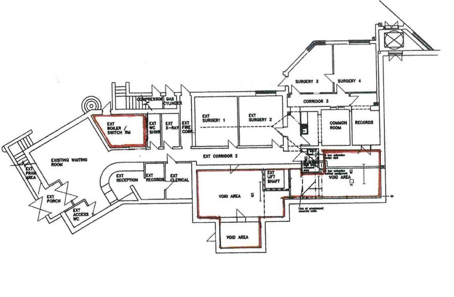
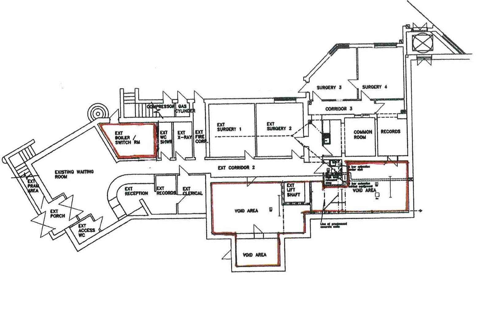
Description
Edmondson Estates are delighted to bring to market circa 247 sqm / 2,657 sqft space currently utilised as a modern Dental Practice. The unit is available from circa 1st June 2026. The lower ground floor unit has been designed to accommodate a modern Dental Practice currently with 4no. dedicated Surgery Rooms and ancillary practice facilities etc. The unit layout will allow for alternative uses such as shared physio and podiatry practices etc. Please note the property will not be fitted out with any equipment etc. Please note that all enquiries and or viewings will be held in the strictest of confidence Viewings are strictly by prior appointment only and will be most likely out of normal working hours.
Edmondson Estates are delighted to bring to market circa 247 sqm / 2,657 sqft space currently utilised as a modern Dental Practice. The unit is available from circa 1st June 2026. The lower ground floor unit has been designed to accommodate a modern Dental Practice currently with 4no. dedicated Surgery Rooms and ancillary practice facilities etc. The unit layout will allow for alternative uses such as shared physio and podiatry practices etc. Please note the property will not be fitted out with any equipment etc. Please note that all enquiries and or viewings will be held in the strictest of confidence Viewings are strictly by prior appointment only and will be most likely out of normal working hours.
Rooms
Lower Ground Floor
Storm Porch Area
Open Plan Client Waiting Room
DDA WC
Reception Area and Clerical Office
Staff WC and Shower
X Ray Room
Surgery Room 1
Surgery Room 2
Surgery Room 3
Surgery Room 4
Staff Common Room
Records Room
Property Location
Contact Agent
Contact Edmondson Estates
Request More Information
Requesting Info about...
Lower Ground Floor 14 Old Mill Park, Cullybackey, Ballymena, BT42 1GP
By registering your interest, you acknowledge our Privacy Policy
By registering your interest, you acknowledge our Privacy Policy