5 Bed Detached House
37 Dromona Road
Cullybackey, Ballymena, BT42 1NT
asking price
£625,000
- Status For Sale
- Property Type Detached
- Bedrooms 5
- Receptions 5
- Interior Area 3000 sqft
-
Stamp Duty
Higher amount applies when purchasing as buy to let or as an additional property£21,250 / £52,500*
Key Features & Description
Exceptional New Build Detached Home (c.3000 sq.ft)
Five Bedrooms (4 With Access to En-Suite & Further Dressing Room In Principal Suite)
Four Reception Rooms; Home Office/Study
Quality Fitted Kitchen Open To Dining Room; Utility Room
Deluxe Family Bathroom; Furnished Cloakroom
Detached Double Garage (c.378 sq.ft); Generous Private Driveway
Landscaped Gardens To The Front & Rear With Patio Area
Full Turn-Key Specification Throughout
Secluded Rural Setting Minutes From Cullybackey & Ballymena
Finished To A High Standard Throughout
Description
Edmondson Estates are delighted to bring to market this exceptional new build detached family home, located in a secluded yet convenient setting off the Dromona Road, Cullybackey, Ballymena . Constructed by Braid Valley Housing, the property is due to be ready for handover Summer 2026.
The site itself extends to circa 0.3 acres in a rural setting only a short distance from Ballymena. The traditional architectural design is sure to capture the eye as well as the high specification finishes throughout.
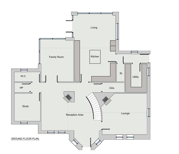
The c.3000 sq.ft house welcomes you with an open plan expansive reception area and lounge, offering you access to the family room, study and open plan kitchen living area with adjoining utility room. On the first floor the property offers 5 double bedrooms (four of which will have access to an en-suite and a further dressing room off the principal bedroom), and deluxe family bathroom.
The bond between the house and the picturesque countryside is ever present in the floor to ceiling windows overlooking the rolling countryside and the River Maine.
Exteriorly the property will be complimented by landscaped gardens and patio areas with a double garage and generous private driveway.
The setting of this house is truly outstanding. It is a tranquil haven immersed in the County Antrim countryside still within proximity of main road networks, schools and proximity to Ballymena and Belfast with Belfast International Airport only 22 miles away.
Early viewing is highly recommended.
Edmondson Estates are delighted to bring to market this exceptional new build detached family home, located in a secluded yet convenient setting off the Dromona Road, Cullybackey, Ballymena . Constructed by Braid Valley Housing, the property is due to be ready for handover Summer 2026.
The site itself extends to circa 0.3 acres in a rural setting only a short distance from Ballymena. The traditional architectural design is sure to capture the eye as well as the high specification finishes throughout.
The c.3000 sq.ft house welcomes you with an open plan expansive reception area and lounge, offering you access to the family room, study and open plan kitchen living area with adjoining utility room. On the first floor the property offers 5 double bedrooms (four of which will have access to an en-suite and a further dressing room off the principal bedroom), and deluxe family bathroom.
The bond between the house and the picturesque countryside is ever present in the floor to ceiling windows overlooking the rolling countryside and the River Maine.
Exteriorly the property will be complimented by landscaped gardens and patio areas with a double garage and generous private driveway.
The setting of this house is truly outstanding. It is a tranquil haven immersed in the County Antrim countryside still within proximity of main road networks, schools and proximity to Ballymena and Belfast with Belfast International Airport only 22 miles away.
Early viewing is highly recommended.
Rooms
ACCOMMODATION
GROUND FLOOR
GRAND RECEPTION HALL 21'12" X 13'11 (6.40m X 4.24m)
LOUNGE 16'5" X 15'1 (5.00m X 4.60m)
DELUXE FITTED KITCHEN OPEN PLAN TO DINING AREA 15'1" X 24'3 (4.60m X 7.39m)
UTILITY ROOM 7'10" X 10'6 (2.39m X 3.20m)
FAMILY ROOM
STUDY 9'6" X 10'2 (2.90m X 3.10m)
FURNISHED CLOAKROOM
FIRST FLOOR
LANDING
PRINCIPAL BEDROOM 12'6" X 13'7 (3.81m X 4.14m)
EN-SUITE
DRESSING ROOM
BEDROOM 2 11'10" X 14'7 (3.61m X 4.45m)
EN-SUITE
BEDROOM 3 11'2" X 14'1 (3.40m X 4.29m)
JACK & JILL EN-SUITE
BEDROOM 4 16'5" X 10'10 (5.00m X 3.30m)
BEDROOM 5 15'1" X 16'3 (4.60m X 4.95m)
DELUXE FAMILY BATHROOM
EXTERNAL
DETACHED DOUBLE GARAGE 19'8" X 19'10 (5.99m X 6.05m)
Property Location
Mortgage Calculator
Contact Agent
Contact Edmondson Estates
Request More Information
Requesting Info about...
37 Dromona Road, Cullybackey, Ballymena, BT42 1NT
By registering your interest, you acknowledge our Privacy Policy
By registering your interest, you acknowledge our Privacy Policy