4 Bed Detached House
15 Mount Davys Road
Cullybackey, Ballymena, BT42 1HE
offers over
£499,950
Key Features & Description
Impressive four bedroom detached home.
Annex with two bedrooms.
Set in scenic Cullybackey countryside.
Beautifully presented throughout.
Four bathrooms and three reception rooms.
Oil fired central heating, uPVC double glazing and BEAM vacuum system.
Description
Impressive and beautifully appointed four-bedroom residence with two bedroom annex situated on the Mount Davys Road in the scenic countryside of Cullybackey. Designed for modern family living with a perfect balance of space, comfort, and style, this home offers an exceptional lifestyle opportunity. Accommodation includes spacious open-plan kitchen/diner, ideal for entertaining and everyday family living, complemented by a cosy snug area, utility room, two additional reception rooms, four bedrooms - master with en-suite and walk in wardrobe, three additional bedrooms - one with en-suite and two bathrooms. Externally the property boasts an ample stoned driveway with laid in lawn to front and paved patio area and stunning countryside views. Benefiting from Oil fired central heating, BEAM vacuum system and uPVC double glazing throughout. The home also benefits from a fully functioning annex. Viewing is strictly by appointment only.
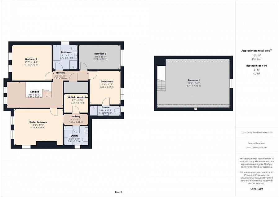
GROUND FLOOR
Hall:
15'10' x 9'0'
Storage cupboard. Understairs dog home. Tile floor.
Sitting Room:
14'1'' x 13'2''
Laminate floor.
Living Room:
17'6'' x 13'3''
Ethanol fire inset. Wood effect tile floor.
Kitchen/Diner:
24'6' x 14'11'
Range of eye and low level two tone shaker style units with granite work tops. Belfast sink with drainer bay and mixer tap. Semi circle breakfast bar. Tall larder. Integrated appliances include Neff gas hob with extractor fan over, Neff double oven and dishwasher. Space for American style fridge/freezer. Tile floor.
Snug Room:
12'3' x 10'7'
French doors to side. Tile floor.
Utility Room:
9'11'' x 9'2''
Range of eye and low level white shaker style units with wooden effect worktop. Laundry bench. Plumbed for washing machine. Space for tumble dryer. Tile floor.
Rear Hall:
9'8' x 5'1'
Access to rear and annex. Tile floor.
W/C:
5'9'' x 3'9''
Low flush w/c and circular wash hand basin. Tile floor.
Mezzanine Landing:
32'6'' x 12'2''
Hotpress. With carpet.
Master Bedroom:
26'8'' x 17'4''
With carpet.
Walk-in Wardrobe:
8'10'' x 6'9''
Built in storage. With carpet.
En-suite:
8'11'' x 6'9''
Three piece suite comprising of low flush w/c, wall mounted vanity unit and walk in mains shower with rain head. Part tiled walls. Tile floor.
Bedroom 2:
14'5'' x 13'5''
With carpet.
Bedroom 3:
15'0'' x 9'0''
With carpet.
Bedroom 4:
12'3'' x 11'3''
With carpet.
En-suite:
11'3'' x 3'10''
Three piece suite comprising of low flush w/c, floating vanity unit and mains shower. Part tiled walls. Tile floor.
Bathroom:
9'1'' x 9'1''
Four piece suite comprising of low flush w/c, floating vanity wash hand basin, electric Mira shower and free standing bath. Partly tiled walls and floor.
EXTERNAL
Front: Stoned driveway with laid in lawn. Paved patio area. Uninterrupted countryside views.
Rear: Annex - see additional brochure.
FREEHOLD
Rates: Approx £3,205 per annum.
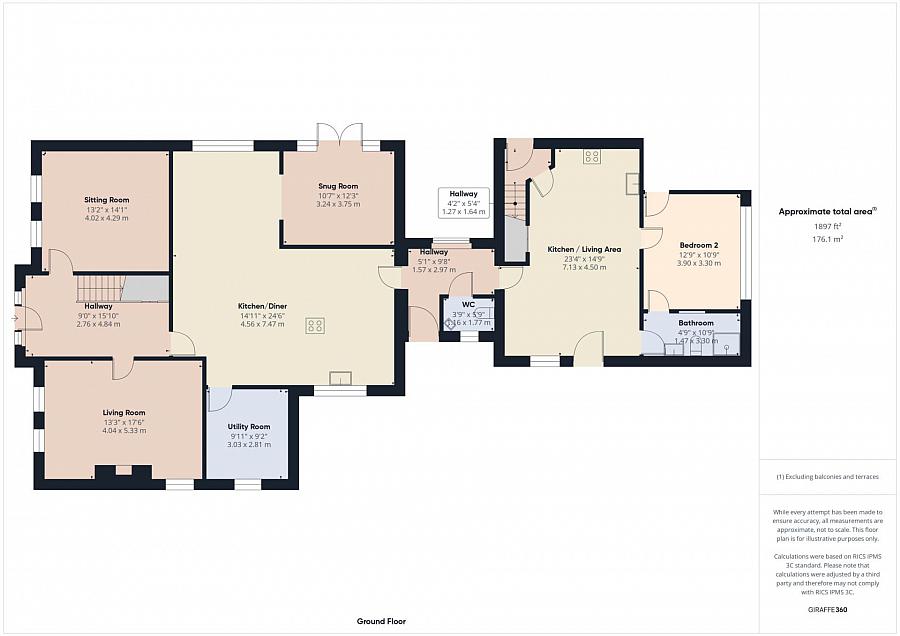
ANNEX
GROUND FLOOR
Kitchen/Diner/ Lounge:
23'4'' x 14'9''
Range of eye and low level cream shaker style units with wooden effect work top. Belfast sink with mixer tap. Integrated appliances include Neff gas hob and oven, fridge/freezer and dishwasher. Tile floor. Living area with electric feature fire with cream surround. Wooden effect tile floor.
Bedroom 2:
12'9'' x 10'9''
Storage cupboard. Laminate floor.
Bathroom:
10'9'' x 4'9''
Three piece suite comprising of low flush w/c,floating vanity wash hand basin and mains shower. Towel Radiator. Tile floor.
FIRST FLOOR
Bedroom 1:
26'0'' x 17'9''
Built in storage units. With carpet.
Notice
Please note we have not tested any apparatus, fixtures, fittings, or services. Interested parties must undertake their own investigation into the working order of these items. All measurements are approximate and photographs provided for guidance only.
Rates Payable
Mid & East Antrim, For Period April 2025 To March 2026 £3,205.00
Utilities
Electric: Unknown
Gas: Unknown
Water: Unknown
Sewerage: Unknown
Broadband: Unknown
Telephone: Unknown
Other Items
Heating: Oil Central Heating
Garden/Outside Space: Yes
Parking: Yes
Garage: No
Impressive and beautifully appointed four-bedroom residence with two bedroom annex situated on the Mount Davys Road in the scenic countryside of Cullybackey. Designed for modern family living with a perfect balance of space, comfort, and style, this home offers an exceptional lifestyle opportunity. Accommodation includes spacious open-plan kitchen/diner, ideal for entertaining and everyday family living, complemented by a cosy snug area, utility room, two additional reception rooms, four bedrooms - master with en-suite and walk in wardrobe, three additional bedrooms - one with en-suite and two bathrooms. Externally the property boasts an ample stoned driveway with laid in lawn to front and paved patio area and stunning countryside views. Benefiting from Oil fired central heating, BEAM vacuum system and uPVC double glazing throughout. The home also benefits from a fully functioning annex. Viewing is strictly by appointment only.
GROUND FLOOR
Hall:
15'10' x 9'0'
Storage cupboard. Understairs dog home. Tile floor.
Sitting Room:
14'1'' x 13'2''
Laminate floor.
Living Room:
17'6'' x 13'3''
Ethanol fire inset. Wood effect tile floor.
Kitchen/Diner:
24'6' x 14'11'
Range of eye and low level two tone shaker style units with granite work tops. Belfast sink with drainer bay and mixer tap. Semi circle breakfast bar. Tall larder. Integrated appliances include Neff gas hob with extractor fan over, Neff double oven and dishwasher. Space for American style fridge/freezer. Tile floor.
Snug Room:
12'3' x 10'7'
French doors to side. Tile floor.
Utility Room:
9'11'' x 9'2''
Range of eye and low level white shaker style units with wooden effect worktop. Laundry bench. Plumbed for washing machine. Space for tumble dryer. Tile floor.
Rear Hall:
9'8' x 5'1'
Access to rear and annex. Tile floor.
W/C:
5'9'' x 3'9''
Low flush w/c and circular wash hand basin. Tile floor.
Mezzanine Landing:
32'6'' x 12'2''
Hotpress. With carpet.
Master Bedroom:
26'8'' x 17'4''
With carpet.
Walk-in Wardrobe:
8'10'' x 6'9''
Built in storage. With carpet.
En-suite:
8'11'' x 6'9''
Three piece suite comprising of low flush w/c, wall mounted vanity unit and walk in mains shower with rain head. Part tiled walls. Tile floor.
Bedroom 2:
14'5'' x 13'5''
With carpet.
Bedroom 3:
15'0'' x 9'0''
With carpet.
Bedroom 4:
12'3'' x 11'3''
With carpet.
En-suite:
11'3'' x 3'10''
Three piece suite comprising of low flush w/c, floating vanity unit and mains shower. Part tiled walls. Tile floor.
Bathroom:
9'1'' x 9'1''
Four piece suite comprising of low flush w/c, floating vanity wash hand basin, electric Mira shower and free standing bath. Partly tiled walls and floor.
EXTERNAL
Front: Stoned driveway with laid in lawn. Paved patio area. Uninterrupted countryside views.
Rear: Annex - see additional brochure.
FREEHOLD
Rates: Approx £3,205 per annum.
ANNEX
GROUND FLOOR
Kitchen/Diner/ Lounge:
23'4'' x 14'9''
Range of eye and low level cream shaker style units with wooden effect work top. Belfast sink with mixer tap. Integrated appliances include Neff gas hob and oven, fridge/freezer and dishwasher. Tile floor. Living area with electric feature fire with cream surround. Wooden effect tile floor.
Bedroom 2:
12'9'' x 10'9''
Storage cupboard. Laminate floor.
Bathroom:
10'9'' x 4'9''
Three piece suite comprising of low flush w/c,floating vanity wash hand basin and mains shower. Towel Radiator. Tile floor.
FIRST FLOOR
Bedroom 1:
26'0'' x 17'9''
Built in storage units. With carpet.
Notice
Please note we have not tested any apparatus, fixtures, fittings, or services. Interested parties must undertake their own investigation into the working order of these items. All measurements are approximate and photographs provided for guidance only.
Rates Payable
Mid & East Antrim, For Period April 2025 To March 2026 £3,205.00
Utilities
Electric: Unknown
Gas: Unknown
Water: Unknown
Sewerage: Unknown
Broadband: Unknown
Telephone: Unknown
Other Items
Heating: Oil Central Heating
Garden/Outside Space: Yes
Parking: Yes
Garage: No
Broadband Speed Availability
Potential Speeds for 15 Mount Davys Road
Max Download
1800
Mbps
Max Upload
300
MbpsThe speeds indicated represent the maximum estimated fixed-line speeds as predicted by Ofcom. Please note that these are estimates, and actual service availability and speeds may differ.
Property Location
Mortgage Calculator
Contact Agent
Contact 360 Properties
Request More Information
Requesting Info about...
15 Mount Davys Road, Cullybackey, Ballymena, BT42 1HE
By registering your interest, you acknowledge our Privacy Policy
By registering your interest, you acknowledge our Privacy Policy