3 Bed Detached Bungalow
25 Lanntara
Ballymena, BT42 3BE
offers over
£89,950
Key Features & Description
Three bedroom semi-detached bungalow.
Set in the well established Lanntara.
Ideally positioned off the Antrim Road,
Easy access to local amenities
Spacious kitchen/diner.
Low maintenance yard.
Oil fired central heating and uPVC double glazing
Description
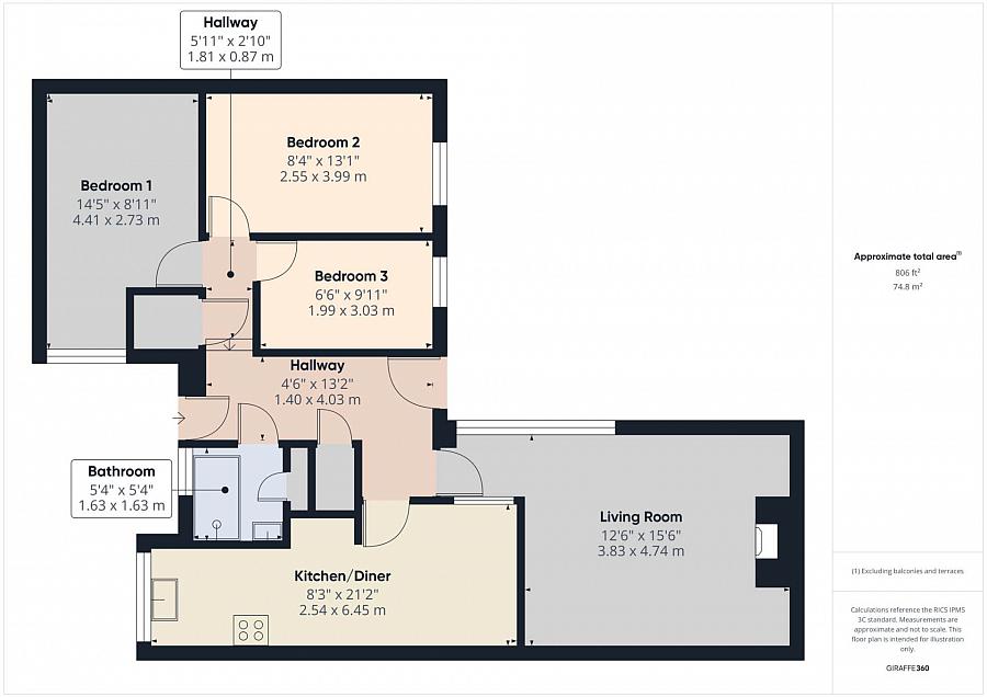
360 Properties are pleased to bring to the market this three bedroom end terrace bungalow, set in the well established Lanntara. Ideally positioned just off the Antrim Road, the property benefits from being within walking distance of local amenities and offers convenient access to main commuter routes. Internally, the accommodation comprises a spacious open-plan kitchen and dining area, living room, three well-proportioned bedrooms, and bathroom with separate w/c. Externally, the property features low-maintenance paved patio areas to both the front and rear, as well as off-street parking. Other attributes include oil-fired central heating and uPVC double glazing throughout. Suitable for a wide range of buyers including those wishing to downsize and First Time Buyers. Viewing strictly by appointment only.
Hall:
13'2'' x 4'6''
Feature wall panelling. Laminate floor.
Kitchen/Diner:
21'2'' x 8'3''
Range of low and eye level traditional style beech units with black speckled work top. Stainless steel sink with drainer bay and mixer tap. Space for fridge/freezer and hob/oven with stainless steel extractor fan over. Plumbed for washing machine. Feature wall panelling. Tile and laminate floor.
Living Room:15'6'' x 12'6''Wood burning stove with feature brick inset and tile hearth. Tile floor.
Bedroom 1:14'5'' x 8'11''
With carpet.
Bedroom 2:13'1'' x 8'4''
Linoleum floor.
Bedroom 3:9'11'' x 6'6''
With laminate.
Bathroom:
5'4'' x 5'4''
Hotpress. Vanity wash hand basin and mains shower. Fully tiled walls and floor.
W/C:
Low flush w/c. Fully tiled walls and floor.
EXTERNAL
Front: Paved patio area.
Rear: Fully enclosed paved patio area bound by wall and fence.
FREEHOLD
Rates: Approx. £616 per annum.
Notice
Please note we have not tested any apparatus, fixtures, fittings, or services. Interested parties must undertake their own investigation into the working order of these items. All measurements are approximate and photographs provided for guidance only.
Rates Payable
Mid & East Antrim, For Period April 2025 To March 2026 £616.00
Utilities
Electric: Unknown
Gas: Unknown
Water: Unknown
Sewerage: Unknown
Broadband: Unknown
Telephone: Unknown
Other Items
Heating: Oil Central Heating
Garden/Outside Space: Yes
Parking: No
Garage: No
360 Properties are pleased to bring to the market this three bedroom end terrace bungalow, set in the well established Lanntara. Ideally positioned just off the Antrim Road, the property benefits from being within walking distance of local amenities and offers convenient access to main commuter routes. Internally, the accommodation comprises a spacious open-plan kitchen and dining area, living room, three well-proportioned bedrooms, and bathroom with separate w/c. Externally, the property features low-maintenance paved patio areas to both the front and rear, as well as off-street parking. Other attributes include oil-fired central heating and uPVC double glazing throughout. Suitable for a wide range of buyers including those wishing to downsize and First Time Buyers. Viewing strictly by appointment only.
Hall:
13'2'' x 4'6''
Feature wall panelling. Laminate floor.
Kitchen/Diner:
21'2'' x 8'3''
Range of low and eye level traditional style beech units with black speckled work top. Stainless steel sink with drainer bay and mixer tap. Space for fridge/freezer and hob/oven with stainless steel extractor fan over. Plumbed for washing machine. Feature wall panelling. Tile and laminate floor.
Living Room:15'6'' x 12'6''Wood burning stove with feature brick inset and tile hearth. Tile floor.
Bedroom 1:14'5'' x 8'11''
With carpet.
Bedroom 2:13'1'' x 8'4''
Linoleum floor.
Bedroom 3:9'11'' x 6'6''
With laminate.
Bathroom:
5'4'' x 5'4''
Hotpress. Vanity wash hand basin and mains shower. Fully tiled walls and floor.
W/C:
Low flush w/c. Fully tiled walls and floor.
EXTERNAL
Front: Paved patio area.
Rear: Fully enclosed paved patio area bound by wall and fence.
FREEHOLD
Rates: Approx. £616 per annum.
Notice
Please note we have not tested any apparatus, fixtures, fittings, or services. Interested parties must undertake their own investigation into the working order of these items. All measurements are approximate and photographs provided for guidance only.
Rates Payable
Mid & East Antrim, For Period April 2025 To March 2026 £616.00
Utilities
Electric: Unknown
Gas: Unknown
Water: Unknown
Sewerage: Unknown
Broadband: Unknown
Telephone: Unknown
Other Items
Heating: Oil Central Heating
Garden/Outside Space: Yes
Parking: No
Garage: No
Broadband Speed Availability
Potential Speeds for 25 Lanntara
Max Download
1800
Mbps
Max Upload
220
MbpsThe speeds indicated represent the maximum estimated fixed-line speeds as predicted by Ofcom. Please note that these are estimates, and actual service availability and speeds may differ.
Property Location
Mortgage Calculator
Contact Agent
Contact 360 Properties
Request More Information
Requesting Info about...