Contact Agent

Contact McCartney & Crawford

Contact McCartney & Crawford

Grass Field

C. 4.5 Acres Opposite, 20 Speerstown Road

Moorfields, Ballymena, BT42 3DD

offers over £50,000
  • Status Sale Agreed
  • Property Type Grass Field
  • Stamp Duty
    Higher amount applies when purchasing as buy to let or as an additional property
    £0 / £2,500*
  • Typical Mortgage
    Click price to use our mortgage calculator

Key Features & Description

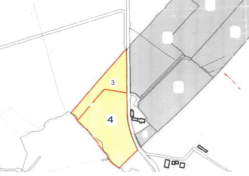
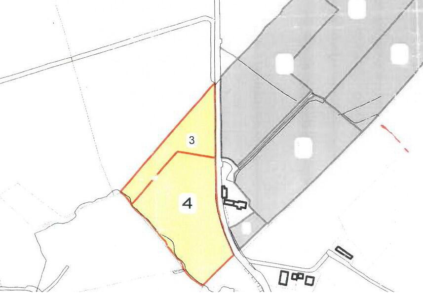
2x Road Fronting Fields
Presently in Grass
Area Totalling Approx. 4.5 Acres
Natural Stream to Rear
Strong Agricultural Area of Moorfields
Handy Small Block in Good Country & Farming District
Description

McCartney & Crawford are pleased to introduce this convenient block of land to the open sales market. Consisting of two road-fronting fields presently in grass with a natural stream running through the back, totalling some 4.5 acres.

The fields sit in a beneficial location which is popular for local agricultural use. 


For Maps, Appointments to View, and Offers contact Selling Agent McCartney & Crawford:

28-30 Thomas Street, Ballymena, BT43 6AX

T: 028 2565 2272

E: mail@mccartneyandcrawford.com


These particulars, whist believed to be accurate are set out as a general outline only for guidance and do not constitute any part of an offer or contract. Intending purchasers should not rely on them as statements of representation of fact but must satisfy themselves by inspection or otherwise as to their accuracy. No person in the employment of McCartney and Crawford has the authority to make or give any representation or warranty in respect of the property.

Broadband Speed Availability

Ultrafast

Potential Speeds for 20 Speerstown Road

Max Download
10000
Mbps
Max Upload
10000
Mbps
The speeds indicated represent the maximum estimated fixed-line speeds as predicted by Ofcom. Please note that these are estimates, and actual service availability and speeds may differ.

Property Location

Show Map

Mortgage Calculator

Disclaimer: The following calculations act as a guide only, and are based on a typical repayment mortgage model. Financial decisions should not be made based on these calculations and accuracy is not guaranteed. Always seek professional advice before making any financial decisions.

Contact Agent

Contact McCartney & Crawford

Contact McCartney & Crawford

Request More Information
Requesting Info about...
C. 4.5 Acres Opposite, 20 Speerstown Road, Moorfields, Ballymena, BT42 3DD C. 4.5 Acres Opposite, 20 Speerstown Road, Moorfields, Ballymena, BT42 3DD

By registering your interest, you acknowledge our Privacy Policy