Contact Agent
Contact John Minnis Estate Agents (Bangor)
3 Bed Semi-Detached House
20 Fourth Avenue
Bay Lands, Bangor, BT20 5JY
offers around
£274,950
Key Features & Description
Attractive Semi Detached Property
Prestigious and Highly Regarded Ballyholme Address
Charm and Character in Abundance
Living Room with Attractive Oak Fireplace, Open Fire and Solid Oak Floor
Open Plan Kitchen to Casual Dining/Family Area with Electric Remote Control Velux Window and Double Glazed Sliding Patio Door to Rear Garden as well as Plannining Permission to Extend Further
Three First Floor Bedrooms
Fully Tiled Bathroom with Three Piece White Suite
Fixed Staircase to Fully Floored Roofspace with Planning Permission to Convert to Another Bedroom with Ensuite and Dormer Window
Oil Fired Central Heating
ouPVC Double Glazed Windows
Easily Maintained Front Garden in Loose Stones
Tarmac Driveway with Parking
Outstanding Fully Enclosed Rear Garden in Lawns with Paved Patio Barbecue Area, Southerly Aspect and Excellent Degree of Privacy, Rear Garden is an Ideal Space for Children at Play or For Outdoor Entertaining
Utility Area Which is Plumbed for Washing Machine and with Space for Tumble Dryer
In Close Proximity to Many Amenities Including Ballyholme Beach and Village, Ward Park, Bangor Golf Club, Sailing Clubs, Shops, Cafes, Restaurants and Schools
Wide Ranging Appeal to a Host of Potential Purchasers Including First Time Buyers, Young Professionals and Those Looking to Downsize
Early Viewing Essential
Recent Sales of Other Properties Have Proven to be Extremely Successful and This One Should be No Different
Description
Located in this highly regarded and prestigious area of Baylands in Ballyholme, here is an ideal opportunity to purchase an attractive semi detached property with excellent convenience to many amenities including Ward Park, Ballyholme beach and village, Bangor Golf Club, sailing clubs, schools, shops, restaurants and cafes, etc. This fantastic property offers charm and character in abundance as well as a realistic price for the location.
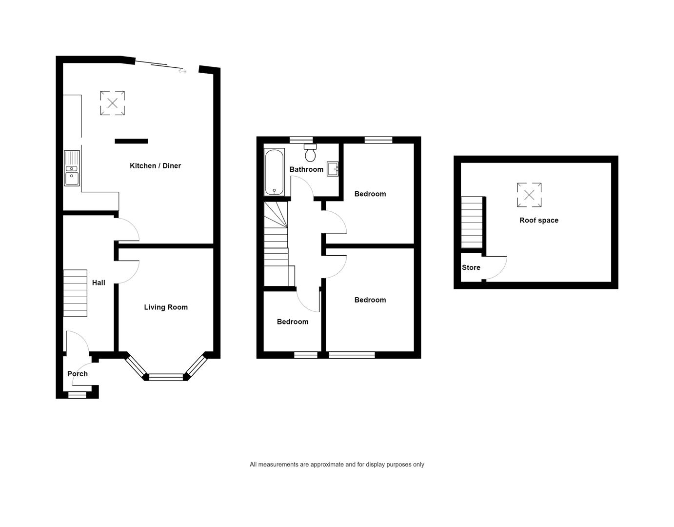
The ground floor comprises living room with attractive oak fireplace, open fire and solid oak floor, and open plan kitchen to casual dining and family area with electric remote control Velux window, double glazed patio door to rear garden and planning approval to extend further. Upstairs there are three bedrooms and a fully tiled bathroom as well as a fixed staircase to fully floored roofspace with planning permission to convert to a bedroom with ensuite and dormer window. Outside does not disappoint either. There is an easily maintained front garden in loose stones, tarmac driveway with parking and outstanding fully enclosed rear garden in lawns with paved patio barbecue area, southerly aspect and excellent degree of privacy making an ideal space for children at play or for outdoor entertaining. Other benefits include utility area which is plumbed for washing machine and with space for tumble dryer, oil fired central heating and uPVC double glazed windows.
Recent sales of other properties in the Ballyholme area have proven to be extremely successful and this one should be no different. We expect demand to be high and from a wide range of prospective purchaser including first time buyers, young professionals and those looking to downsize. A viewing is thoroughly recommended at your earliest opportunity so as to appreciate it in its entirety.
Located in this highly regarded and prestigious area of Baylands in Ballyholme, here is an ideal opportunity to purchase an attractive semi detached property with excellent convenience to many amenities including Ward Park, Ballyholme beach and village, Bangor Golf Club, sailing clubs, schools, shops, restaurants and cafes, etc. This fantastic property offers charm and character in abundance as well as a realistic price for the location.
The ground floor comprises living room with attractive oak fireplace, open fire and solid oak floor, and open plan kitchen to casual dining and family area with electric remote control Velux window, double glazed patio door to rear garden and planning approval to extend further. Upstairs there are three bedrooms and a fully tiled bathroom as well as a fixed staircase to fully floored roofspace with planning permission to convert to a bedroom with ensuite and dormer window. Outside does not disappoint either. There is an easily maintained front garden in loose stones, tarmac driveway with parking and outstanding fully enclosed rear garden in lawns with paved patio barbecue area, southerly aspect and excellent degree of privacy making an ideal space for children at play or for outdoor entertaining. Other benefits include utility area which is plumbed for washing machine and with space for tumble dryer, oil fired central heating and uPVC double glazed windows.
Recent sales of other properties in the Ballyholme area have proven to be extremely successful and this one should be no different. We expect demand to be high and from a wide range of prospective purchaser including first time buyers, young professionals and those looking to downsize. A viewing is thoroughly recommended at your earliest opportunity so as to appreciate it in its entirety.
Rooms
ENTRANCE
uPVC double glazed front door to enclosed entrance porch.
ENCLOSED ENTRANCE PORCH:
Fully tiled floor, glazed inner door to reception hall.
Reception Hall
Solid oak floor.
Living Room 10'3" X 13'2" (3.12m X 4.01m)
into bay at widest points
Attractive oak fireplace, cast iron inset, granite hearth, open fire, solid oak floor, cornice ceiling.
Attractive oak fireplace, cast iron inset, granite hearth, open fire, solid oak floor, cornice ceiling.
Open Plan Kitchen to Casual Dining Area 18'10" X 15'10" (5.74m X 4.83m)
at widest points
Range of high and low level units, granite effect work surfaces, one and a half bowl single drainer stainless steel sink unit with mixer tap, integrated double oven, integrated four ring hob, tiled splashback, extractor fan above, integrated dishwasher, space for fridge freezer, fully tiled floor, part tiled walls, electric controlled Velux window, double glazed sliding patio doors to rear garden.
Range of high and low level units, granite effect work surfaces, one and a half bowl single drainer stainless steel sink unit with mixer tap, integrated double oven, integrated four ring hob, tiled splashback, extractor fan above, integrated dishwasher, space for fridge freezer, fully tiled floor, part tiled walls, electric controlled Velux window, double glazed sliding patio doors to rear garden.
LANDING:
Cornice ceiling.
Bedroom One 10'11" X 9'5" (3.33m X 2.87m)
Laminate wood effect floor.
Bedroom Two 10'11" X 7'3" (3.33m X 2.21m)
Laminate wood effect floor.
Bedroom Three 6'6" X 6'1" (1.98m X 1.85m)
Laminate wood effect floor.
Fully Tiled Bathroom
Three piece white suite comprising: panelled bath with mixer tap and shower over, wash hand basin with mixer tap on vanity unit, low flush WC, fully tiled floor, fully tiled walls, chrome heated towel rail.
Fixed Staircase to Fully Floored Roofspace
With storage in eaves, potential to convert subject to necessary approvals.
OUTSIDE
Easily maintained front garden in loose stones, tarmac driveway with parking, outstanding fully enclosed rear garden in lawns with paved patio barbecue area, flowerbeds in plants and shrubs, southerly aspect and excellent degree of privacy making an ideal space for children at play or for outdoor entertaining, utility area plumbed for washing machine, space for tumble dryer, store and uPVC oil tank.
Bangor is a beautiful seaside town located just over 13 miles from Belfast. Bangor offers a wide variety of property with something to suit all.
Bangor Marina is one of the largest in Ireland and attracts plenty of visitors when the sun shows its face. Tourism is a big factor in this part of the world.
Bangor Marina is one of the largest in Ireland and attracts plenty of visitors when the sun shows its face. Tourism is a big factor in this part of the world.
Broadband Speed Availability
Potential Speeds for 20 Fourth Avenue
Max Download
1800
Mbps
Max Upload
220
MbpsThe speeds indicated represent the maximum estimated fixed-line speeds as predicted by Ofcom. Please note that these are estimates, and actual service availability and speeds may differ.
Property Location
Mortgage Calculator
Contact Agent
Contact John Minnis Estate Agents (Bangor)
Request More Information
Requesting Info about...
20 Fourth Avenue, Bay Lands, Bangor, BT20 5JY
By registering your interest, you acknowledge our Privacy Policy
By registering your interest, you acknowledge our Privacy Policy