22 Godfrey Avenue
Ballyholme, Bangor, BT20 5LS

Key Features & Description
Immaculately presented semi detached home right in the heart of Ballyholme just a stones throw from the beach. All the amenities of Ballyhome Village are within easy walking distance including shops, restaurant, cafes and local schooling.
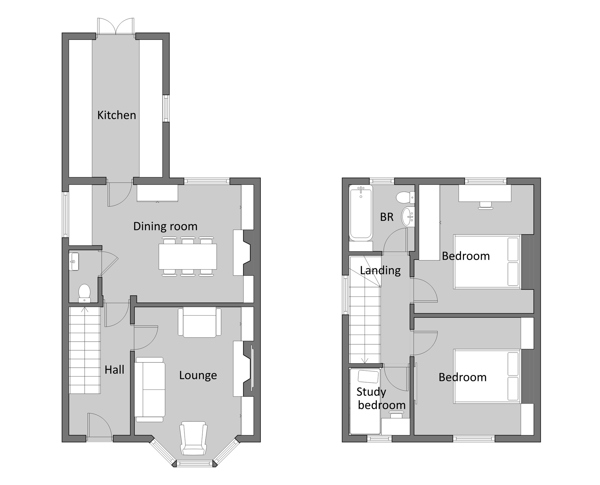
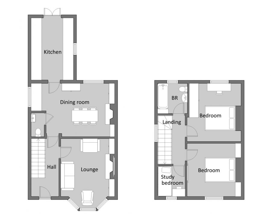
The ground floor offers a well presented lounge with feature wood stove burner, through to a bright & airy spacious open living/dining room with wood stove burner and a access to the downstairs w/c and luxury fitted kitchen.
On the first floor there are three well proportioned bedrooms and a three piece deluxe bathroom suite completes upstairs.
Outside a detached garage is apart of a generous enclosed rear which also offers lawns and patio area.
Early viewing is recommended and only on internal appraisal can one truely appreciate all this superb home has to offer.
Rooms
Broadband Speed Availability
Potential Speeds for 22 Godfrey Avenue
Property Location

Mortgage Calculator
Directions
Contact Agent

Contact Gordon Smyth Estate Agents

By registering your interest, you acknowledge our Privacy Policy