2 Bed Apartment
Apartment 1, 35 College Green
College Avenue, Bangor, BT20 5FA
offers around
£325,000
Key Features & Description
Bright, spacious, modern ground floor apartment c.1160 square feet
High ceilings and large, tall double glazed windows filling the apartment with light
Contemporary interior in historic building originally Bangor Grammar School
Built c.1905 converted and totally modernised in 2017
Level approach from car park and garden to rear
Striking, modern kitchen with dove grey units, appliances, quartz worktops and large centre island
Attractive bathroom and en suite shower room
Extensive terrazzo tiling
Intercom door buzzer entry system
Off street car parking
Gas fired central heating
Walking distance of city centre, Ballyholme beach, Ballyholme and Royal Ulster Yacht clubs
Description
The Agent"s Perspective...
"Located within walking distance of Bangor"s High Street and convenient to Ballyholme beach, yacht club and Royal Ulster Yacht Club, this is a perfectly situated ground floor apartment.
Constructed c.1905, the building was originally part of Bangor Grammar School. The popularity of the school meant it outgrew the buildings so they needed to move for more space and also to relocate where playing fields were adjacent to the school buildings.
The property was sold and redeveloped in c.2017 converting the building into bright, luxury apartments combining tradition with practical comfortable living.
This apartment is simply stunning with a large, bright airy atmosphere. The living / dining / kitchen space does have that "wow" factor . There are two double bedrooms, contemporary bathroom and en suite shower room. Creature comforts are enhanced with double glazing and gas fired central heating.
Perfect space for a professional person, couple or those downsizing who want an easy, maintained lifestyle.
Simply must be seen to be fully appreciated"
The Agent"s Perspective...
"Located within walking distance of Bangor"s High Street and convenient to Ballyholme beach, yacht club and Royal Ulster Yacht Club, this is a perfectly situated ground floor apartment.
Constructed c.1905, the building was originally part of Bangor Grammar School. The popularity of the school meant it outgrew the buildings so they needed to move for more space and also to relocate where playing fields were adjacent to the school buildings.
The property was sold and redeveloped in c.2017 converting the building into bright, luxury apartments combining tradition with practical comfortable living.
This apartment is simply stunning with a large, bright airy atmosphere. The living / dining / kitchen space does have that "wow" factor . There are two double bedrooms, contemporary bathroom and en suite shower room. Creature comforts are enhanced with double glazing and gas fired central heating.
Perfect space for a professional person, couple or those downsizing who want an easy, maintained lifestyle.
Simply must be seen to be fully appreciated"
Rooms
Double, double glazed aluminium doors with intercom door buzzer entry system to :
ENTRANCE LOBBY
Hardwood timber flooring, double glass doors to:
RECEPTION HALL:
Staircase and lift to upper floors
Solid front door to Apartment 1
ENTRANCE HALL:
Ceramic tiled floor, built-in cloaks cupboards, door to:
INNER HALL
Terrazzo tiled floor, open to:
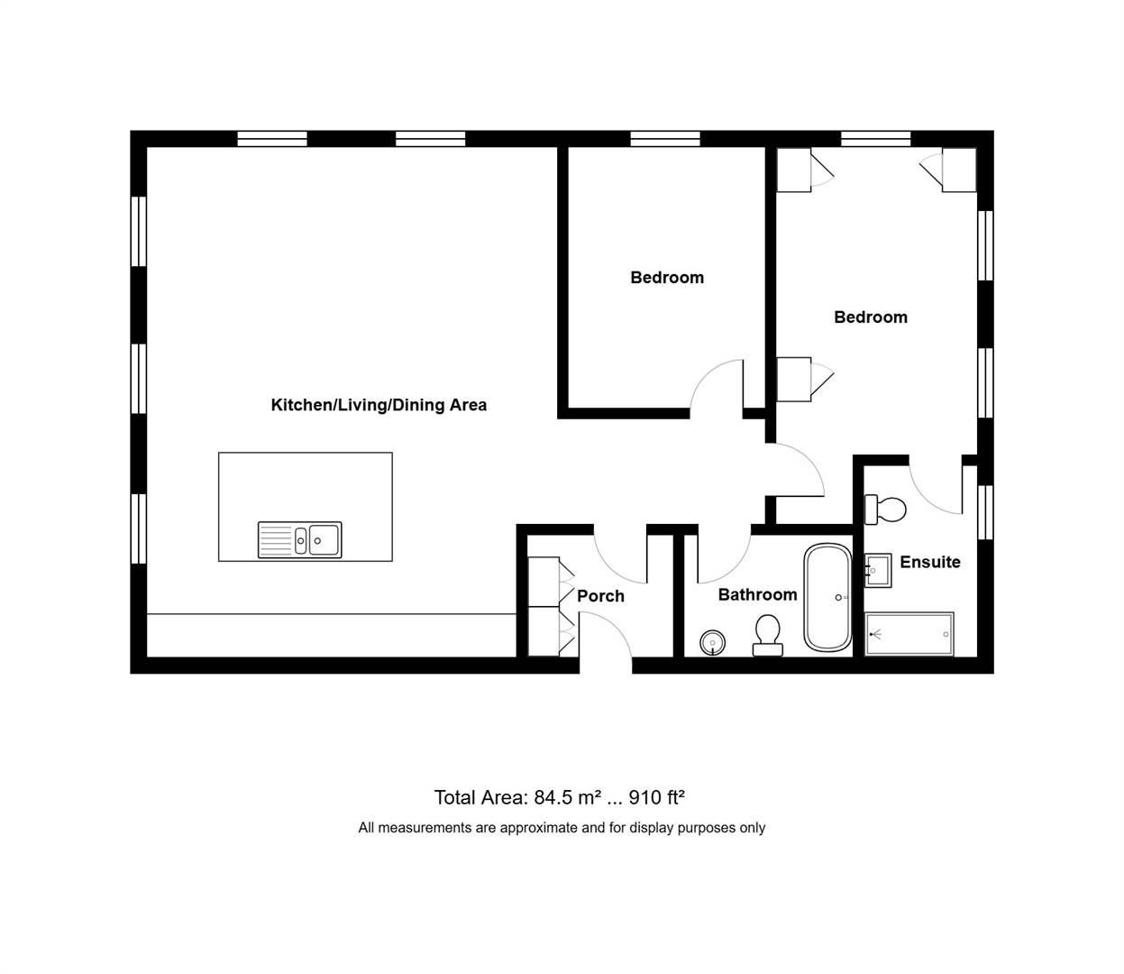
StRIKING LIVING / DINING / KITCHEN 23' 9" X 19' 6" (7.24m X 5.94m)
Feature high coved ceiling, dual aspect with high, tall double glazed windows, terrazzo tiled floor, feature contemporary raised electric fire, extensive range of dove grey high gloss cupboards, quartz worktops and centre island with breakfast point, inset 1.5 tub stainless steel sinks, mixer tap. Space for stools below worktop. NEFF oven, NEFF four ring ceramic hob, stainless steel cooker canopy, integrated fridge, freezer and dishwasher. Concealed Vokera gas fired central heating boiler,
BEDROOM (1): 17' 6" X 9' 6" (5.33m X 2.90m)
(max) Range of built-in wardrobes, bedside tables, high coved ceiling and high, tall double glazed windows with dual aspect, Door to:
ENSUITE SHOWER ROOM: 9' 0" X 5' 6" (2.74m X 1.68m)
Large fully tiled shower cubicle with terrazzo style tiles, anodised thermostatic shower with drench and telephone hand showers, Vanity unit with wash hand basin, anodised mixer tap, low flush wc, tiled floor in matching tiles, extractor fan.
BEDROOM (2): 12' 6" X 9' 6" (3.81m X 2.90m)
feature coved high ceiling, bright, high tall window.
BATHROOM: 8' 3" X 6' 6" (2.51m X 1.98m)
Contemporary white suite, oval bath with 'standard' anodised mixer tap, telephone hand shower, low flush wc, vanity unit rice bowl sink, anodised mixer tap, terrazzo effect tiled floor, tiled splash back to bath, extractor fan, recessed lighting.
Pebble driveway / parking space
Maintained gardens to front and rear in lawns and planting
Screened bin store
Property Location
Mortgage Calculator
Directions
Go to top of High Street, bear left onto Ballyholme Road and first left into College Avenue. College Green is first left.
Contact Agent
Contact Rodgers & Browne
Request More Information
Requesting Info about...
Apartment 1, 35 College Green, College Avenue, Bangor, BT20 5FA
By registering your interest, you acknowledge our Privacy Policy
By registering your interest, you acknowledge our Privacy Policy