Contact Agent
Contact John Minnis Estate Agents (Donaghadee)
4 Bed Detached House
1 St. Andrews Drive
Ballyhalbert, Newtownards, BT22 1TW
offers around
£269,950
Key Features & Description
Outstanding Detached Red Brick Family Home
Cul-de-Sac Position Within Popular Coastal Development
Well Presented Throughout Leaving Little Left to Do but Move in and Enjoy
Good Sized Living Room with Cast Iron Wood Burning Stove
Superb Modern Fitted Kitchen Open Plan to Casual Dining and Family Area with uPVC Double Glazed French Doors onto the Rear Garden
Kitchen Also Has Range of Integrated Appliances and an Island Unit
Separate Utility Room
Four Well Proportioned Bedrooms Including Main Bedroom with En Suite Shower Room
Family Bathroom with Four Piece Suite to Include Bath and Separate Shower
Additional Downstairs WC
Oil Fired Central Heating
ouPVC Double Glazed Windows, Guttering and Soffits
Front Garden in Lawns
Driveway in Attractive Brick Paviour with Parking
Fantastic Fully Enclosed Easily Maintained Rear Garden with Extensive Paved Patio Barbecue Terrace, Artificial Grass and Shed
Shed with Light and Power and Could Be Used as a Games Room or Bar
Demand Anticipated to be High and to a Wide Range of Prospective Purchasers
Easy Access to Ballywalter, Portaferry, Kircubbin, Greyabbey and Donaghadee
Demand Anticipated to be High and to a Wide Range of Prospective Purchasers
Early Viewing Essential
Description
Located in a cul-de-sac within this popular coastal development here is an ideal opportunity to purchase an attractive red brick detached family home built late 2017 which is extremely well presented throughout leaving little left to do but move in and enjoy. The accommodation is bright, spacious and flexible comprising good sized living room with cast iron wood burning stove and superb open plan kitchen with range of integrated appliances and island unit to casual dining/family area with French doors leading out to the rear garden. Upstairs this fine home is further enhanced by having four well proportioned bedrooms, including main bedroom with en suite shower room, and a family bathroom with four piece suite to include bath and separate shower with a spacious landing/reading area Outside there is a front garden in lawns, driveway in attractive brick paviour with parking and fantastic fully enclosed easily maintained rear garden with extensive paved patio terrace barbecue area, artificial lawns and good sized shed with light and power, potential to be used as games room or bar. Other benefits include oil fired central heating, uPVC double glazed windows, guttering and soffits, downstairs WC, utility room and pressurised water system. Demand is anticipated to be high and to a wide range of prospective purchasers. A viewing is thoroughly recommended at your earliest opportunity so as to appreciate it in its entirety.
Located in a cul-de-sac within this popular coastal development here is an ideal opportunity to purchase an attractive red brick detached family home built late 2017 which is extremely well presented throughout leaving little left to do but move in and enjoy. The accommodation is bright, spacious and flexible comprising good sized living room with cast iron wood burning stove and superb open plan kitchen with range of integrated appliances and island unit to casual dining/family area with French doors leading out to the rear garden. Upstairs this fine home is further enhanced by having four well proportioned bedrooms, including main bedroom with en suite shower room, and a family bathroom with four piece suite to include bath and separate shower with a spacious landing/reading area Outside there is a front garden in lawns, driveway in attractive brick paviour with parking and fantastic fully enclosed easily maintained rear garden with extensive paved patio terrace barbecue area, artificial lawns and good sized shed with light and power, potential to be used as games room or bar. Other benefits include oil fired central heating, uPVC double glazed windows, guttering and soffits, downstairs WC, utility room and pressurised water system. Demand is anticipated to be high and to a wide range of prospective purchasers. A viewing is thoroughly recommended at your earliest opportunity so as to appreciate it in its entirety.
Rooms
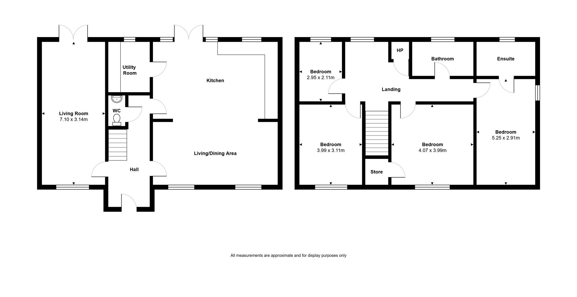
GROUND FLOOR
Entrance
uPVC double glazed front door with uPVC double glazed side panel and over panel to reception hall.
Reception Hall
Fully tiled floor.
Downstairs WC
Two piece white suite comprising low flush WC, pedestal wash hand basin, mixer tap, fully tiled floor, part tiled walls, extractor fan.
Living Room 23´8" X 10´8" (7.01m X 3.05m)
at widest points Fireplace with cast iron wood burning stove, granite hearth, laminate wood effect floor, uPVC double glazed French doors to rear garden.
Superb Kitchen Open to Casual Dining/Family Area 23´8" X 20´8" (7.01m X 6.10m)
at widest points Range of high and low level Shaker style units, granite effect work surfaces, single bowl single drainer stainless steel sink unit with mixer tap, integrated four ring induction hob, splashback, extractor fan above, integrated oven, integrated microwave, integrated fridge freezer, plumbed for dishwasher, island unit with additional storage, breakfast bar, fully tiled floor throughout
Utility Room
Storage cupboard, granite effect work surfaces, plumbed for washing machine, space for tumble dryer and/or freezer , built-in shelving, fully tiled floor, extractor fan
Stairs to First Floor
FIRST FLOOR
Landing
Large spacious landing to accommodate a reading /potential office area with shelved airing cupboard with pressurised water system.
Bedroom One 13´8" X 13´6" (3.96m X 3.96m)
Access to roofspace, storage cupboard.
Bedroom Three 13´4" X 10´8" (3.96m X 3.05m)
at widest points
Bedroom Four 10´ X 7´1" (3.05m X 2.13m)
at widest points Currently used as dressing room, with built-in shelving and dressing table.
Bathroom
Four piece suite comprising panelled bath with mixer tap and hand shower, separate shower cubicle, floating wash hand basin, mixer tap, low flush WC, chrome heated towel rail, fully tiled floor, part tiled walls, extractor fan.
OUTSIDE
Front garden in lawns, driveway in attractive brick paviour with double parking, easily maintained fully enclosed rear garden, artificial grass, large storage shed with light and power, oil fired boiler in boiler house, uPVC oil tank, outside tap
Ballyhalbert, a quaint village nestled on the Ards Peninsula. It offers stunning views of the Irish Sea, a picturesque harbour and serene beaches. Its tranquil setting and rich heritage make Ballyhalbert a hidden gem.
Broadband Speed Availability
Potential Speeds for 1 St. Andrews Drive
Max Download
1800
Mbps
Max Upload
1000
MbpsThe speeds indicated represent the maximum estimated fixed-line speeds as predicted by Ofcom. Please note that these are estimates, and actual service availability and speeds may differ.
Property Location
Mortgage Calculator
Contact Agent
Contact John Minnis Estate Agents (Donaghadee)
Request More Information
Requesting Info about...
1 St. Andrews Drive, Ballyhalbert, Newtownards, BT22 1TW
By registering your interest, you acknowledge our Privacy Policy
By registering your interest, you acknowledge our Privacy Policy