Contact Agent
Contact Templeton Robinson (North Down)
2 Bed Terrace House
12 Sandown Drive
Ballyhackamore, Belfast, BT5 6GZ
offers over
£174,950
Key Features & Description
Attractive mid-terrace property located in the heart of Ballyhackamore
Separate, well-proportioned living room
Modern fitted kitchen open plan to a bright dining area
Three well-sized bedrooms on the first floor
Recently installed contemporary shower room
Enclosed rear courtyard with utility storage and outdoor entertaining space
Gas fired central heating and uPVC double glazing
Conveniently located close to leading schools, shops, restaurants and excellent transport links
Description
This attractive mid-terrace property is ideally positioned in the heart of Ballyhackamore, one of East Belfast"s most sought-after and convenient locations. Within walking distance of a superb range of local shops, cafés and restaurants, as well as excellent schools and transport links, the property offers both convenience and a strong sense of community.
Internally, the accommodation is well presented and thoughtfully laid out. The ground floor comprises a bright, well-proportioned living room and a modern fitted kitchen open plan to a dining area, creating an ideal space for everyday living and entertaining. On the first floor, there are three well-sized bedrooms, complemented by a recently installed contemporary shower room.
Externally, the property benefits from an enclosed rear courtyard with a useful utility store and space for outdoor seating, perfect for relaxing or entertaining. Further benefits include gas fired central heating and uPVC double glazing. This is an excellent opportunity for first-time buyers, young professionals or investors seeking a home in a highly desirable location.
This attractive mid-terrace property is ideally positioned in the heart of Ballyhackamore, one of East Belfast"s most sought-after and convenient locations. Within walking distance of a superb range of local shops, cafés and restaurants, as well as excellent schools and transport links, the property offers both convenience and a strong sense of community.
Internally, the accommodation is well presented and thoughtfully laid out. The ground floor comprises a bright, well-proportioned living room and a modern fitted kitchen open plan to a dining area, creating an ideal space for everyday living and entertaining. On the first floor, there are three well-sized bedrooms, complemented by a recently installed contemporary shower room.
Externally, the property benefits from an enclosed rear courtyard with a useful utility store and space for outdoor seating, perfect for relaxing or entertaining. Further benefits include gas fired central heating and uPVC double glazing. This is an excellent opportunity for first-time buyers, young professionals or investors seeking a home in a highly desirable location.
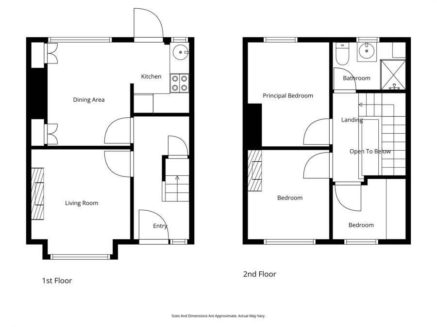
Rooms
Wooden front door with stained glass central and side panels.
ENTRANCE HALL:
Oak laminate flooring, understair storage.
LIVING ROOM: 9' 10" X 10' 6" (3.00m X 3.20m)
Oak laminate effect flooring, original feature fireplace, outlook to front, picture rail.
KITCHEN/DINING SPACE: 15' 5" X 10' 10" (4.70m X 3.30m)
Oak laminate effect flooring, outlook to rear courtyard, built in shelving and storage, good range of high and low level units, space for fridge/freezer, electric oven and hob with extractor fan, circular stainless steel wash hand basin with chrome mixer tap, access to rear courtyard.
LANDING:
Access to roofspace.
BEDROOM (1): 9' 6" X 7' 10" (2.90m X 2.40m)
Original wooden flooring, original fireplace with red tiles, picture rail.
BEDROOM (2): 10' 2" X 7' 10" (3.10m X 2.40m)
Outlook to rear, picture rail.
BEDROOM (3)/WALK IN WARDROBE: 7' 3" X 6' 3" (2.20m X 1.90m)
Outlook to front, picture rail.
SHOWER ROOM:
White suite comprising low flush WC, predestal wash hand basin with chrome mixer tap, ceramic tiled floor, fully enclosed shower cubicle with part tiled walls, outlook to rear, heated towel rail.
FRONT:
Small front garden.
REAR:
Enclosed courtyard, utility room plumbed for washing machine, fully enclosed area with decking and access to rear alley for bins with area for seating and BBQ area.
Broadband Speed Availability
Potential Speeds for 12 Sandown Drive
Max Download
1800
Mbps
Max Upload
220
MbpsThe speeds indicated represent the maximum estimated fixed-line speeds as predicted by Ofcom. Please note that these are estimates, and actual service availability and speeds may differ.
Property Location
Mortgage Calculator
Directions
Travelling from Ballyhackamore on the Sandown Road, Sandown Drive is the third street on the left side. Number 12 is on the left just before Hillview Avenue.
Contact Agent
Contact Templeton Robinson (North Down)
Request More Information
Requesting Info about...
12 Sandown Drive, Ballyhackamore, Belfast, BT5 6GZ
By registering your interest, you acknowledge our Privacy Policy
By registering your interest, you acknowledge our Privacy Policy