Contact Agent

Contact Templeton Robinson (Ballyhackamore)

Contact Templeton Robinson (Ballyhackamore)

2 Bed Apartment

Apt 12 Sandown Manor

84A Sandown Road, Belfast, BT5 6GQ

offers over £249,950
  • Status For Sale
  • Property Type Apartment
  • Bedrooms 2
  • Receptions 1
  • Heating GFCH
  • EPC Rating C80 / C80
  • Stamp Duty
    Higher amount applies when purchasing as buy to let or as an additional property
    £2,499 / £14,997*
  • Typical Mortgage
    Click price to use our mortgage calculator
EPC Rating

Key Features & Description

Excellent, ground floor apartment in exclusive over 55's development
Two double bedrooms, principal with ensuite
Additional dressing room/storage room
Kitchen with appliances, open to living & dining areas
Main family bathroom
GFCH / Double glazing throughout
Secured gated entry system with intercom
Resident & visitor parking
Delightful, communal gardens circa four acres: sitting areas, walkways and vegetable patches
Comber greenway minutes walk away
Short stroll to Ballyhackamore & Belmont Villages
No onward chain
Description
Nestled in the heart of Ballyhackamore, Sandown Manor is a specially designed development exclusively for over 55's within a mature site just off the sought-after Sandown Road. Of particular note is the extensive communal gardens of approximately 4 acres.

This fantastic ground floor apartment comprises: kitchen open plan to living/dining area, two bedrooms, principal with ensuite. Main bathroom suite, utility room and an additional large storage room. Additional benefits include gas fired central heating and sash double glazed windows.

Ideal for those looking to downsize or professionals wanting a "lock-up and leave" home, this delightful property will attract broad appeal.

Early inspection is therefore strongly recommended.

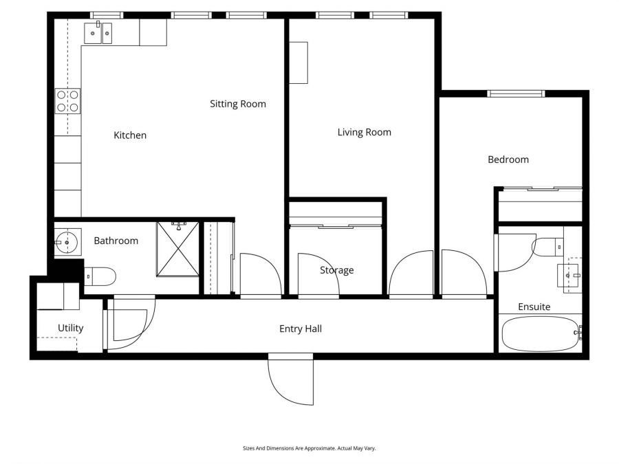
Rooms

Front door with intercom/door entry system.
FOYER: Post boxes. Double doors with glazed panels to:
COMMUNAL ENTRANCE HALL: Automated motion sensor lighting. Front door to:
HALLWAY: Intercom system. Alarm keypad. Spotlights.
KITCHEN: 14' 5" X 11' 0" (4.39m X 3.35m) Range of high and low level units, granite work surfaces, underhung sink unit with mixer tap. Integrated fridge/freezer, integrated dishwasher. Double oven, four ring hob, extractor fan, under counter lighting, spotlights. Wood effect flooring, feature vertical radiator. Open plan to:
LIVING/DINING AREA: 20' 0" X 5' 8" (6.10m X 1.73m) (at widest point). Wood effect flooring, large storage cupboard with mirrored fronts.
UTILITY ROOM: 5' 0" X 4' 9" (1.52m X 1.45m) Plumbed for washing machine. Space for tumble dryer. Shelving.
PRINCIPAL BEDROOM: 14' 4" X 10' 5" (4.37m X 3.18m) Built-in wardrobe with mirror fronted doors. Spotlights. Door to:
ENSUITE SHOWER ROOM: White suite comprising dual flush wc. Vanity unit with ceramic sink and mixer tap. Wall-mounted mirror. Panelled bath with thermostatic shower and glass screen. PVC wall panelling. Chrome heated towel rail.
BEDROOM (2)/LIVING ROOM: 20' 0" X 10' 7" (6.10m X 3.23m) (at widest points). (Currently used as Living Room). Dual aspect. Spotlights.
STORAGE ROOM: 6' 9" X 4' 9" (2.06m X 1.45m) Mirrored built-in wardrobes.
BATHROOM: White suite comprising dual flush wc. Vanity unit with ceramic sink and mixer tap. Wall-mounted mirrored cabinet. Double shower cubicle with thermostatic shower. Chrome heated towel rail.
Electric gates leading to parking areas for residents and visitors. Beautifully landscaped gardens (maintained by management company) of approximately four acres. Superb degree of maturity with abundance of plants, trees and flowering shrubs. Walkways and paths meandering through the grounds with tranquil sitting areas. Feature lighting throughout. Vegetable garden. Attractively paved patio/terraces. Screened bin storage.
Sandown Manor Management Company. Service Charge: £150 per month approximately.

Property Location

Show Map

Mortgage Calculator

Disclaimer: The following calculations act as a guide only, and are based on a typical repayment mortgage model. Financial decisions should not be made based on these calculations and accuracy is not guaranteed. Always seek professional advice before making any financial decisions.

Directions

Travelling from Ballyhackamore along the Sandown Road, Sandown Manor is about half way down on the left hand side

Contact Agent

Contact Templeton Robinson (Ballyhackamore)

Contact Templeton Robinson (Ballyhackamore)

Request More Information
Requesting Info about...
Apt 12 Sandown Manor, 84A Sandown Road, Belfast, BT5 6GQ Apt 12 Sandown Manor, 84A Sandown Road, Belfast, BT5 6GQ

By registering your interest, you acknowledge our Privacy Policy
Ask Holmes
Ask Holmes
Let's find your next home

Are you sure you want to reset the chat?

Checking API...