Contact Agent
Contact Ulster Property Sales (UPS) Ballyhackamore
4 Bed Semi-Detached House
79 Kirkliston Park
Ballyhackamore, Belfast, BT5 6ED
offers over
£325,000
Key Features & Description
Spacious Semi Detached Home In Popular Kirkliston Park Location
Bright Lounge With Bay Window And Wall Mounted Electric Fire
Open Plan Dining Room Ideal For Entertaining And Family Living
Fitted Kitchen With Range Of Units And Separate Utility Room
Four Well Proportioned Bedrooms Across Three Floors
Modern Shower Room With Walk In Shower And Contemporary Finish
Enclosed South West Facing Rear Garden With Decking
Close To Ballyhackamore Village And Comber Greenway
Description
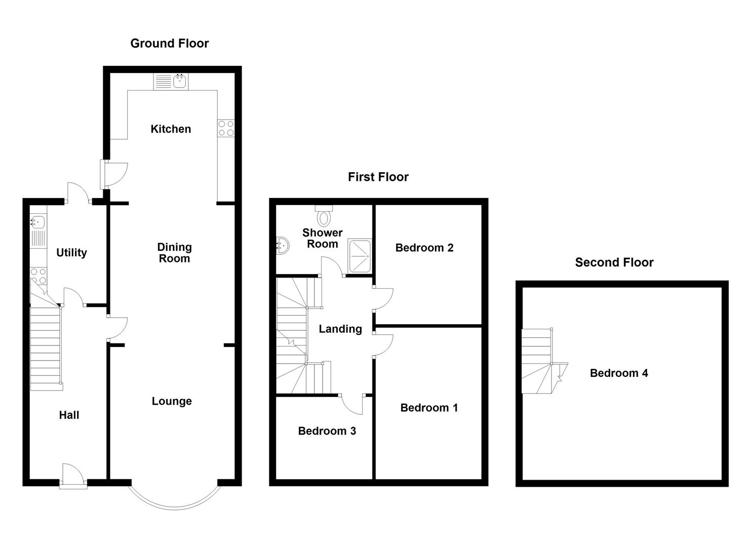
This semi-detached property located in Kirkliston Park is a spacious and well-presented home offering comfortable accommodation over three floors.
The entrance hall includes wood laminate flooring and useful storage, leading to a bright lounge with bay window and wall-mounted electric fire. An archway opens into the dining room. The kitchen is fitted with a good range of units and work surfaces, with tiled flooring and access to a separate utility room providing additional storage and practicality.
Upstairs, there are three well-proportioned bedrooms and a modern shower room with walk-in shower and contemporary fittings. The second floor features a generous fourth bedroom with built-in wardrobe.
Outside, the property benefits from a front garden and driveway, along with an enclosed south-west facing rear garden laid in lawn with decking and planting areas. A timber garage with power provides additional storage. The rear garden also offers direct access to the Comber Greenway.
This is a well-maintained home in a convenient and popular location close to the ever popular Ballyhackamore Village, local schools and the Gilder bus route, ideal for a range of buyers.
This semi-detached property located in Kirkliston Park is a spacious and well-presented home offering comfortable accommodation over three floors.
The entrance hall includes wood laminate flooring and useful storage, leading to a bright lounge with bay window and wall-mounted electric fire. An archway opens into the dining room. The kitchen is fitted with a good range of units and work surfaces, with tiled flooring and access to a separate utility room providing additional storage and practicality.
Upstairs, there are three well-proportioned bedrooms and a modern shower room with walk-in shower and contemporary fittings. The second floor features a generous fourth bedroom with built-in wardrobe.
Outside, the property benefits from a front garden and driveway, along with an enclosed south-west facing rear garden laid in lawn with decking and planting areas. A timber garage with power provides additional storage. The rear garden also offers direct access to the Comber Greenway.
This is a well-maintained home in a convenient and popular location close to the ever popular Ballyhackamore Village, local schools and the Gilder bus route, ideal for a range of buyers.
Rooms
Accommodation Comprises
Entrance Hall
Wood laminate flooring. Cupboard under stairs.
Lounge 13'8 X 11'0 (4.17m X 3.35m)
(into bay) Wall mounted electric fire with granite hearth. Wood laminate flooring. Archway to:
Dining Room 12'5 X 11'0 (3.78m X 3.35m)
Wood laminate flooring.
Kitchen 13'6 X 9'7 (4.11m X 2.92m)
Extensive range of high and low level units with Formica work surfaces, single drainer stainless steel sink unit with mixer tap, plumbing for washing machine, space for dryer, part tiled walls, ceramic tiled flooring.
Utility Room 9'1 X 6'1 (2.77m X 1.85m)
Range of low level units with formica work surfaces, single drainer stainless steel sink unit with mixer tap, plumbing for washing machine, single drainer stainless steel sink unit with mixer tap, plumbing for washing machine, space for dryer, part tiled walls, ceramic tiled flooring.
First Floor
Landing
Rear Bedroom 1 12'6 X 11'2 (3.81m X 3.40m)
Bedroom 2 11'8 X 11'2 (3.56m X 3.40m)
Bedroom 3 6'3 X 6'1 (1.91m X 1.85m)
Shower Room
White suite comprising large walk-in shower cubicle with built-in rainfall shower and handheld shower, tiled splashback, shower screen, vanity unit with mixer tap, low flush WC, part tiled walls, ceramic tiled flooring, PVC panelled ceiling with recessed spotlighting, chrome feature radiator.
Second Floor
Bedroom 4 16'2 X 12'7 (4.93m X 3.84m)
Including built-in wardrobe.
Outside
Front garden with lawn and boundary hedging. Tarmac driveway. Enclosed rear South West facing garden in lawn, timber decking and raised flowerbed, boundary fence with gate, access to Comber Greenway.
Part Timber Garage 14'6 X 10'2 (4.42m X 3.10m)
Barn style doors. Power.
Broadband Speed Availability
Potential Speeds for 79 Kirkliston Park
Max Download
1800
Mbps
Max Upload
220
MbpsThe speeds indicated represent the maximum estimated fixed-line speeds as predicted by Ofcom. Please note that these are estimates, and actual service availability and speeds may differ.
Property Location
Mortgage Calculator
Contact Agent
Contact Ulster Property Sales (UPS) Ballyhackamore
Request More Information
Requesting Info about...
79 Kirkliston Park, Ballyhackamore, Belfast, BT5 6ED
By registering your interest, you acknowledge our Privacy Policy
By registering your interest, you acknowledge our Privacy Policy