Contact Agent
Contact Colin Graham Residential
Business
'The Soccer Shed' 51 Green Road
Ballyclare, BT39 9PH
offers over
£59,950
- Status Sale Agreed
- Property Type Business
-
Stamp Duty
Higher amount applies when purchasing as buy to let or as an additional property£0 / £2,998*
Key Features & Description
Ready For Immediate Occupation
Generous Car Parking Facilities
Option To Renew Lease (Subject To T&C's)
First Floor Viewing Gallery; Kitchenette; Office
Two Separate Sports Pitches; Store Room
Diversified Income Streams
Convenient Trading Position
Year-Round, Weather-Proof Facilities
Established & Profitable Recreation Business
Exciting Business Opportunity
Description
Exciting opportunity to purchase a well established and profitable commercial recreation and sports facility business, together with leasing the trading premises which benefits from access to generous communal parking facilities, occupying a convenient location, situated off Green Road, Ballyclare.
The business boasts a loyal customer base and strong, consistent turnover, generating diversified income streams primarily through renting playing surfaces for leagues, private games, training sessions, and events like birthday parties.
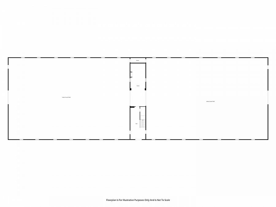
The leased premises has been converted to provide year-round, weather-proof facilities and currently utilises the space with two indoor football pitches (encompassing the flexibility to facilitate a plethora of uses), large store room, first floor mezzanine viewing gallery, fitted kitchenette, and office/store.
The property further benefits from access to generous car parking areas front and rear, and the option (via separate negotiation) to purchase an external portacabin comprising changing rooms, party room, and washroom facilities.
This entrenched business allows any new buyer the ability to continue trading immediately and the current landlord is open to renewing the lease period (subject to market value, terms and conditions at time of negotiation).
The business is being tendered for sale due to our clients´ desire to pursue a new venture and business accounts can be provided on request to those who portray a genuine interest of purchase.
The market for these businesses is currently active, therefore, early viewing is strongly recommend
Exciting opportunity to purchase a well established and profitable commercial recreation and sports facility business, together with leasing the trading premises which benefits from access to generous communal parking facilities, occupying a convenient location, situated off Green Road, Ballyclare.
The business boasts a loyal customer base and strong, consistent turnover, generating diversified income streams primarily through renting playing surfaces for leagues, private games, training sessions, and events like birthday parties.
The leased premises has been converted to provide year-round, weather-proof facilities and currently utilises the space with two indoor football pitches (encompassing the flexibility to facilitate a plethora of uses), large store room, first floor mezzanine viewing gallery, fitted kitchenette, and office/store.
The property further benefits from access to generous car parking areas front and rear, and the option (via separate negotiation) to purchase an external portacabin comprising changing rooms, party room, and washroom facilities.
This entrenched business allows any new buyer the ability to continue trading immediately and the current landlord is open to renewing the lease period (subject to market value, terms and conditions at time of negotiation).
The business is being tendered for sale due to our clients´ desire to pursue a new venture and business accounts can be provided on request to those who portray a genuine interest of purchase.
The market for these businesses is currently active, therefore, early viewing is strongly recommend
Rooms
IMPORTANT NOTE TO ALL POTENTIAL PURCHASERS
Fixtures and fittings available via separate negotiation. Lease renewal and/or extension to be negotiated separately. Every care has been taken with the preparation of these particulars, but complete accuracy cannot be guaranteed. If there is any point, which is of particular importance to you, please obtain professional confirmation. Alternatively, we will be pleased to check the information for you. All measurements quoted are approximate. The Fixtures, Fittings & Appliances have not been tested and therefore no guarantee can be given that they are in working order. Photographs are reproduced for general information and it cannot be inferred that any item shown is included in the sale.
EXTERNAL
Generous sized communal car parking area front and rear.
External lighting.
Portacabin (available via separate negotiation) encompassing changing rooms, party room, and washroom facilities.
External lighting.
Portacabin (available via separate negotiation) encompassing changing rooms, party room, and washroom facilities.
OFFICE / STORE 11'10" X 8'10" (wps) (3.63m X 2.70m (wps))
Carpet floor covering. Strip light and power points.
KITCHENETTE 13'5" X 7'5" (wps) (4.09m X 2.28m (wps))
Range of low level storage units and contrasting melamine work surface area. Stainless steel sink unit with draining bay. Space for under counter fridge. Recessed spotlights. Access into:
MEZZANINE VIEWING GALLERY 36'0" X 11'10" (wps) (10.98m X 3.63m (wps))
Vinyl floor covering. Strip lighting. Open to:
FIRST FLOOR
PITCH 2 103'11" X 67'7" (wps) (31.69m X 20.61m (wps))
'3G' artificial grass floor covering. Recess for sports nets. Energy efficient lighting.
PITCH 1 104'1" X 67'7" (wps) (31.73m X 20.61m (wps))
'3G' artificial grass floor covering. Recess for sports nets. Energy efficient lighting.
STORE ROOM 34'11" X 11'10" (10.65m X 3.62m)
Artificial grass floor covering. Strip lighting.
ENTRANCE HALL
Double doors leading into reception hall. Carpet tile floor covering. Stairwell leading to first floor mezzanine landing. Recessed spotlights. Access to under stairs storage cupboard with light. Access into:
ACCOMMODATION
Property Location
Mortgage Calculator
Contact Agent
Contact Colin Graham Residential
Request More Information
Requesting Info about...
The Soccer Shed 51 Green Road, Ballyclare, BT39 9PH
By registering your interest, you acknowledge our Privacy Policy
By registering your interest, you acknowledge our Privacy Policy