3 Bed Semi-Detached House
4 Cloughan View Meadow
Ballyclare, BT39 8AD
offers over
£214,950
Key Features & Description
Modern Semi Detached Home
Three Well-Proportioned Bedrooms
Lounge
Kitchen Through Dining Room
Deluxe Bathroom; En Suite
Furnished Cloakroom
Gas Heating; PVC Double Glazing
Private Driveway
Fully Enclosed Rear Garden
Immaculately Presented Throughout
Description
Immaculately presented, recently constructed, spacious, modern, three bedroom, semi detached home, occupying a prime site, within the well sought after Cloughan View development, Jubilee Road, Ballyclare.
The property comprises entrance hall, furnished cloakroom, lounge, kitchen through dining room, three well-proportioned bedrooms, to include principal en suite, and separate, deluxe family bathroom.
Externally, the property enjoys private driveway finished in tarmac, front garden finished in lawn, and generous sized, fully enclosed rear garden, finished in lawn and brick pavior.
Other attributes include gas heating, PVC double glazing, and convenient location.
Early viewing highly recommended.
Immaculately presented, recently constructed, spacious, modern, three bedroom, semi detached home, occupying a prime site, within the well sought after Cloughan View development, Jubilee Road, Ballyclare.
The property comprises entrance hall, furnished cloakroom, lounge, kitchen through dining room, three well-proportioned bedrooms, to include principal en suite, and separate, deluxe family bathroom.
Externally, the property enjoys private driveway finished in tarmac, front garden finished in lawn, and generous sized, fully enclosed rear garden, finished in lawn and brick pavior.
Other attributes include gas heating, PVC double glazing, and convenient location.
Early viewing highly recommended.
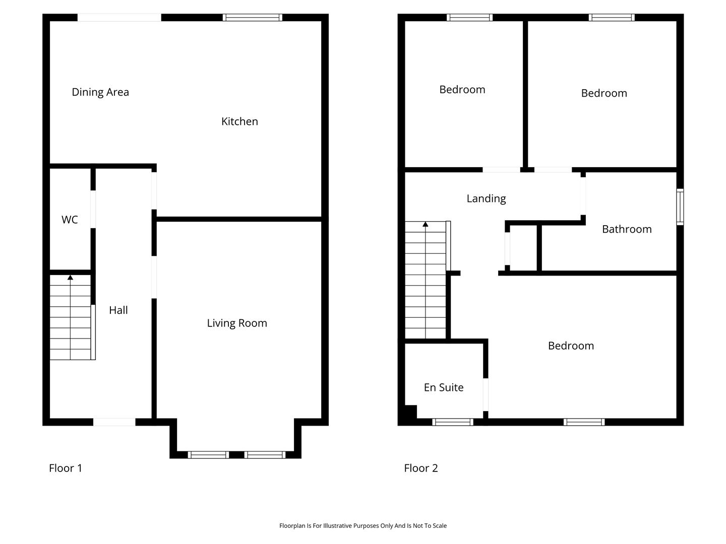
Rooms
ACCOMMODATION
ENTRANCE HALL
Composite front door with PVC fanlight over. Tiled floor. Feature height ceiling, continuing through remainder of home. Stairwell to first floor.
FURNISHED CLOAKROOM
Contemporary, white, two piece suite comprising semi pedestal wash hand basin and WC. Splashback tiling to sink. Tiled floor.
LOUNGE 16'2" X 12'0" (wps) (4.93m X 3.66m (wps))
Box bay window to front elevation. Wood laminate floor covering.
KITCHEN THROUGH DINING ROOM 19'4" X 13'6" (wps) (5.90m X 4.13m (wps))
Modern fitted kitchen with range of high and low level storage units with contrasting granite effect melamine work surface. Stainless steel 1.5 bowl sink unit with draining bay. Integrated touch screen ceramic hob with glass splashback and stainless steel extractor hood over. Integrated double oven, fridge freezer, dishwasher and washing machine. Upstands to walls to match worktop. Gas fired central heating boiler (housed within matching unit). Tiled floor. PVC double glazed French doors leading to rear garden.
FIRST FLOOR
LANDING
Access to shelved store and roofspace.
PRINCIPAL BEDROOM 15'7" X 10'1" (wps) (4.75m X 3.08m (wps))
DELUXE EN SUITE SHOWER ROOM
Contemporary ,white, three piece suite comprising fully tiled shower enclosure, semi pedestal wash hand basin and WC. Thermostat controlled mains shower unit. Tiled floor.
BEDROOM 2 10'4" X 10'2" (3.15m X 3.11m)
BEDROOM 3 10'2" X 8'7" (3.10m X 2.64m)
DELUXE FAMILY BATHROOM
Contemporary, white, four piece suite comprising panelled bath, separate fully tiled shower enclosure, floating vanity unit and WC. Electric shower. Chrome towel radiator. Part tiling to walls. Tiled floor.
EXTERNAL
Front garden finished in lawn and brick pavior.
Generous sized private driveway finished in tarmac.
External lighting.
Seamless aluminium guttering.
Generous sized fully enclosed rear garden finished in lawn and brick pavior.
Outside tap.
Generous sized private driveway finished in tarmac.
External lighting.
Seamless aluminium guttering.
Generous sized fully enclosed rear garden finished in lawn and brick pavior.
Outside tap.
IMPORTANT NOTE TO ALL POTENTIAL PURCHASERS
Please note that we have not tested the services or systems in this property. Purchasers should make/commission their own inspections if they feel it is necessary.
Property Location
Mortgage Calculator
Contact Agent
Contact Colin Graham Residential
Request More Information
Requesting Info about...
4 Cloughan View Meadow, Ballyclare, BT39 8AD
By registering your interest, you acknowledge our Privacy Policy
By registering your interest, you acknowledge our Privacy Policy