3 Bed Detached House
22 Readers Avenue
Ballyclare, BT39 9DX
offers over
£259,950
Key Features & Description
Immaculately Presented Detached
Three Bedroom; Two+ Reception
Kitchen Through Dining Room
Sun Lounge
Utility Room; Furnished Cloakroom
Fully Tiled Bathroom & En Suite
Gas Heating; PVC Double Glazing
Private Driveway
Gardens Front, Side and Rear
Convenient, Well Sought After Location
Description
Immaculately presented, three bedroom, detached home situated within the popular Readers Park development, Jubilee Road/Rashee Road, Ballyclare.
The property comprises entrance hall, furnished cloakroom, lounge, kitchen through dining room, utility room, sun lounge, three well-proportioned bedrooms, to include principal en suite, and separate fully tiled family bathroom.
Externally, the property enjoys private driveway finished in tarmac, and front, side and rear gardens, finished in lawn, paving and decorative stone.
Other attributes include gas heating and PVC double glazing.
Early viewing highly recommended.
Immaculately presented, three bedroom, detached home situated within the popular Readers Park development, Jubilee Road/Rashee Road, Ballyclare.
The property comprises entrance hall, furnished cloakroom, lounge, kitchen through dining room, utility room, sun lounge, three well-proportioned bedrooms, to include principal en suite, and separate fully tiled family bathroom.
Externally, the property enjoys private driveway finished in tarmac, and front, side and rear gardens, finished in lawn, paving and decorative stone.
Other attributes include gas heating and PVC double glazing.
Early viewing highly recommended.
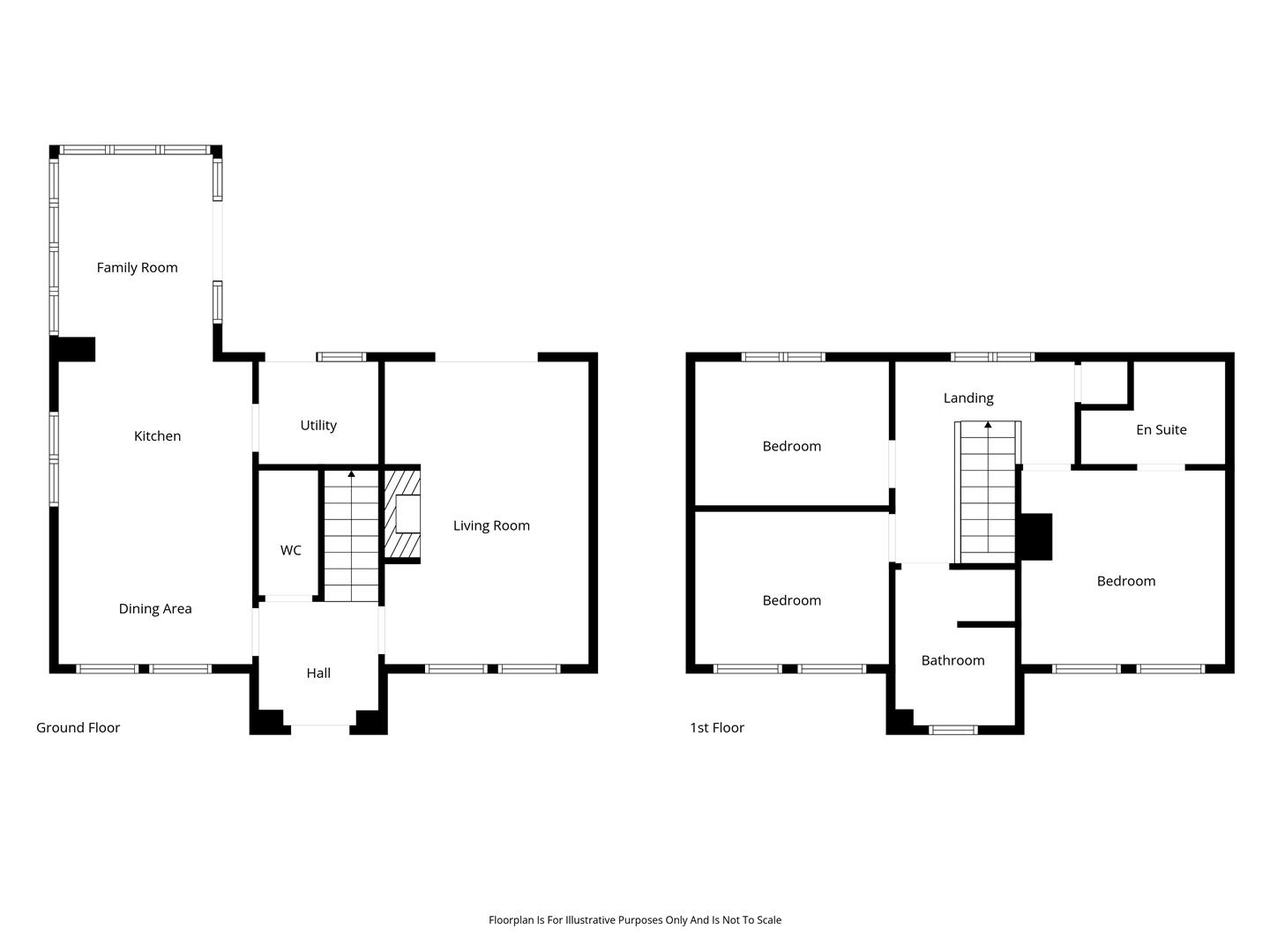
Rooms
ACCOMMODATION
ENTRANCE HALL
Composite, panelled front door with hardwood double glazed fanlight over. Tiled floor. Feature height ceiling continuing throughout remainder of ground floor. Stairwell to first floor.
FURNISHED CLOAKROOM
Contemporary, white, two piece suite comprising semi pedestal wash hand basin and WC. Splashback tiling to sink. Tiled floor.
LOUNGE 17'2" X 11'5" (5.24m X 3.48m)
Wall recessed, cast iron, wood burning stove. PVC double glazed French doors leading to rear garden.
KITCHEN THROUGH DINING ROOM 16'11" X 11'0" (5.18m X 3.36m)
Modern, fitted kitchen with range of high and low level storage units with contrasting wood grain effect melamine work surface. Matching island unit. Stainless steel sink unit with draining bay. Integrated gas hob with extractor hood over. Integrated oven, fridge freezer and dishwasher. Upstand to wall to match worktop. Tiled floor. Open arch leading to:
SUN LOUNGE 10'6" X 9'1" (3.22m X 2.79m)
Triple aspect windows. Matching PVC French doors leading to rear garden. Tiled floor.
UTILITY ROOM 6'11" X 6'1" (2.11m X 1.87m)
Fitted storage units with contrasting wood grain effect melamine worktop. Matching upstands to walls. Plumbed and space for washing machine. Space for tumble dryer. Gas fired central heating boiler (housed within matching unit). Tiled floor. PVC double glazed door leading to rear garden.
FIRST FLOOR
LANDING
Access to shelved store and partially floored roof space via slingsby style ladder.
PRINCIPAL BEDROOM 11'5" X 10'11" (3.48m X 3.33m)
FULLY TILED EN SUITE SHOWER ROOM
Contemporary, white, three piece suite comprising shower enclosure, vanity unit and WC. Thermostat controlled main shower unit with drench shower head. Illuminated mirror over sink. Chrome towel radiator.
BEDROOM 2 11'0" X 8'7" (3.37m X 2.62m)
BEDROOM 3 11'0" X 8'2" (3.37m X 2.51m)
FULLY TILED FAMILY BATHROOM
Contemporary, white, four piece suite comprising panelled bath, separate shower enclosure, vanity unit and WC. Thermostat controlled main shower unit with drench shower head. Illuminated mirror over sink. Chrome towel radiator.
EXTERNAL
Front and side gardens finished in lawn, paving and decorative stone.
Generous sized private driveway finished in tarmac.
External lighting.
Fully enclosed rear garden finished in lawn, paved patio area, decorative stone, bin enclosure.
Outside tap.
Generous sized private driveway finished in tarmac.
External lighting.
Fully enclosed rear garden finished in lawn, paved patio area, decorative stone, bin enclosure.
Outside tap.
IMPORTANT NOTE TO ALL POTENTIAL PURCHASERS
Every care has been taken with the preparation of these particulars, but complete accuracy cannot be guaranteed. If there is any point, which is of particular importance to you, please obtain professional confirmation. Alternatively, we will be pleased to check the information for you. All measurements quoted are approximate. The Fixtures, Fittings & Appliances have not been tested and therefore no guarantee can be given that they are in working order. Photographs are reproduced for general information and it cannot be inferred that any item shown is included in the sale.
Broadband Speed Availability
Potential Speeds for 22 Readers Avenue
Max Download
1800
Mbps
Max Upload
220
MbpsThe speeds indicated represent the maximum estimated fixed-line speeds as predicted by Ofcom. Please note that these are estimates, and actual service availability and speeds may differ.
Property Location
Mortgage Calculator
Contact Agent
Contact Colin Graham Residential
Request More Information
Requesting Info about...
22 Readers Avenue, Ballyclare, BT39 9DX
By registering your interest, you acknowledge our Privacy Policy
By registering your interest, you acknowledge our Privacy Policy