3 Bed Semi-Detached House
6 Henryville Drive
Ballyclare, BT39 9XW
offers over
£199,950
Key Features & Description
Immaculately Presented Semi D
Three Bedroom; Principal En Suite
Lounge; Focal Point Fire
Kitchen Through Dining Room
Modern Fitted Kitchen
Deluxe Bathroom
Furnished Cloakroom
Oil Heating; PVC Double Glazing
Private Driveway
Private, Fully Enclosed Rear Garden
Description
Immaculately presented, three bedroom, semi detached home, occupying a cul-de-sac position within the recently constructed Henryville Drive portion of Henryville, Ballynure Road, Ballyclare.
The property comprises entrance hall, furnished cloakroom, lounge, kitchen through dining room, three well-proportioned bedrooms, to include principal en suite, and separate, deluxe family bathroom, with contemporary, white, four piece suite.
Externally, the property enjoys private driveway, and fully enclosed, private rear garden.
Other attributes include oil heating and PVC double glazing.
Early viewing highly recommended.
Immaculately presented, three bedroom, semi detached home, occupying a cul-de-sac position within the recently constructed Henryville Drive portion of Henryville, Ballynure Road, Ballyclare.
The property comprises entrance hall, furnished cloakroom, lounge, kitchen through dining room, three well-proportioned bedrooms, to include principal en suite, and separate, deluxe family bathroom, with contemporary, white, four piece suite.
Externally, the property enjoys private driveway, and fully enclosed, private rear garden.
Other attributes include oil heating and PVC double glazing.
Early viewing highly recommended.
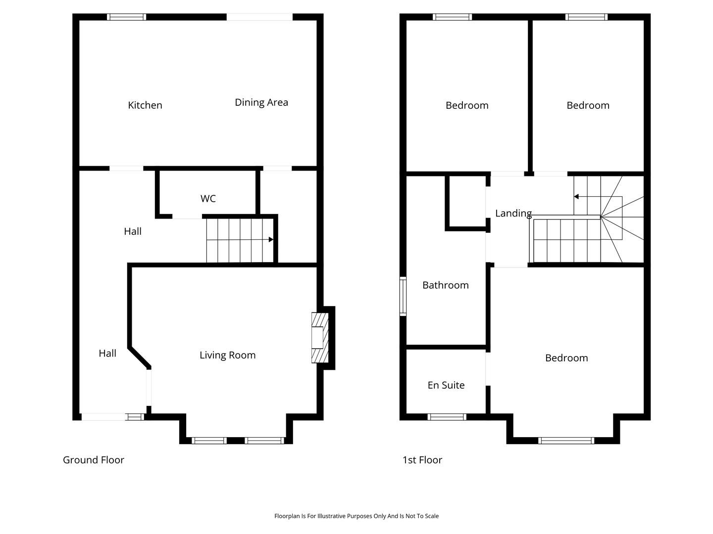
Rooms
ACCOMMODATION
ENTRANCE HALL
Composite double glazed front door with PVC double glazed side screen. Tiled floor. Stairwell to first floor.
FURNISHED CLOAKROOM
Contemporary, white, two piece suite comprising vanity unit and WC. Splashback tiling to sink. Tiled floor.
LOUNGE 14'6" X 13'2" (wps) (4.43m X 4.02m (wps))
Focal point fireplace with electric stove.
KITCHEN 18'4" X 11'8" (5.61m X 3.58m)
Modern fitted kitchen with range of high and low level storage units with contrasting marble effect melamine work surface. Stainless steel sink unit with draining bay. Integrated ceramic hob with stainless steel splashback and extractor hood over. Integrated oven, fridge freezer, dishwasher and washing machine. Upstands to walls to match worktop. Tiled floor. Access to under stairs store. PVC double glazed French doors leading to rear garden.
FIRST FLOOR
LANDING
Access to shelved hot press and roof space.
PRINCIPAL BEDROOM 13'2" X 11'11" (wps) (4.03m X 3.65m (wps))
DELUXE EN SUITE SHOWER ROOM
Contemporary, white, three piece suite, comprising fully tiled shower enclosure, pedestal wash hand basin and WC. Thermostat controlled mains shower unit with drench shower head. Splashback tiling to sink. Tiled floor.
BEDROOM 2 11'8" X 9'4" (3.58m X 2.87m)
BEDROOM 3 11'8" X 8'7" (3.58m X 2.64m)
DELUXE FAMILY BATHROOM
Contemporary, white, four piece suite comprising panelled bath, separate fully tiled shower enclosure, pedestal wash hand basin and WC. Thermostat controlled mains shower unit with drench shower head. Part tiling to walls. Chrome towel radiator. Tiled floor.
EXTERNAL
Front garden finished in lawn.
Generous sized private driveway finished in tarmac.
External lighting.
PVC fascia.
Fully enclosed rear garden finished in lawn and paving.
Outside tap.
Oil fired central heating boiler.
PVC oil storage tank.
Generous sized private driveway finished in tarmac.
External lighting.
PVC fascia.
Fully enclosed rear garden finished in lawn and paving.
Outside tap.
Oil fired central heating boiler.
PVC oil storage tank.
IMPORTANT NOTE TO ALL POTENTIAL PURCHASERS
Every care has been taken with the preparation of these particulars, but complete accuracy cannot be guaranteed. If there is any point, which is of particular importance to you, please obtain professional confirmation. Alternatively, we will be pleased to check the information for you. All measurements quoted are approximate. The Fixtures, Fittings & Appliances have not been tested and therefore no guarantee can be given that they are in working order. Photographs are reproduced for general information and it cannot be inferred that any item shown is included in the sale.
Property Location
Mortgage Calculator
Contact Agent
Contact Colin Graham Residential
Request More Information
Requesting Info about...
6 Henryville Drive, Ballyclare, BT39 9XW
By registering your interest, you acknowledge our Privacy Policy
By registering your interest, you acknowledge our Privacy Policy