4 Bed Detached House
3 Gateside Avenue
Ballyclare, BT39 9GS
offers over
£279,950

Key Features & Description
Detached Family Home
Four Bedrooms; Principal En Suite
Lounge; Separate Sun Lounge
Kitchen Through Living/Dining Room
Deluxe Bathroom; Contemporary Suite
Furnished Cloakroom
Oil Heating; PVC Double Glazing
Generous Sized Private Driveway
Matching Detached Garage
Gardens Front And Rear
Description
Immaculately presented, four bedroom/two+ reception, detached family home, with matching detached garage, situated within the popular Gateside development, off Victoria Road, Ballyclare.
The property comprises entrance hall, furnished cloakroom, bay fronted lounge with gas fire in granite fireplace, kitchen through living/dining room with modern fitted kitchen, open arch leading to sun lounge, four well-proportioned first floor bedrooms, to include principal bedroom with deluxe en suite shower room, and separate deluxe family bathroom, with contemporary three piece suite.
Externally, the property enjoys generous sized private driveway area finished in brick pavior, matching detached garage, front garden finished mainly in lawn, and fully enclosed, landscaped rear garden finished in paved patio area, railway sleepers, decorative stone, and range of shrubs and trees.
Other attributes include oil fired central heating and PVC double glazing.
Early viewing highly recommended to avoid disappointment.
Immaculately presented, four bedroom/two+ reception, detached family home, with matching detached garage, situated within the popular Gateside development, off Victoria Road, Ballyclare.
The property comprises entrance hall, furnished cloakroom, bay fronted lounge with gas fire in granite fireplace, kitchen through living/dining room with modern fitted kitchen, open arch leading to sun lounge, four well-proportioned first floor bedrooms, to include principal bedroom with deluxe en suite shower room, and separate deluxe family bathroom, with contemporary three piece suite.
Externally, the property enjoys generous sized private driveway area finished in brick pavior, matching detached garage, front garden finished mainly in lawn, and fully enclosed, landscaped rear garden finished in paved patio area, railway sleepers, decorative stone, and range of shrubs and trees.
Other attributes include oil fired central heating and PVC double glazing.
Early viewing highly recommended to avoid disappointment.
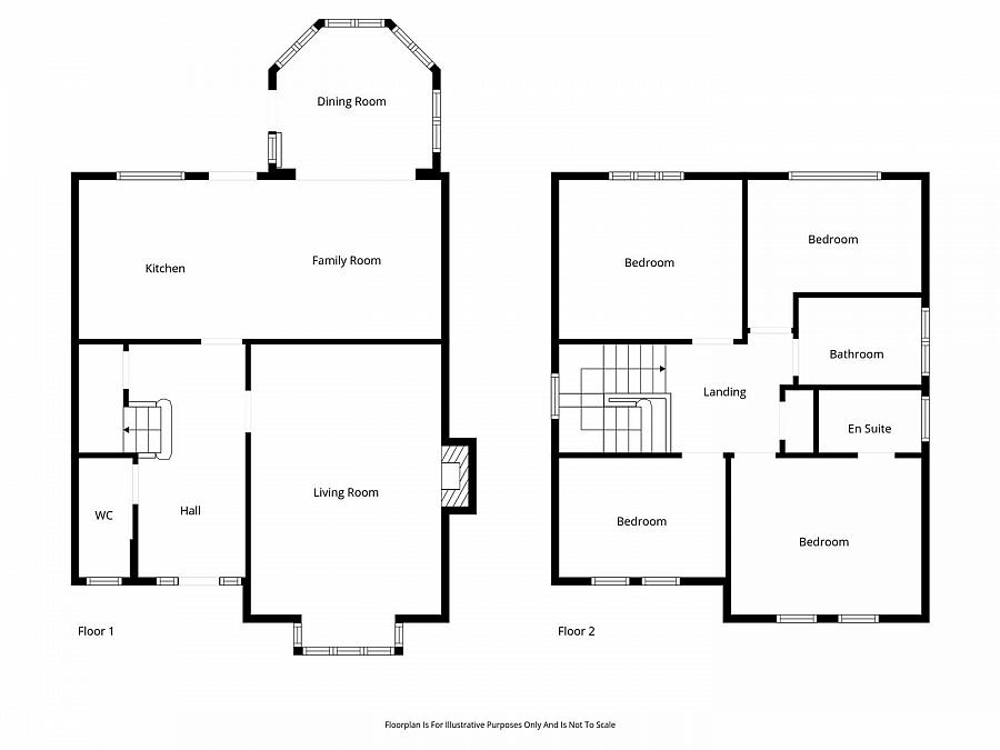
Rooms
ACCOMMODATION
ENTRANCE HALL
PVC double glazed front door with matching side screens. Tiled floor. Stairwell to first floor. Access to under stairs store.
FURNISHED CLOAKROOM
Contemporary, white, two piece comprising pedestal wash hand basin and WC. Tiled floor.
LOUNGE 20'9" X 12'5" (wps) (6.34m X 3.80m (wps))
Box bay window to front elevation. Gas fire in granite fireplace with matching hearth and contrasting surround. Wood laminate floor covering.
KITCHEN THROUGH LIVING ROOM/DINING ROOM 23'6" X 10'8" (7.18m X 3.27m)
Modern fitted kitchen with range of high and low level storage units with contrasting granite effect melamine work surface. Colour coded 1.5 bowl sink unit with draining bay. Integrated touch screen ceramic hob with stainless steel extractor hood over. Integrated double oven, fridge freezer and dishwasher. Upstands to walls to match work surface. Tiled floor. Open arch leading to:
SUN LOUNGE 10'2" X 8'11" (wps) (3.11m X 2.74m (wps))
Tiled floor. PVC double glazed French door leading to rear garden.
FIRST FLOOR
LANDING
Access to hot press.
PRINCIPAL BEDROOM 12'5" X 10'5" (3.78m X 3.18m)
Fitted wardrobes.
DELUXE EN SUITE SHOWER ROOM
Contemporary, white, three piece suite comprising fully tiled shower enclosure, floating vanity unit and WC. Thermostat controlled mains shower unit. Part tiling to walls. Tiled floor. Chrome towel radiator.
BEDOOM 2 11'11" X 10'9" (3.65m X 3.29m)
BEDROOM 3 11'6" X 9'8" (wps) (3.52m X 2.97m (wps))
BEDROOM 4 11'0" X 7'7" (3.36m X 2.32m)
DELUXE BATHROOM
Contemporary, white, three piece suite comprising free standing bath, floating vanity unit and WC. Splashback tiling and illuminated mirror to sink area. Tiled feature wall to bath. Chrome towel radiator. Tiled floor.
EXTERNAL
Generous sized private driveway finished brick paver.
Front garden finished in lawn and range of shrubs and trees.
Tiled entrance canopy/entrance porch.
External lighting.
External power points.
PVC soffits, fascia and rainwater goods.
Low maintenance fully enclosed rear garden finished in paved patio area and decorative stone.
Outside tap.
PVC oil storage tank.
Enclosed service area to side.
Front garden finished in lawn and range of shrubs and trees.
Tiled entrance canopy/entrance porch.
External lighting.
External power points.
PVC soffits, fascia and rainwater goods.
Low maintenance fully enclosed rear garden finished in paved patio area and decorative stone.
Outside tap.
PVC oil storage tank.
Enclosed service area to side.
MATCHING DETACHED GARAGE 18'1" X 11'1" (5.53m X 3.39m)
To include partitioned utility area to rear. PVC coated roller shutter door. PVC service door to side. Power, light , plumbed area for automatic washing machine and oil fired central heating boiler.
IMPORTANT NOTE TO ALL POTENTIAL PURCHASERS
Please note that we have not tested the services or systems in this property. Purchasers should make/commission their own inspections if they feel it is necessary.
PLEASE NOTE;
As required under the Estate Agency Act we advise that this property is owned by an employee/director, or relation of an employee/director, of Colin Graham Residential.
Broadband Speed Availability
Potential Speeds for 3 Gateside Avenue
Max Download
1800
Mbps
Max Upload
220
MbpsThe speeds indicated represent the maximum estimated fixed-line speeds as predicted by Ofcom. Please note that these are estimates, and actual service availability and speeds may differ.
Property Location

Mortgage Calculator
Contact Agent

Contact Colin Graham Residential
Request More Information
Requesting Info about...
3 Gateside Avenue, Ballyclare, BT39 9GS
By registering your interest, you acknowledge our Privacy Policy

By registering your interest, you acknowledge our Privacy Policy