Contact Agent
Contact Philip Tweedie & Company (Portstewart)
4 Bed Detached House
3 Mccormick Brae, Moyarget Road
Moyarget Road, Ballycastle, BT54 6GU
offers around
£425,000
Key Features & Description
Exclusive gated development of only five homes
NHBC Seal of Excellence Award-winning scheme
Oil fired central heating with partial underfloor heating
uPVC double glazed windows
Integrated air purification system
Detached garage & traditional stone outbuilding
Private enclosed rear garden with patio
Front driveway parking & electric vehicle charging point
Countryside outlook within mature, tree-lined grounds
Description
An impressive detached home set within the exclusive gated McCormick Brae development of just five properties, nestled in a mature, tree-lined estate at the foot of Knocklayde Glen.
Extending to approximately 2,000 sq ft, this beautifully designed home centres around a stunning open plan kitchen with living and dining areas, featuring a double height vaulted ceiling and multifuel stove. A mezzanine lounge overlooks the space, creating a striking yet welcoming setting ideal for modern family life and entertaining.
The ground floor comprises two well-proportioned bedrooms (one ensuite), a family bathroom and separate utility room, complemented by a bright sun room and practical boot room. The first floor provides two further bedrooms (one ensuite) along with the spacious mezzanine lounge overlooking the main living space below.
Externally, the property is complemented by a detached garage and front paved driveway with additional gravel parking and electric car charger. The enclosed rear garden and patio area offer a private outdoor retreat, while a charming stone outbuilding has been thoughtfully arranged to provide both storage and entertaining space. The home enjoys a mature setting with open countryside views and spectacular sunsets throughout the year.
An impressive detached home set within the exclusive gated McCormick Brae development of just five properties, nestled in a mature, tree-lined estate at the foot of Knocklayde Glen.
Extending to approximately 2,000 sq ft, this beautifully designed home centres around a stunning open plan kitchen with living and dining areas, featuring a double height vaulted ceiling and multifuel stove. A mezzanine lounge overlooks the space, creating a striking yet welcoming setting ideal for modern family life and entertaining.
The ground floor comprises two well-proportioned bedrooms (one ensuite), a family bathroom and separate utility room, complemented by a bright sun room and practical boot room. The first floor provides two further bedrooms (one ensuite) along with the spacious mezzanine lounge overlooking the main living space below.
Externally, the property is complemented by a detached garage and front paved driveway with additional gravel parking and electric car charger. The enclosed rear garden and patio area offer a private outdoor retreat, while a charming stone outbuilding has been thoughtfully arranged to provide both storage and entertaining space. The home enjoys a mature setting with open countryside views and spectacular sunsets throughout the year.
Rooms
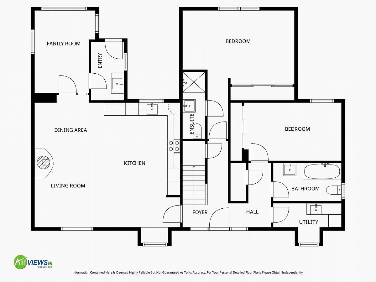
ENTRANCE HALL
Bright welcoming entrance hall; tiled floor; underfloor heating; shelved hot press; under stairs storage cupboard.
OPEN PLAN KITCHEN LIVING & DINING (6.86m X 5.74m)
A striking double-height space with vaulted ceiling and mezzanine lounge overlooking; electric Velux windows with integrated blinds; underfloor heating; tiled flooring throughout.
KITCHEN AREA (3.53m X 5.74m)
Bespoke painted solid wood kitchen with Silestone worktops and matching splashback; recessed stainless steel sink with filtered water tap; fitted oven and microwave; integrated fridge freezer and Neff dishwasher; induction hob with extractor above; central island with butcher block worktop and breakfast bar seating.
LIVING & DINING AREA (3.34m X 5.74m)
Feature Stovax multi-fuel stove set on a slate hearth; space for dining and relaxed seating.
SUN ROOM (2.54m X 3.94m)
Full length window with countryside views; underfloor heating; electric blinds; glass panel doors leading to the living area; tiled floor.
BOOT ROOM (1.39m X 2.23m)
Wash hand basin with tiled splashback; recessed lighting; door to the rear.
BEDROOM 1 (5.16m X 3.38m)
Double bedroom to the rear; full height sliding wardrobe.
ENSUITE (1.01m X 2.95m)
Panelled shower cubicle; toilet; wash hand basin; wall mounted backlit mirror and cabinet; towel radiator; tiled floor; part tiled walls.
BEDROOM 2 (4.53m X 2.78m)
Double bedroom to the rear; full height sliding wardrobe; part wood panelled walls.
BATHROOM (3.03m X 1.75m)
Panel bath with shower over; toilet; wash hand basin; chrome towel radiator; wall mounted mirror and cabinet; tiled floor & walls.
UTILITY ROOM (3.03m X 1.18m)
Range of fitted units; stainless steel sink & drainer with stone splashback; laminate work surfaces; space for stacked washer & dryer; tiled floor.
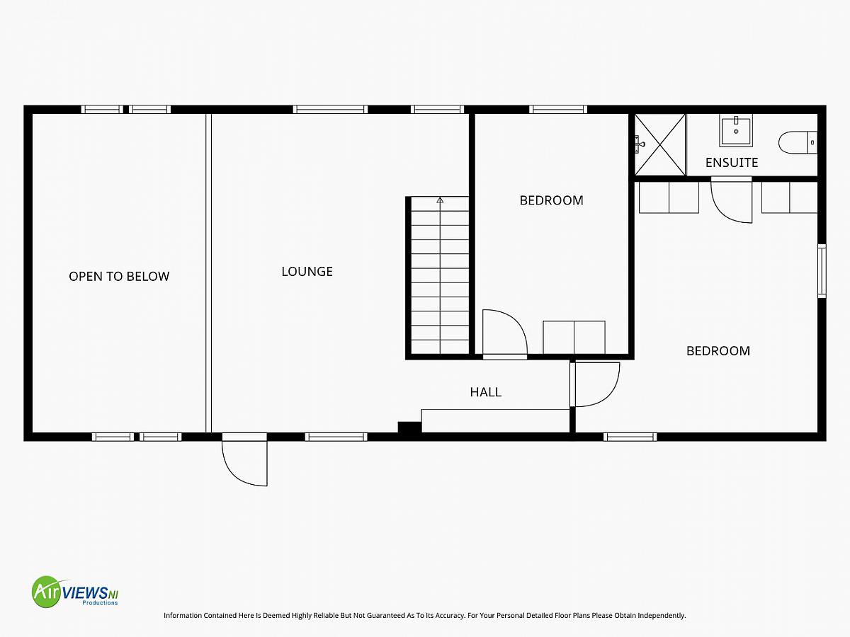
FIRST FLOOR
MEZZANINE LOUNGE (3.41m X 5.73m)
Impressive vaulted space with glass balustrade overlooking the main kitchen & living area below; electric Velux windows with integrated blinds; engineered wood flooring.
REAR HALL
Fitted bench with storage.
BEDROOM 3 (3.35m X 4.65m)
Double bedroom to the side.
ENSUITE (3.34m X 1.17m)
Panelled shower cubicle; toilet; wash hand basin; wall mounted backlit mirror; chrome towel radiator; electric Velux window; tiled floor & walls.
BEDROOM 4 (2.90m X 4.45m)
Double bedroom to the rear; access to the roof space.
EXTERIOR
GARAGE (3.80m X 6.37m)
Roller door; double glazed window in uPVC frame; oil boiler; power & light; concrete floor.
RESTORED STONE BARN
The original farm barn has been thoughtfully restored and divided into three versatile areas:
OUTDOOR ENTERTAINING ROOM (3.85m X 4.24m)
Exposed original stone walls; double doors that open onto the garden; extractor fan for barbecuing; paved floor.
GARDEN STORE ROOM (2.60m X 4.45m)
Concrete floor; power & light.
WOOD STORE (2.24m X 4.15m)
Power & light.
OUTSIDE FEATURES
- Enclosed private rear garden with patio and countryside views
- Restored stone barn incorporating entertaining room and stores
- Paved and gravel driveway parking
- Electric vehicle charging point
- External power points
- Front garden laid in lawn
Broadband Speed Availability
Potential Speeds for 3 McCormick Brae, Moyarget Road
Max Download
1000
Mbps
Max Upload
300
MbpsThe speeds indicated represent the maximum estimated fixed-line speeds as predicted by Ofcom. Please note that these are estimates, and actual service availability and speeds may differ.
Property Location
Mortgage Calculator
Contact Agent
Contact Philip Tweedie & Company (Portstewart)
Request More Information
Requesting Info about...
3 Mccormick Brae, Moyarget Road, Moyarget Road, Ballycastle, BT54 6GU
By registering your interest, you acknowledge our Privacy Policy
By registering your interest, you acknowledge our Privacy Policy