Contact Agent

Contact McAfee Properties (Ballycastle)

Contact McAfee Properties (Ballycastle)

Site

Site Mill Street

Ballycastle, BT53 6ES

offers around £60,000
  • Status Sale Agreed
  • Property Type Site
  • Stamp Duty
    Higher amount applies when purchasing as buy to let or as an additional property
    £0 / £3,000*
  • Typical Mortgage
    Click price to use our mortgage calculator

Key Features & Description

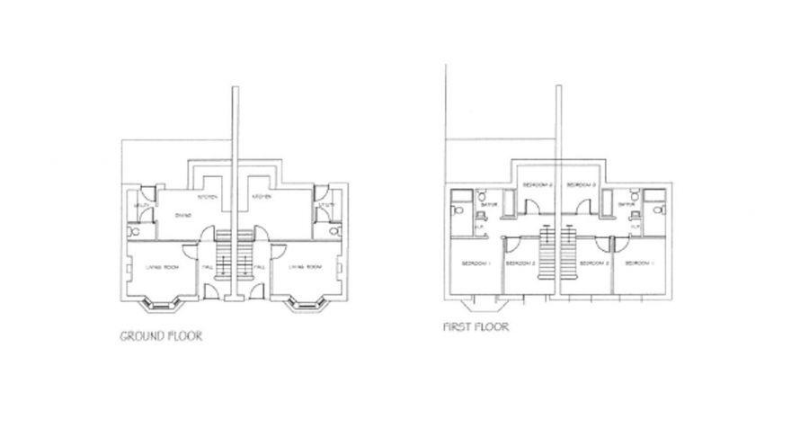
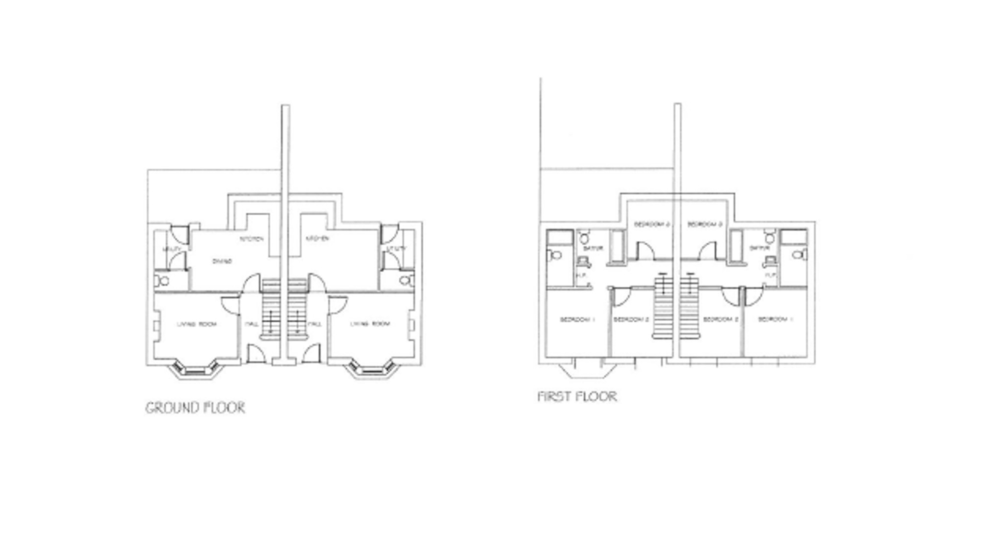
Planning approval for 2 new semi detached dwellings.
Offering 3 bedroom, 1 reception room accommodation.
Convenient and popular location within seconds to the town centre and it"s numerous amenities.
Description

We are pleased to offer for sale this town centre development site with planning approval for 2 new build semi detached houses offering 3 bedroom, 1 reception accommodation ideally suited to first time buyers or downsizer/holiday home living.

The site is within seconds of town centre shops and amenities.

For further details contact the selling agent McAfee Properties 028 2076 9404.

Property Location

Show Map

Mortgage Calculator

Disclaimer: The following calculations act as a guide only, and are based on a typical repayment mortgage model. Financial decisions should not be made based on these calculations and accuracy is not guaranteed. Always seek professional advice before making any financial decisions.

Directions

Leave Ballycastle Diamond along Castle Street and continue straight onto Coleraine Road, at Hill Head Filling Station slide left onto Hillside Road, turn immediately left onto the Kilns Road. Take the next right onto Mill Street and the site will be near the end of the road on the left hand side.

Contact Agent

Contact McAfee Properties (Ballycastle)

Contact McAfee Properties (Ballycastle)

Request More Information
Requesting Info about...
Site Mill Street, Ballycastle, BT53 6ES Site Mill Street, Ballycastle, BT53 6ES

By registering your interest, you acknowledge our Privacy Policy