Contact Agent

Contact Homes Independent

Contact Homes Independent

Site

Site 320 N E Of 15 Altnahinch Road

Armoy, BT53 8YJ

offers around £45,000
  • Status Sale Agreed
  • Property Type Site
  • Stamp Duty
    Higher amount applies when purchasing as buy to let or as an additional property
    £0 / £2,250*
  • Typical Mortgage
    Click price to use our mortgage calculator

Key Features & Description

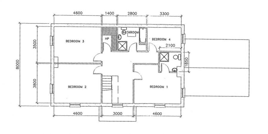
Site of approx 1/4 of an acre
Full planning permission for detached house and garage
Shared laneway
Rural country setting
Convenient to local primary education & on the bus route
Description
Site of approx 1/4 of an acre with full planning permission for detached dwelling and garage. Really private site in a shared laneway with a rural country setting.

Property Location

Show Map

Mortgage Calculator

Disclaimer: The following calculations act as a guide only, and are based on a typical repayment mortgage model. Financial decisions should not be made based on these calculations and accuracy is not guaranteed. Always seek professional advice before making any financial decisions.

Directions

Armoy

Contact Agent

Contact Homes Independent

Contact Homes Independent

Request More Information
Requesting Info about...
Site 320 N E Of 15 Altnahinch Road, Armoy, BT53 8YJ Site 320 N E Of 15 Altnahinch Road, Armoy, BT53 8YJ

By registering your interest, you acknowledge our Privacy Policy
Ask Holmes
Ask Holmes
Let's find your next home

Are you sure you want to reset the chat?

Checking API...