1 Bed Apartment
75B Killuney Drive
Armagh, BT60 1BA
price
£75,000

Key Features & Description
1 Reception Room
Oil Fired Central Heating
1 Bedroom
Mahogany Double Glazed Windows
Ground Floor Appartment
Close to City Centre
All Local Amenities within Walking Distance
Shower Room
Garden To Front
Communal Yard To Rear
Description
We are pleased to bring this this ground floor appartment is located within the Folly area and in a most convenient location within the city centre to the open market. Internally the property has a sizable lounge, generous double bedroom, newly fitted kitchen and shower room. To the rear is a communal yard with a small garden in lawn offered to the front with vehicle parking on the Street. Overall this property is in a excellent location and would be ideally suited for someone on there own needing easy access to ground floor living. For more information on this property or to arrange a private viewing, contact our office, 02837511166.
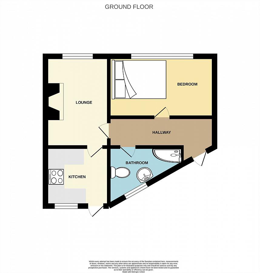
Entrance Hall
Tiled Floor, PVC front door.
Lounge - 12'6" (3.81m) x 12'5" (3.78m)
Open fire, tiled fireplace and hearth.
Kitchen - 12'4" (3.76m) x 7'8" (2.34m)
Range of fitted high and low level units, stainless steel sink unit and drainer, plumbed for washing machine, space for tumble dryer, fridge and electric cooker. Hardwood rear door leading to communal yard.
Bathroom - 7'11" (2.41m) x 5'8" (1.73m)
Low flush WC, wash hand basin, walk in shower with electric shower suitable for someone with a disability, part tiled walls and tiled floor.
Bedroom - 15'9" (4.8m) x 9'4" (2.84m)
Built in Wardrobe and storage cupboad.
Outside
Garden to the front in lawn with vehicle parking on the street, To the rear is a communal yard .
Notice
Please note we have not tested any apparatus, fixtures, fittings, or services. Interested parties must undertake their own investigation into the working order of these items. All measurements are approximate and photographs provided for guidance only.
Utilities
Electric: Mains Supply
Gas: None
Water: Mains Supply
Sewerage: None
Broadband: None
Telephone: None
Other Items
Heating: Not Specified
Garden/Outside Space: No
Parking: No
Garage: No
We are pleased to bring this this ground floor appartment is located within the Folly area and in a most convenient location within the city centre to the open market. Internally the property has a sizable lounge, generous double bedroom, newly fitted kitchen and shower room. To the rear is a communal yard with a small garden in lawn offered to the front with vehicle parking on the Street. Overall this property is in a excellent location and would be ideally suited for someone on there own needing easy access to ground floor living. For more information on this property or to arrange a private viewing, contact our office, 02837511166.
Entrance Hall
Tiled Floor, PVC front door.
Lounge - 12'6" (3.81m) x 12'5" (3.78m)
Open fire, tiled fireplace and hearth.
Kitchen - 12'4" (3.76m) x 7'8" (2.34m)
Range of fitted high and low level units, stainless steel sink unit and drainer, plumbed for washing machine, space for tumble dryer, fridge and electric cooker. Hardwood rear door leading to communal yard.
Bathroom - 7'11" (2.41m) x 5'8" (1.73m)
Low flush WC, wash hand basin, walk in shower with electric shower suitable for someone with a disability, part tiled walls and tiled floor.
Bedroom - 15'9" (4.8m) x 9'4" (2.84m)
Built in Wardrobe and storage cupboad.
Outside
Garden to the front in lawn with vehicle parking on the street, To the rear is a communal yard .
Notice
Please note we have not tested any apparatus, fixtures, fittings, or services. Interested parties must undertake their own investigation into the working order of these items. All measurements are approximate and photographs provided for guidance only.
Utilities
Electric: Mains Supply
Gas: None
Water: Mains Supply
Sewerage: None
Broadband: None
Telephone: None
Other Items
Heating: Not Specified
Garden/Outside Space: No
Parking: No
Garage: No
Property Location

Mortgage Calculator
Contact Agent

Contact PropertyLink
Request More Information
Requesting Info about...
75B Killuney Drive, Armagh, BT60 1BA
By registering your interest, you acknowledge our Privacy Policy

By registering your interest, you acknowledge our Privacy Policy