Contact Agent

Contact CPS Commercials

Contact CPS Commercials

Commercial

No. 2 Seven Houses, 45 Upper English Street

Armagh, BT761 7LA

price £199,000
  • Status Sale Agreed
  • Property Type Commercial
  • Receptions 4
  • Rates
    Rate information is for guidance only and may change as sources are updated.
    £3,272.00
  • Interior Area 2656
  • Heating Economy 7
  • EPC Rating F126
  • Stamp Duty
    Higher amount applies when purchasing as buy to let or as an additional property
    £1,480 / £11,430*
  • Tenure Assumed Freehold
  • Typical Mortgage
    Click price to use our mortgage calculator
EPC Rating

Property Financials

  • Price £199,000
  • Rates £3,272.00

Description

CPS are delighted to welcome this former 18th Century townhouse of No. 2 Seven houses located in the heart of Armagh City to the open marketplace. The property which consists of 4 floors including a basement level offers two large rooms to each floor with kitchen areas. The property was used as a commercial premises by its previous occupants and has planning permission granted for a proposed extension and associated works. To the rear of the premises is a large yard with gated entrance that has the capacity to be used as a multi space car park. To arrange a private viewing of the premises please contact your local CPS branch on 

 

 
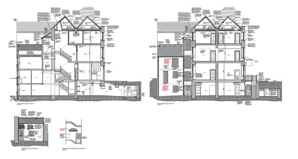
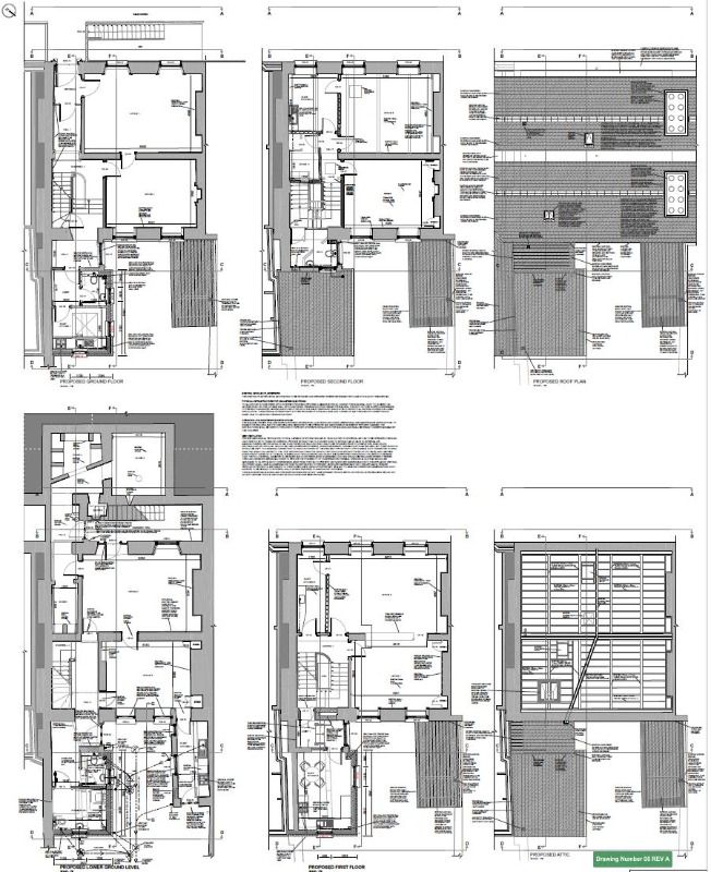
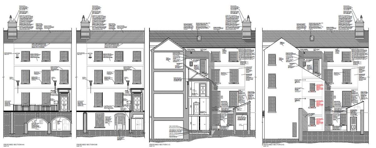
Planning Reference - LA08/2023/2684/LBC
 
 
Proposed alteration, conservation, renovation and extension of existing offices at 45 Upper English Street. Works comprise the following:- Internal alterations including the enlargement of an existing opening and the rationalisation of the stair access to the rear return. Demolition of a three-storey rear extension and associated steps and the erection of a new three storey extension to house staff kitchens and sanitary facilities. Formation of a new rooflight on the rear elevation. Replacement of inappropriate windows and the replacement of the window sashes on the front elevation with new multi-pane sliding sashes. And all associated siteworks and landscaping

Ground floor

Room 1 – 6.88m x 4.60m
The large room with high ceilings that comes with laminated wooden flooring throughout and was formerly used as a reception area/waiting room with two large sash windows looking onto the street.

Room 2 – 5.26m x 3.96m
Large spacious room with high ceilings and wooden laminate flooring throughout which is accessed via the first room.

Ground floor kitchen – 4.87m x 1.66m
The kitchen area located on the ground floor comes with a hand wash basin, lino flooring and electrical points.

1st floor

Kitchen area – 5.03m x 1.68m
Located on the first floor this kitchen area comes with lino flooring, low storage units and a ceramic sink.

First room – 6.95m x 4.64
Large spacious room that comes fitted with carpeted flooring and original sash windows looking onto the street.

Second room – 5.23m x 3.99m
Spacious room with carpeted flooring throughout and windows looking onto the rear yard of the premises.

2nd floor

First room – 5.29m x 3.99m
Sizeable room with carpeted flooring, currently houses an open fire place and 2 windows looking onto the back of the premises and afar.

Second room – 4.59m x 5.29m
Frontal facing sizeable room that comes with carpeted flooring throughout and electrical points fitted within.  

Basement level

First room – 6.47m x 4.51m
Large and spacious front room with laminated flooring, original sash windows and radiator fitted within.

Second room – 5.33m x 3.93m
Large and spacious back room that comes with laminated flooring throughout and original sash windows.

External
Large rear yard that presents ample parking space for a number of vehicles with old fashioned stoned finished high walls surrounding and large double gated rear entrance.

 

Property Location

Show Map

Mortgage Calculator

Disclaimer: The following calculations act as a guide only, and are based on a typical repayment mortgage model. Financial decisions should not be made based on these calculations and accuracy is not guaranteed. Always seek professional advice before making any financial decisions.

Contact Agent

Contact CPS Commercials

Contact CPS Commercials

Request More Information
Requesting Info about...
No. 2 Seven Houses, 45 Upper English Street, Armagh, BT761 7LA No. 2 Seven Houses, 45 Upper English Street, Armagh, BT761 7LA

By registering your interest, you acknowledge our Privacy Policy