Contact Agent

Contact CPS Commercials

Contact CPS Commercials

Commercial

227-229 Battleford Road

Armagh, BT71 7NN

price £825,000
  • Status Sale Agreed
  • Property Type Commercial
  • Heating Oil
  • EPC Rating D78
  • Stamp Duty
    Higher amount applies when purchasing as buy to let or as an additional property
    £31,250 / £72,500*
  • Tenure Freehold
  • Typical Mortgage
    Click price to use our mortgage calculator
EPC Rating

Description

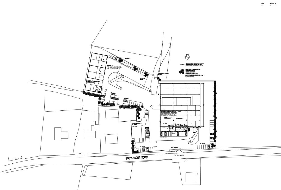
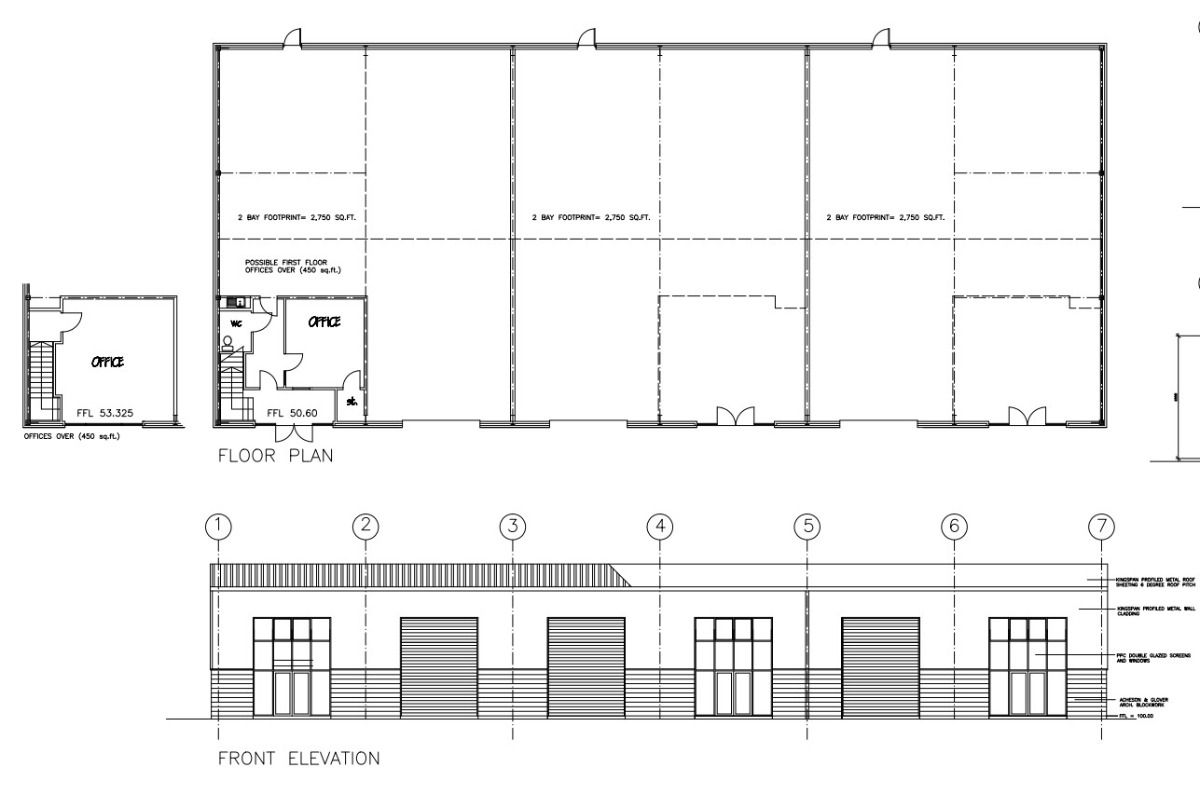
CPS are delighted to have been appointed to list for sale this excellent commercial warehouse and office accommodation with a substantial hard standing yard; offering a re-development opportunity on site for the expansion of the existing structure and for newly constructed units; subject to statutory planning approvals. 

LOCATION

This substantial site is located on the Battleford Road, Co. Armagh and accessed from Armagh City Centre via the Cathedral Road.  The Battleford Road is also an access road to the M1 Motorway through Eglish Village and leading onto Dungannon, Co. Tyrone.  The premises benefits from high volumes of vehicular passing trade.

DESCRIPTION

227-229 Battleford Road comprises a large warehouse and office premises circa 1,694.52 Sqm / 18,240 Sqft and substantial yard and storage space.  The entire site is circa 1.60 acres.  The premises benefits from secure gated access off the main Battleford Road, oil heating, PVC double glazing, and a 300 KiloVolt Amps Maximum Import Capacity through 3-Phase electricity. 

SALES PRICE

We have been instructed to seek an asking price of £825,000 (Eight Hundred & Twenty-Five Thousand Pounds)

VIEWING INFO

It is advised you carry out your own due diligence on this site and for any further information or a viewing, please contact our commercial team on 028 95 622 188
 

 

Property Location

Show Map

Mortgage Calculator

Disclaimer: The following calculations act as a guide only, and are based on a typical repayment mortgage model. Financial decisions should not be made based on these calculations and accuracy is not guaranteed. Always seek professional advice before making any financial decisions.

Contact Agent

Contact CPS Commercials

Contact CPS Commercials

Request More Information
Requesting Info about...
227-229 Battleford Road, Armagh, BT71 7NN 227-229 Battleford Road, Armagh, BT71 7NN

By registering your interest, you acknowledge our Privacy Policy