Land
Building Site With Fpp Derrylea Road
Newtownbutler, BT92 8DG
guide price
£85,000
- Status For Sale
- Property Type Land
- Receptions 1
- Bathrooms 1
- Heating Not Specified
-
Stamp Duty
Higher amount applies when purchasing as buy to let or as an additional property£0 / £4,250*
Key Features & Description
Site with full planning permission for a detached house & garage
Stunning countryside location with Lough views
Conveniently located close to local Towns Lisnaskea & Newtownbutler
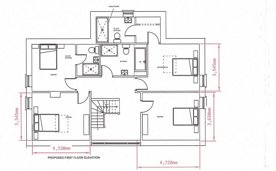
Planning information attached - planning passed for a four/five bedroom home
Services within close proximity
Foundations are in, site is ready to develop
Lisnaskea four miles drive
Newtownbutler four miles drive
Private laneway
Description
This is a fantastic opportunity to acquire a stunning site nestled in picturesque countryside with breathtaking views over Cargin Lough. The site comes with full planning permission for a detached home and garage.
Approved plans include a spacious four-bedroom house with four bathrooms, an open-plan kitchen/dining area, a utility room, and two reception rooms on the ground floor. With potential to utilise one of the reception rooms into a downstairs bedroom or guest room.
Planning documents are attached. All necessary services are conveniently located nearby.
The site covers approximately 0.3 acres and is located just over four miles from Lisnaskea, which offers a range of amenities, including schools, shops, and public transport links. Newtownbutler is also just over four miles away.
Get in touch now to arrange your site visit.
Tel: 028 66 022200
Email: info@watterspropertysales.co.uk
For sale by Watters Property Sales via the iamsold Bidding Platform
Please note this property will be offered by online auction (unless sold prior). For auction date and time please visit iamsoldni.com. Vendors may decide to accept pre-auction bids so please register your interest with us to avoid disappointment.
Auctioneers Comments:
This property is for sale under Traditional Auction terms. Should you view, offer or bid on the property, your information will be shared with the Auctioneer, iamsold.
With this auction method, an immediate exchange of contracts takes place with completion of the purchase required to take place within 28 days from the date of exchange of contracts.
The buyer is also required to make a payment of a non-refundable, part payment 10% Contract Deposit to a minimum of £6,000.00.
In addition to their Contract Deposit, the Buyer must pay an Administration Fee to the Auctioneer of 1.80% of the final agreed sale price including VAT, subject to a minimum of £2,400.00 including VAT for conducting the auction.
Buyers will be required to go through an identification verification process with iamsold and provide proof of how the purchase would be funded.
Terms and conditions apply to the traditional auction method and you are required to check the Buyer Information Pack for any special terms and conditions associated with this lot.
The property is subject to an undisclosed Reserve Price with both the Reserve Price and Starting Bid being subject to change.
what3words /// battle.ribcage.indulges
Notice
Please note we have not tested any apparatus, fixtures, fittings, or services. Interested parties must undertake their own investigation into the working order of these items. All measurements are approximate and photographs provided for guidance only.
Utilities
Electric: Unknown
Gas: Unknown
Water: Unknown
Sewerage: Unknown
Broadband: Unknown
Telephone: Unknown
Other Items
Heating: Not Specified
Garden/Outside Space: No
Parking: No
Garage: No
This is a fantastic opportunity to acquire a stunning site nestled in picturesque countryside with breathtaking views over Cargin Lough. The site comes with full planning permission for a detached home and garage.
Approved plans include a spacious four-bedroom house with four bathrooms, an open-plan kitchen/dining area, a utility room, and two reception rooms on the ground floor. With potential to utilise one of the reception rooms into a downstairs bedroom or guest room.
Planning documents are attached. All necessary services are conveniently located nearby.
The site covers approximately 0.3 acres and is located just over four miles from Lisnaskea, which offers a range of amenities, including schools, shops, and public transport links. Newtownbutler is also just over four miles away.
Get in touch now to arrange your site visit.
Tel: 028 66 022200
Email: info@watterspropertysales.co.uk
For sale by Watters Property Sales via the iamsold Bidding Platform
Please note this property will be offered by online auction (unless sold prior). For auction date and time please visit iamsoldni.com. Vendors may decide to accept pre-auction bids so please register your interest with us to avoid disappointment.
Auctioneers Comments:
This property is for sale under Traditional Auction terms. Should you view, offer or bid on the property, your information will be shared with the Auctioneer, iamsold.
With this auction method, an immediate exchange of contracts takes place with completion of the purchase required to take place within 28 days from the date of exchange of contracts.
The buyer is also required to make a payment of a non-refundable, part payment 10% Contract Deposit to a minimum of £6,000.00.
In addition to their Contract Deposit, the Buyer must pay an Administration Fee to the Auctioneer of 1.80% of the final agreed sale price including VAT, subject to a minimum of £2,400.00 including VAT for conducting the auction.
Buyers will be required to go through an identification verification process with iamsold and provide proof of how the purchase would be funded.
Terms and conditions apply to the traditional auction method and you are required to check the Buyer Information Pack for any special terms and conditions associated with this lot.
The property is subject to an undisclosed Reserve Price with both the Reserve Price and Starting Bid being subject to change.
what3words /// battle.ribcage.indulges
Notice
Please note we have not tested any apparatus, fixtures, fittings, or services. Interested parties must undertake their own investigation into the working order of these items. All measurements are approximate and photographs provided for guidance only.
Utilities
Electric: Unknown
Gas: Unknown
Water: Unknown
Sewerage: Unknown
Broadband: Unknown
Telephone: Unknown
Other Items
Heating: Not Specified
Garden/Outside Space: No
Parking: No
Garage: No
Property Location
Mortgage Calculator
Contact Agent
Contact Watters Property Sales
Request More Information
Requesting Info about...
Building Site With Fpp Derrylea Road, Newtownbutler, BT92 8DG
By registering your interest, you acknowledge our Privacy Policy
By registering your interest, you acknowledge our Privacy Policy