4 Bed Cottage
23 Abbacy Road
Ardkeen, BT22 1HH
offers in region of
£230,000
- Status Sale Agreed
- Property Type Cottage
- Bedrooms 4
- Receptions 2
- Bathrooms 2
-
Stamp Duty
Higher amount applies when purchasing as buy to let or as an additional property£2,100 / £13,600*
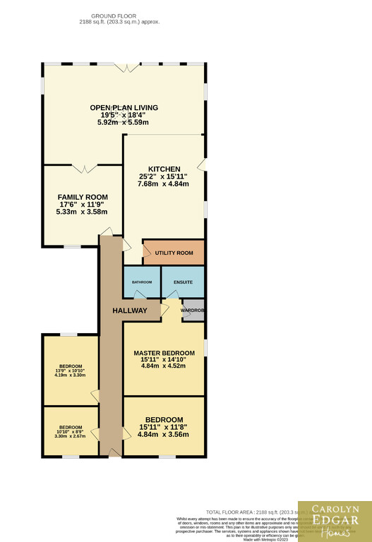
Key Features & Description
Fabulous Extended Former Labourers Cottage Set on 1/3 Acre
Stunning Countrywide Views
Idyllic Location Close to Strangford Inlet and Nature Reserve
Four Double Bedrooms
Master with Ensuite and Dressing Room
Stunning Open Plan Lounge Area to Rear with Vaulted Ceilings Overlooking the Fabulous Rear Gardens
Family Room with Feature Brick Fireplace with Wood Burning Stove
Utility Room
Garage and Outbuildings with Power and Light
OFCH
Description
Set on a tremendous site of approx. of 1/3 acre close to the picturesque inlet on Strangford Lough, known as 'The Dorn' in the most idyllic of locations this former labourers cottage has been extended by the current owners providing fabulous spacious living accommodation throughout but still keeping the charm of a delightful and welcoming home. Ideally located within close proximity to Portaferry with its marina, restaurants, shops and schools close at hand there are plenty of opportunities to enjoy the great outdoors, from sailing on the Strangford Lough, cycling, fishing, walking and birdwatching. Internally the property comprises of magnificent open plan lounge with vaulted ceilings and double doors, spilling with natural light with spectacular views over the stunning rear gardens and surrounding area seamlessly leading into the modern fitted kitchen with extensive range of built in appliances and separate utility room providing handy extra storage. The cosy family room with feature brick fireplace and wood burning stove is perfect for those long winter's nights in front of the fire. Furthermore, property has four well-presented double bedrooms, three with fabulous country views, the master with ensuite and dressing room and separate modern family bathroom. The cottage is set on a prime site with panoramic views and gated gardens to the front with extensive tarmacked driveway to side providing ample car parking for several cars, vans, boats etc and to the rear are stunning mature gardens, fabulous patio area and sun terrace tucked to the rear of the gardens offering the best views of the surrounding area and delightful treehouse..something for everyone!
Set on a tremendous site of approx. of 1/3 acre close to the picturesque inlet on Strangford Lough, known as 'The Dorn' in the most idyllic of locations this former labourers cottage has been extended by the current owners providing fabulous spacious living accommodation throughout but still keeping the charm of a delightful and welcoming home. Ideally located within close proximity to Portaferry with its marina, restaurants, shops and schools close at hand there are plenty of opportunities to enjoy the great outdoors, from sailing on the Strangford Lough, cycling, fishing, walking and birdwatching. Internally the property comprises of magnificent open plan lounge with vaulted ceilings and double doors, spilling with natural light with spectacular views over the stunning rear gardens and surrounding area seamlessly leading into the modern fitted kitchen with extensive range of built in appliances and separate utility room providing handy extra storage. The cosy family room with feature brick fireplace and wood burning stove is perfect for those long winter's nights in front of the fire. Furthermore, property has four well-presented double bedrooms, three with fabulous country views, the master with ensuite and dressing room and separate modern family bathroom. The cottage is set on a prime site with panoramic views and gated gardens to the front with extensive tarmacked driveway to side providing ample car parking for several cars, vans, boats etc and to the rear are stunning mature gardens, fabulous patio area and sun terrace tucked to the rear of the gardens offering the best views of the surrounding area and delightful treehouse..something for everyone!
Broadband Speed Availability
Potential Speeds for 23 Abbacy Road
Max Download
1800
Mbps
Max Upload
1000
MbpsThe speeds indicated represent the maximum estimated fixed-line speeds as predicted by Ofcom. Please note that these are estimates, and actual service availability and speeds may differ.
Property Location

Mortgage Calculator
Contact Agent

Contact Carolyn Edgar Homes
Request More Information
Requesting Info about...