Contact Agent

Contact Alexander Reid & Frazer

Contact Alexander Reid & Frazer

3 Bed Terrace House

5 Bath Street

Downpatrick, Ardglass, BT30 7SE

price £140,000
  • Status Sale Agreed
  • Property Type Terrace
  • Bedrooms 3
  • Receptions 2
  • Heating Oil
  • EPC Rating F36 / D61
  • Stamp Duty
    Higher amount applies when purchasing as buy to let or as an additional property
    £300 / £7,300*
  • Typical Mortgage
    Click price to use our mortgage calculator
EPC Rating

Key Features & Description

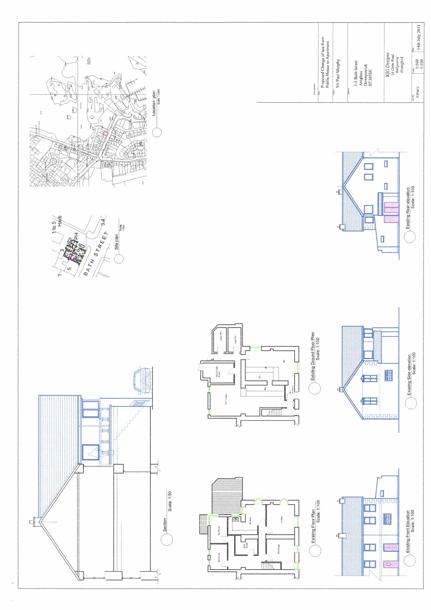
A development potential site for two apartment, change of use of public bar for apartment with erection of first floor balcony
3-5 Bath Street Ardglass is in the heart of the fishing village and has lovely views over the harbour
For details on Planning Permission and potential please call sales agents Alexander Reid & Frazer
Description
A development opportunity of this once commercial bar into two separate apartments. residential apartment to first floor, planning permission granted for change of use from public house to ground floor apartment and erection of first floor balcony
For details please contact Selling Agents Alexander Reid & Frazer 02844619966

Broadband Speed Availability

Superfast

Potential Speeds for 5 Bath Street

Max Download
80
Mbps
Max Upload
20
Mbps
The speeds indicated represent the maximum estimated fixed-line speeds as predicted by Ofcom. Please note that these are estimates, and actual service availability and speeds may differ.

Property Location

Show Map

Mortgage Calculator

Disclaimer: The following calculations act as a guide only, and are based on a typical repayment mortgage model. Financial decisions should not be made based on these calculations and accuracy is not guaranteed. Always seek professional advice before making any financial decisions.

Directions

Located on Bath Street overlooking harbour

Contact Agent

Contact Alexander Reid & Frazer

Contact Alexander Reid & Frazer

Request More Information
Requesting Info about...
5 Bath Street, Downpatrick, Ardglass, BT30 7SE 5 Bath Street, Downpatrick, Ardglass, BT30 7SE

By registering your interest, you acknowledge our Privacy Policy
Ask Holmes
Ask Holmes
Let's find your next home

Are you sure you want to reset the chat?

Checking API...