4 Bed Detached House
9 Kirbys Meadow
Antrim, BT41 1FP
price offers over
£384,950
Key Features & Description
Spacious entrance hall with ceramic floor tiling / staircase to first floor with oak moulded handrail and white painted redwood spindles
Large Living room 18'6" x 14'10" with 'Burnt Oak' wooden flooring and dual aspect windows
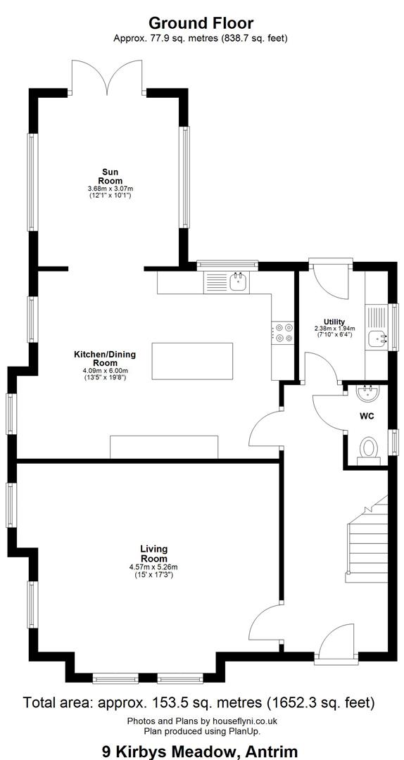
Kitchen with informal dining 19'7" x 13'4" / Open to large sunroom 12'0" x 10'0"
Fully fitted range of blue 'Shaker' style high and low level kitchen units with complimentary granite worktops / Kitchen island with contrasting kitchen units / Ceramic tiled flooring
Integrated hob mid level combination oven/grill, plumbed for dishwasher and space for 'American' style fridge freezer / Utility room with space for washing machine and tumble dryer
Four well proportioned bedrooms to first floor / Principal suite with dressing area, Ensuite and feature wrap around window with views over Six Mile Water
Family bathroom to include a 'P' shape panel bath with shower over / Pressurised water system
Bevelled skirting and Architraves / Anthracite PVC windows / Seamless aluminium guttering / Gas fired central heating
Fully enclosed garden to the rear offering excellent sun orientation and privacy
Constructed in 2023 and well positioned in this sought after development
Description
We are delighted to present 9 Kirby´s Meadow, Antrim - a stunning, recently constructed four-bedroom detached family home superbly positioned within this highly sought-after and exclusive development. Commanding breath taking elevated views over the Six Mile Water, the property enjoys a peaceful setting on the periphery of the countryside while remaining conveniently close to local amenities, transport facilities and scenic nature walks.
This unique home within the development offers beautifully proportioned and thoughtfully designed accommodation throughout with approx 1,660 Sq Ft of living space and the potential to convert the second floor with correct permissions offering a sizeable fifth bedroom and extending to Approx. 2,161 Sq Ft. The ground floor comprises a spacious living room and a stunning fully fitted kitchen complete with a host of integrated appliances, seamlessly flowing into a bright and generous sunroom-perfect for modern family living and entertaining. A separate utility room and ground floor WC complete the downstairs accommodation.
On the first floor, four well-proportioned bedrooms provide excellent family space, including an impressive principal suite featuring an ensuite shower room, walk-in dressing area and a striking wrap-around window framing picturesque countryside views. A contemporary family bathroom serves the remaining bedrooms.
Externally, the property benefits from outstanding sun orientation and excellent privacy to the rear, creating a superb outdoor space to relax and unwind.
Only on internal inspection can one truly appreciate all that 9 Kirby´s Meadow has to offer. Early viewing is strongly recommended.
We are delighted to present 9 Kirby´s Meadow, Antrim - a stunning, recently constructed four-bedroom detached family home superbly positioned within this highly sought-after and exclusive development. Commanding breath taking elevated views over the Six Mile Water, the property enjoys a peaceful setting on the periphery of the countryside while remaining conveniently close to local amenities, transport facilities and scenic nature walks.
This unique home within the development offers beautifully proportioned and thoughtfully designed accommodation throughout with approx 1,660 Sq Ft of living space and the potential to convert the second floor with correct permissions offering a sizeable fifth bedroom and extending to Approx. 2,161 Sq Ft. The ground floor comprises a spacious living room and a stunning fully fitted kitchen complete with a host of integrated appliances, seamlessly flowing into a bright and generous sunroom-perfect for modern family living and entertaining. A separate utility room and ground floor WC complete the downstairs accommodation.
On the first floor, four well-proportioned bedrooms provide excellent family space, including an impressive principal suite featuring an ensuite shower room, walk-in dressing area and a striking wrap-around window framing picturesque countryside views. A contemporary family bathroom serves the remaining bedrooms.
Externally, the property benefits from outstanding sun orientation and excellent privacy to the rear, creating a superb outdoor space to relax and unwind.
Only on internal inspection can one truly appreciate all that 9 Kirby´s Meadow has to offer. Early viewing is strongly recommended.
Rooms
OUTSIDE FRONT
Gravel drive with space for up to 4 cars. Timber Pedestrian gate to the rear. Outside lighting.
Composite door with sidelights into:-
SPACIOUS WELCOMING ENTRANCE HALL
Comprising sixty by one hundred and twenty floor tiling. Staircase to first floor with oak moulded handrail, redwood painted spindles and newel post. Understairs storage cupboard. Double radiator.
LOUNGE 18'6" X 14'10" (5.66m X 4.53m)
(At max). Engineered 'burnt oak' flooring. Dual aspect windows. Television and broadband points. Double radiator.
KITCHEN WITH INFORMAL DINING 19'7" X 13'4" (5.99m X 4.09m)
(At max). Full range of blue high and low level 'Shaker' style kitchen units with complimentary granite work surfaces and decorative bevelled splashback tiling. Integrated one and one half bowl stainless steel sink unit with chrome mixer tap. Over counter LED lighting. Contrasting kitchen island with contrasting low level 'Shaker' style kitchen units with complimentary 'Butcher bloc' effect work surface and breakfast bar style seating. Integrated appliances to include a four ring halogen hob with stainless steel and glass overhead extractor fan. Mid level combination oven and grill. Fridge freezer and space for an 'American' style fridge freezer with kitchen units above. Low voltage down lighting. Sixty by one twenty floor tiling. Double radiator. Open to;
SUNROOM 12'0" X 10'0" (3.67m X 3.05m)
Sixty by one hundred and twenty floor tiling. Double radiator. PVC double glazed 'French' patio doors to rear.
UTILITY ROOM
Range of matching low level kitchen units with contrasting work surfaces. Single drainer stainless steels sink unit with chrome mixer tap. Space for washing machine and tumble dryer. Integrated combi gas boiler. Sixty by one hundred and twenty floor tiling. Double radiator. Extractor fan. PVC double glazed door to rear
GROUND FLOOR W.C
Modern white suite comprising a pedestal wash hand basin with monobloc chrome mixer tap and decorative tiled splashback. Low flush push button WC. Sixty by one twenty floor tiling. Extractor fan. Single radiator.
FIRST FLOOR
LANDING
Access to loft. Hotress with 'Warmflow' pressurised cylinder. Single radiator.
PRINCIPLE BEDROOM 12'10" X 10'1" (3.92m X 3.09m)
Florida wrap around window with commanding and stunning views over the Six Mile river. Twin wall lights. USB plug sockets. Double radiator.
DELUXE ENSUITE
Modern white suite comprising a Quadrant corner shower with PVC splashback and partially glazed sliding door. Half pedestal wash hand basin with 'Monobloc' chrome mixer tap and decorative and bevelled tiled splashback. Low flush push button WC. Fully tiled floor. Extractor fan. Low voltage down lighting. Chrome towel radiator.
DRESSING AREA 6'11" X 5'4" (2.12m X 1.65m)
BEDROOM 2 15'0" X 13'8" (4.57m X 4.18m)
(At max). Dual aspect windows. Double radiator.
BEDROOM 3 12'4" X 8'5" (3.77m X 2.58m)
Double radiator.
BEDROOM 4 8'1" X 7'5" (2.47m X 2.28m)
Views towards six milewater river. Double radiator.
FAMILY BATHROOM 8'1" X 6'5" (2.47m X 1.97m)
Modern white suite comprising a 'P' shaped panel bath with PVC panelled walls, 'Drench' shower head and secondary shower attachment. Half pedestal wash hand basin with 'Monobloc', chrome mixer tap, floor to ceiling decorative tiled splashback and wiring for powered mirror. Low flush push button WC. Decorative tiled flooring. Low voltage down lighting. Extractor fan. Chrome towel radiator.
REAR GARDEN
Fully enclosed rear and side garden offering exceptional privacy and superb sun orientation. Six foot timber fencing and pedestrian gate to front on either side. Brick paved patio and brick Pavia pathway bordering rear of house. Neat lawn. Outside tap, outside lighting and outside power. Ducting and wiring in place to provide power to timber shed which can be negotiated.
IMPORTANT NOTE TO ALL POTENTIAL PURCHASERS;
Please note, none of the services or appliances have been tested at this property.
Property Location
Mortgage Calculator
Contact Agent
Contact Country Estates (Antrim)
Request More Information
Requesting Info about...