Contact Agent
Contact Country Estates (Antrim)
3 Bed Detached House
15 Meadow Lands
Antrim, BT41 4EU
price offers over
£233,500
Key Features & Description
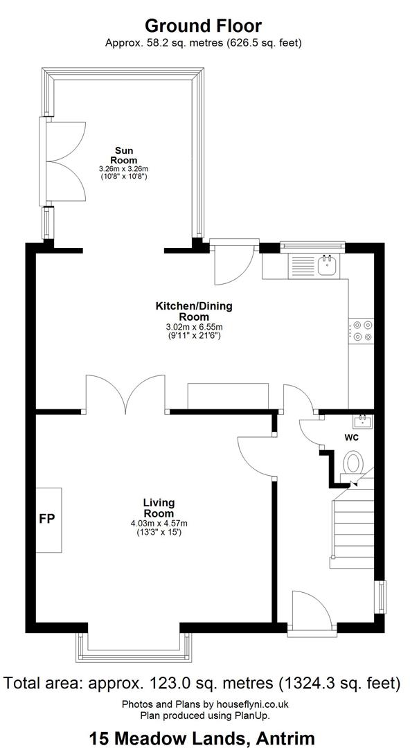
Entrance hall with wood laminate floor / Staircase to first floor / Ground floor W/C
Living room 15'6 x 15'2 (into bay window) / Feature ornate mahogany fire surround / Beveled glass French doors to;
Kitchen with informal dining area / Open square archway to Sunroom
Full range of painted antique pine effect high and low level units
Sunroom 10'8 x 8'9 with mahogany effect PVC double glazed windows and French doors
First floor landing with access to loft
Three well proportioned bedrooms / Two with full range of built-in bedroom furniture / Master with ensuite
Bathroom with modern white suite to include double ended bath and separate fully tiled shower cubicle
Mahogany effect PVC double glazed windows / Gas fired central heating
Pavier brick driveway with parking for three plus cars / Access to Detached Garage / Fully enclosed garden to rear in neat lawn and paved patio
Description
We are delighted to offer for sale 15 Meadowlands, Antrim
This beautifully presented detached three-bedroom family home is ideally located within this popular and well-established development in Antrim, within walking distance of The Junction Outlet Shopping Centre and close to local amenities and excellent transport links.
Occupying a generous corner site, the property benefits from well-maintained and attractively landscaped gardens to the front, side, and rear. Externally, the home further boasts brick paviour off-street parking for up to three cars, an outdoor bar area perfect for entertaining, and a detached garage providing excellent storage options.
Internally, the accommodation is both spacious and well laid out. The generous living room features French doors leading to a spacious kitchen with informal dining area, which in turn opens into a bright rear sunroom overlooking the garden-ideal for modern family living. To the first floor are three generous bedrooms, including a principal bedroom with ensuite facilities.
This superb home is likely to appeal to a wide range of discerning purchasers, and early viewing is strongly recommended to fully appreciate all that is on offer.
We are delighted to offer for sale 15 Meadowlands, Antrim
This beautifully presented detached three-bedroom family home is ideally located within this popular and well-established development in Antrim, within walking distance of The Junction Outlet Shopping Centre and close to local amenities and excellent transport links.
Occupying a generous corner site, the property benefits from well-maintained and attractively landscaped gardens to the front, side, and rear. Externally, the home further boasts brick paviour off-street parking for up to three cars, an outdoor bar area perfect for entertaining, and a detached garage providing excellent storage options.
Internally, the accommodation is both spacious and well laid out. The generous living room features French doors leading to a spacious kitchen with informal dining area, which in turn opens into a bright rear sunroom overlooking the garden-ideal for modern family living. To the first floor are three generous bedrooms, including a principal bedroom with ensuite facilities.
This superb home is likely to appeal to a wide range of discerning purchasers, and early viewing is strongly recommended to fully appreciate all that is on offer.
Rooms
ENTRANCE HALL
Wood laminate floor. Single radiator. Small under stair storage.
GROUND FLOOR W/C
Modern white suite comprising push button low flush W/C and wall mounted trough style wash hand basin with feature mixer taps. PVC paneled walls and ceiling. Extractor fan. Fully tiled floor.
LIVING ROOM 15'6 X 15'2 (4.72m X 4.62m)
into bay window. Open fire with feature ornate mahogany fire surround and part polished cast iron inset. Tiled hearth. Wood laminate floor. Double radiator. 8 pane bevelled glass French doors to:
KITCHEN WITH INFORMAL DINING 21'6 X 9'8 (6.55m X 2.95m)
Full range of painted antique pine effect high and low level units with feature handles and contrasting work surfaces. One and a quarter bowl single drainer stainless steel sink unit and mixer taps. Space for cooker. "Welsh" style dresser with leaded glass display cupboards and open shelving. Wood laminate floor. Mahogany effect PVC double glazed door to rear. Two double radiators. Open square archway to:
SUNROOM 10'8 X 8'9 (3.25m X 2.67m)
Fully tiled floor. Mahogany effect PVC double glazed windows and French doors to rear. Double radiator.
FIRST FLOOR LANDING
Former hot press used for storage. Access to loft.
BEDROOM 1 13'5 X 9'6 (4.09m X 2.90m)
Full range of off white wood grain effect built-in bedroom furniture comprising double wardrobes, single wardrobe, drawer sets, open shelving and bedside cabinet. Wood laminate floor. Single radiator.
ENSUITE
Modern white suite comprising concealed cistern to push button low flush W/C with modern wash hand basin and mixer taps inset to vanity unit with storage below. Fully tiled shower cubicle with large shower head and additional hand held shower. Pivot glazed door. Fully tiled walls with decorative insets. Feature fully tiled floor. Low voltage down lights. Extractor fan. Heated towel rail.
BEDROOM 2 12' X 9'9 (3.66m X 2.97m)
Full range of walnut effect built-in furniture comprising two double wardrobes with long chrome handles, vanity area with over head locker and drawers below. Fixed bed head with bedside cabinets, open shelving and over head lockers. Fixed desk area with open shelving and drawer set. Wood laminate floor. Single radiator.
BEDROOM 3 9'10 X 9'2 (3.00m X 2.79m)
(max) Over stair storage cupboard. Single radiator. Wood laminate floor.
BATHROOM 9'9 X 6'6 (2.97m X 1.98m)
Modern white suite comprising double ended bath with off set taps. Low flush W/C and pedestal wash hand basin. Fully tiled corner quadrant shower cubicle with thermostatic unit and sliding cubicle doors. Half tiled walls with decorative border. Fully tiled floor. Double radiator.
OUTSIDE
Garden to front and side in neat lawn with low maintenance borders in decorative stone, mature trees and shrubs. Paved pathway. Pavier brick to side with off street parking for 3 plus cars. Access to:
DETACHED GARAGE 19'5 X 9'11 (5.92m X 3.02m)
Roller shutter door. Power and light. Wood laminate floor. Mostly glazed service door to:
Fully enclosed rear garden in paved patio and neat lawn. Gold stone display. Open to side garden in neat lawn and raised timber displays with gold stone. Raised paved patio with covered outdoor bar area. 6Ft. timber fencing. Attached boiler house with gas fired boiler. Outside light.
Fully enclosed rear garden in paved patio and neat lawn. Gold stone display. Open to side garden in neat lawn and raised timber displays with gold stone. Raised paved patio with covered outdoor bar area. 6Ft. timber fencing. Attached boiler house with gas fired boiler. Outside light.
IMPORTANT NOTE TO ALL POTENTIAL PURCHASERS;
Please note, none of the services or appliances have been tested at this property.
Please also be aware, property boundaries are an estimation and are to be confirmed via your solicitor.
Please also be aware, property boundaries are an estimation and are to be confirmed via your solicitor.
Broadband Speed Availability
Potential Speeds for 15 Meadow Lands
Max Download
1800
Mbps
Max Upload
220
MbpsThe speeds indicated represent the maximum estimated fixed-line speeds as predicted by Ofcom. Please note that these are estimates, and actual service availability and speeds may differ.
Property Location
Mortgage Calculator
Contact Agent
Contact Country Estates (Antrim)
Request More Information
Requesting Info about...