Contact Agent
Contact Country Estates (Antrim)
4 Bed Detached House
7 Castlewater Gardens
Antrim, BT41 4FP
price offers over
£319,950
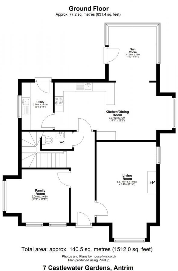
Key Features & Description
Entrance hall with fully tiled floor / Staircase to first floor / Ground floor W/C
Lounge 18'3" x 11'3" (into bay) with feature 'Inglenook' fireplace and wood burning stove
Second reception 11'10" x 10'1" with dual aspect windows
Kitchen with informal dining area / Bay window to side and square open to;
Sunroom 10'2" x 9'0" with fully tiled flooring and PVC 'French' patio doors to rear
Full range of cream coloured contemporary style high and low level units / Integrated four ring gas hob, oven, dishwasher, fridge and freezer
Utility room with range of matching units / Storage cupboard with wall mounted gas fired boiler
Four well proportioned bedrooms / Master with ensuite shower room
Family bathroom with luxury white suite to include double ended bath and fully tiled corner quadrant shower cubicle
PVC double glazed windows & external doors / Oak internal doors / Gas fired central heating / PVC fascia and soffits / 1Gb Virgin broadband / Wired BT / Tarmac drive / Landscaped gardens to front, sid
Description
This is an exceptional opportunity to acquire a beautifully presented, contemporary detached family home designed for modern living. The ground floor features a welcoming entrance hall leading to a spacious lounge with a feature 'Inglenook' fireplace and wood-burning stove, complemented by a versatile second reception room. At the heart of the home is a stylish kitchen with informal dining area and integrated appliances, opening into a bright sunroom with French doors to the rear. A practical utility room and ground floor WC further enhance the functional layout.
Upstairs, the property offers four well-proportioned bedrooms, including a master suite with ensuite. A luxury family bathroom with a double-ended bath and separate shower cubicle serves the remaining rooms. Finished with premium oak internal doors, gas-fired central heating, and ultra-fast 1Gb broadband, this home offers a perfect blend of style and efficiency. Early viewing is strongly recommended.
This is an exceptional opportunity to acquire a beautifully presented, contemporary detached family home designed for modern living. The ground floor features a welcoming entrance hall leading to a spacious lounge with a feature 'Inglenook' fireplace and wood-burning stove, complemented by a versatile second reception room. At the heart of the home is a stylish kitchen with informal dining area and integrated appliances, opening into a bright sunroom with French doors to the rear. A practical utility room and ground floor WC further enhance the functional layout.
Upstairs, the property offers four well-proportioned bedrooms, including a master suite with ensuite. A luxury family bathroom with a double-ended bath and separate shower cubicle serves the remaining rooms. Finished with premium oak internal doors, gas-fired central heating, and ultra-fast 1Gb broadband, this home offers a perfect blend of style and efficiency. Early viewing is strongly recommended.
Rooms
OUTSIDE FRONT
Tarmac drive to side with space for two cars. Mix stone borders. Neat lawn. Pedestrian gate to rear. Outside lighting.
ENTRANCE HALL
Composite door to wide and spacious entrance hall with broad board wood effect tiling. Staircase to first floor with moulded handrail and painted balustrading. Double radiator.
FAMILY LOUNGE 18'3" X 11'3" (5.57m X 3.45m)
(Into bay.) Feature 'Inglenook' fireplace with wood burning, glass fronted stove and slate hearth. Wood laminate flooring. Low voltage down lighting over a bay. Double radiator.
RECEPTION 2 11'10" X 10'1" (3.62m X 3.09m)
(Into bay.) Dual aspect windows. Wood laminate flooring. Double radiator.
GROUND FLOOR WC
Modern white suite comprising a wall mounted half pedestal wash hand basin with 'Monobloc' chrome mixer tap and tiled splashback. Low flush push button WC. Broad board wood effect tiling. Extractor fan. Single radiator.
KITCHEN WITH INFORMAL DINING 22'3" X 11'1" (6.79m X 3.38m)
(Into bay). Fully fitted range of cream, contemporary style, high and low level kitchen units with contrasting granite work surfaces and splashback stands. 11 quarter bowl stay in this steel integrated sync unit with chrome mixer tap. Integrated appliances to include a four ring gas hob, with stainless steel pyramid style, overhead, extractor fan and glass splashback. A low level combination of integrated dishwasher and fridge/freezer. Broad board wood effect tiled flooring. Low voltage and pelmet down lighting. Low voltage downlighting to kitchen. 2 x double radiators. Square open to;
SUNROOM 10'2" X 9'0" (3.12m X 2.76m)
Broad board wood effect tiling. Low voltage down lighting. Double radiator. PVC double glazed door to rear.
UTILITY ROOM
Matching range of high and low level kitchen units with complimentary work services. Single drainer stainless steel sink unit with chrome mixer tap. Integrated gas combi boiler. Space for washing machine and tumble dryer. Broad board wood would effect floor tiling. Single radiator. PVC double glazed door to rear.
FIRST FLOOR LANDING
Access to loft with drop down ladder. Linen cupboard with pressurised cylinder and shelving. Single radiator.
PRINCIPAL BEDROOM 16'2" X 10'8"(atma (4.95m X 3.28m(ata)
(Into bay.) Wood laminate flooring. Two integrated storage cupboards. Low voltage downlighting. Double radiator.
ENSUITE
Modern white suite comprising a corner quadrant shower with fully tiled splashback and partially glazed sliding doors. Half pedestal wash hand basin with 'monobloc' chrome mixer tap and floor to ceiling tiled splashback low flush push button WC. Extractor fan. Low voltage downlighting. Fully tiled flooring. Single radiator.
BEDROOM 2 13'11" X 10'1"(atma (4.25m X 3.08m(ata)
(Into bay) Wood laminate flooring. Single radiator.
BEDROOM 3 10'7" X 9'1" (3.23m X 2.79m)
Wood laminate flooring. Single radiator.
BEDROOM 4 10'1" X 7'8" (3.10m X 2.36m)
Wood laminate flooring. Single radiator.
FAMILY BATHROOM 9'0" X 6'5" (2.77m X 1.97m)
Modern white four piece suite comprising a double ended panel bath with feature chrome mixer tap, pencil shower head attachment and tiled splashback. Enclosed quadrant shower with fully tiled, splashback and partially graze sliding doors. Half pedestal wash hand basin with 'monobloc' chrome mixer tap and floor to ceiling feature tiled splashback. Low flush push button WC. Extractor fan. Single radiator.
REAR GARDEN
Fully enclosed rear garden with paved patio area. Tarmac pathway leading to front. Mixed stone borders. Neat lawn. Mix of six foot timber fencing and wall to one side. Outside tap and lighting. Timber pedestrian gate to front.
IMPOTANT NOTE TO ALL POTENTIAL POTENTIAL PURCHASER
Please note, none of the services or appliances have been tested at this property.
Please also be aware, property boundaries are an estimation and are to be confirmed via your solicitor.
Please also be aware, property boundaries are an estimation and are to be confirmed via your solicitor.
Broadband Speed Availability
Potential Speeds for 7 Castlewater Gardens
Max Download
1800
Mbps
Max Upload
220
MbpsThe speeds indicated represent the maximum estimated fixed-line speeds as predicted by Ofcom. Please note that these are estimates, and actual service availability and speeds may differ.
Property Location
Mortgage Calculator
Contact Agent
Contact Country Estates (Antrim)
Request More Information
Requesting Info about...
7 Castlewater Gardens, Antrim, BT41 4FP
By registering your interest, you acknowledge our Privacy Policy
By registering your interest, you acknowledge our Privacy Policy