4 Bed Detached House
212 Brantwood Gardens
Antrim, BT41 1HT
price offers over
£299,950
Key Features & Description
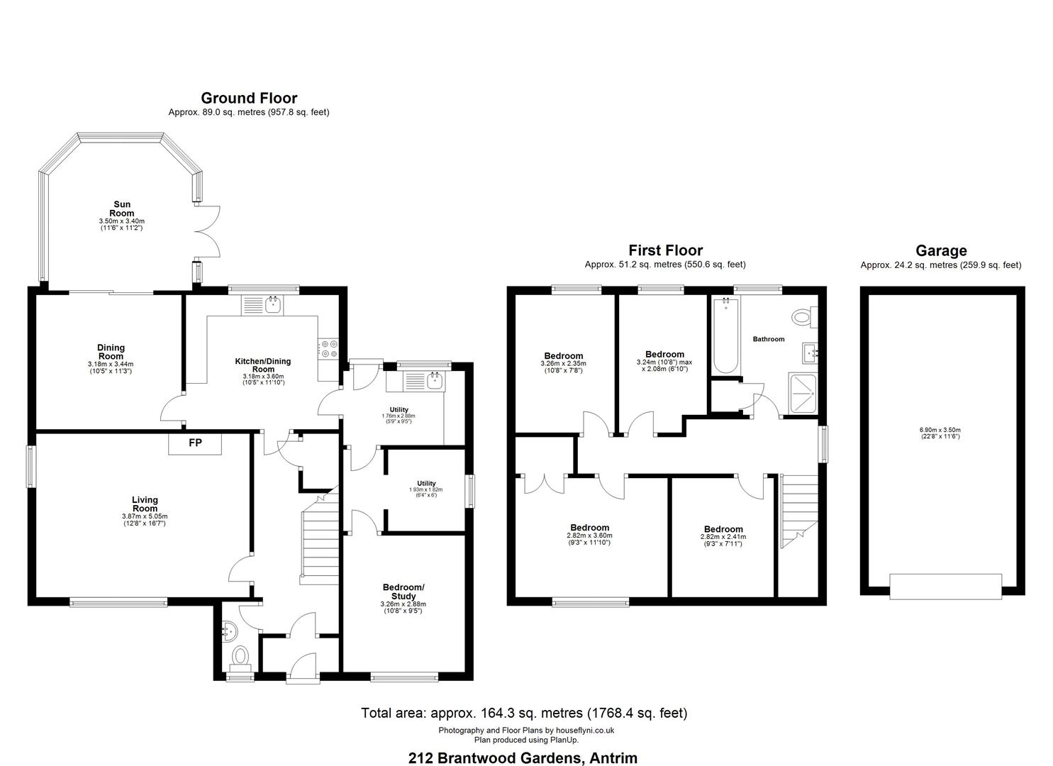
Entrance hall with wood laminate floor / Staircase to first floor
Lounge with feature fireplace with back boiler
Kitchen with informal dining area 11'9" x 10'10" / Full range of mid grey coloured "Shaker" style high and low level units
Separate utility with a range of 'Shaker' style high and low level units with space for washing machine and fridge freezer
Converted integrated garage with walk in pantry and home office
Conservatory with white PVC double glazed windows and French doors / Solid wood flooring
Four well proportioned bedrooms / Master with integrated storage
Bathroom with luxury white suite to include panel bath, large enclosed shower cubicle, wash hand basin and low flush W/C / Fully tiled floor
Oak effect PVC double glazed windows and French doors / Oil-fired central heating / Security alarm system
Brick Pavia drive with off-street parking for three cars / Access to detached garage / Beautifully landscaped gardens to front and rear
Description
This is an exceptionally rare opportunity to purchase a well presented spacious four bedroom detached house with conservatory and detached garage occupying a prominent position in this sought after residential development close to Antrim town centre and all local amenities and transport facilities. Finished to an exceptionally high standard throughout the property benefits from a recently installed kitchen with contrasting worktops, a separate utility, a walk in pantry and a ground floor home office / bedroom, together with a modern luxurious white bathroom suite comprising a panel bath and large separate shower cubicle.
Only on full internal inspection can one appreciate the quality of this superb family home. Early viewing strongly recommended.
This is an exceptionally rare opportunity to purchase a well presented spacious four bedroom detached house with conservatory and detached garage occupying a prominent position in this sought after residential development close to Antrim town centre and all local amenities and transport facilities. Finished to an exceptionally high standard throughout the property benefits from a recently installed kitchen with contrasting worktops, a separate utility, a walk in pantry and a ground floor home office / bedroom, together with a modern luxurious white bathroom suite comprising a panel bath and large separate shower cubicle.
Only on full internal inspection can one appreciate the quality of this superb family home. Early viewing strongly recommended.
Rooms
ACCOMMODATION
Brick Pavia driveway with parking for up to 5 cars. Well stocked mature flower beding. Outside light. Pedestrian gate to rear. Entrance door with side lights to:
ENTRANCE PORCH
Wood laminate flooring with fully tiled floor. Two panel door with side lights to:
ENTRANCE HALL
Stair case too first floor with hand rail. Single radiator. Under stair storage cupboard.
GROUND FLOOR WC
Modern white suite comprising pedestal wash hand basin with chrome mixer taps. Low flush push button WC. Fully tiled floor and partially tiled walls. Single radiator.
LOUNGE 16'6" X 12'7" (5.05m X 3.85m)
Feature fire place with cast iron inset, tiled hearth and wooden surround and dual heating system back boiler which heats radiators and water. Double radiator.
KITCHEN INTO INFORMAL DINING 11'9" X 10'10" (3.60m X 3.32m)
Fully fitted range of mid grey "Shaker" style kitchen units with contrasting work tops. One and a quarter bowl stainless steel sink unit with chrome mixer tap. Integrated dish washer. Space for cooker with part glass par stainless steel over head extractor fan and glass splash back. Fully tiled floor. USB plug sockets. Double radiator.
UTILITY 9'5" X 5'9" (2.87m X 1.76m)
Oak effect "Shaker" style high and low kitchen units with contrasting work tops and tiled splash back. Single drainer stainless steel sink unit with chrome mixer taps. Space for fridge freezer and washing machine. Fully tiled floor. Single radiator. PVC wood effect door to rear.
WALK IN PANTRY
1.942 X 1.838
With shelved storage. Space for tumble dryer and oil boiler. Access to partially floored loft with lighting.
With shelved storage. Space for tumble dryer and oil boiler. Access to partially floored loft with lighting.
HOME OFFICE / GROUND FLOOR BEDROOM 10'5" X 9'6" (3.20m X 2.90m)
Four double sockets. Double radiator.
DINING ROOM 11'3" X 10'5" (3.43m X 3.18m)
Solid oak flooring. Double radiator. Double glazed PVC sliding door to:
CONSERVATORY 13'5" X 11'5" (4.09m X 3.49m)
Solid oak flooring. TV points. Two double radiators. Double glazed 'French' PVC doors to the rear
FIRST FLOOR LANDING
Access to partially floored loft with lighting and drop down ladder. Hot press with insulated copper cylinder and shelved storage.
BATHROOM 9'3" X 8'3" (2.84m X 2.52m)
Luxury modern white four piece suite comprising panelled bath with "Aqualissa" power shower over and partially glazed screen, chrome mixer tap with shower attachment. Large enclosed shower unit with "Mira" sport thermostatic shower and glazed sliding doors. Pedestal wash hand basin with chrome mixer tap. Low flush push button WC. Fully tiled walls and industrial style chrome radiator. Low voltage down lights. Immersion heater. Concealed extractor fan.
BEDROOM 1 9'3" X 7'10" (2.82m X 2.41m)
Single radiator.
BEDROOM 2 10'6" X 7'10" (3.23m X 2.41m)
Single radiator.
PRINCIPAL BEDROOM 11'9" X 9'4" (3.60m X 2.85m)
Large integrated storage cupboard. Double radiator.
BEDROOM 4 7'7" X 10'7" (2.32m X 3.23m)
Single radiator.
GARAGE 22'9" X 11'6" (6.95m X 3.52m)
Manual roller door. Full electrics and lighting. Water tap. PVC door to side.
OUTSIDE REAR
Fully landscaped enclosed rear garden with mixed stone pathway to garage. Beautifully neat lawn and large raised patio. Well stocked flower beds. Mixed stone bordering. Concealed PVC oil tank. Black iron gate to side. Outside tap and power point.
IMPORTANT NOTE TO ALL POTENTIAL PURCHASERS;
Please note, none of the services or appliances have been tested at this property. Please also be aware that external photographs were taken at an earlier date.
Broadband Speed Availability
Potential Speeds for 212 Brantwood Gardens
Max Download
1800
Mbps
Max Upload
300
MbpsThe speeds indicated represent the maximum estimated fixed-line speeds as predicted by Ofcom. Please note that these are estimates, and actual service availability and speeds may differ.
Property Location
Mortgage Calculator
Contact Agent
Contact Country Estates (Antrim)
Request More Information
Requesting Info about...
212 Brantwood Gardens, Antrim, BT41 1HT
By registering your interest, you acknowledge our Privacy Policy
By registering your interest, you acknowledge our Privacy Policy