5 Bed Detached House
114 Belfast Road
Antrim, BT41 2BA
offers in excess of
£514,950
Key Features & Description
Large welcoming Entrance hall with porcelain tiled flooring and gallery landing leading to;
Exceptional open plan kitchen dining with bespoke, handmade 'In Frame' kitchen and stunning roof lantern above
Full range of Farrow and Ball green, Birch ply high and low level units with matching kitchen island and contrasting quartz work surfaces
Full range of integrated appliances to include a 'Miele' induction hob wit down draft extractor, a mid level oven and grill, microwave, dishwasher and full length fridge
Walk in pantry providing superb storage in addition to a large utility room
Luxury ground floor shower room with power shower
Three spacious reception rooms one of which is suitable for conversion to ground floor bedroom with ensuite
Four superb bedrooms to the first floor to include Principal with luxury ensuite / 100% wool carpets to the first floor / Luxury family shower room
PVC Triple glazed windows and double glazed external doors / Oil-fired central heating
Decorative stone drive with generous parking for 10+ cars / Large site approx. 66m x 25 m with gardens to front and rear / Rear garden / Additional Photos will Follow
Description
We are delighted to offer for sale 114 Belfast Road, Antrim
This exceptional five bedroom detached family residence has been extensively renovated and extended to an impeccable standard, offering luxurious, contemporary living in a highly convenient location close to local shopping, transport links and amenities.
At the heart of the home lies a truly stunning bespoke, hand-made kitchen, finished with elegant in-frame high and low level units, quartz work surfaces and a large matching central island. A full range of integrated appliances, together with an impressive roof lantern, floods the space with natural light, creating a superb hub for modern family life and entertaining. The kitchen is further complemented by a generous walk-in pantry and a separate utility room (awaiting final completion).
The ground floor also boasts three spacious reception rooms, providing exceptional flexibility. One reception room benefits from plumbing already in place, offering the option to create a ground floor bedroom with ensuite if desired. In addition, a luxury shower room on the ground floor enhances everyday practicality.
To the first floor, four well-proportioned bedrooms provide ample accommodation for family living. The stunning principal bedroom is served by a beautifully appointed luxury ensuite, finished to the highest standard, while an additional high-quality shower room completes the first floor accommodation.
Finished throughout with meticulous attention to detail, this outstanding home combines elegant design, generous proportions and versatile living space, making it an ideal choice for the discerning family buyer. Early viewing is strongly recommended. Please note, Additional photographs will follow.
We are delighted to offer for sale 114 Belfast Road, Antrim
This exceptional five bedroom detached family residence has been extensively renovated and extended to an impeccable standard, offering luxurious, contemporary living in a highly convenient location close to local shopping, transport links and amenities.
At the heart of the home lies a truly stunning bespoke, hand-made kitchen, finished with elegant in-frame high and low level units, quartz work surfaces and a large matching central island. A full range of integrated appliances, together with an impressive roof lantern, floods the space with natural light, creating a superb hub for modern family life and entertaining. The kitchen is further complemented by a generous walk-in pantry and a separate utility room (awaiting final completion).
The ground floor also boasts three spacious reception rooms, providing exceptional flexibility. One reception room benefits from plumbing already in place, offering the option to create a ground floor bedroom with ensuite if desired. In addition, a luxury shower room on the ground floor enhances everyday practicality.
To the first floor, four well-proportioned bedrooms provide ample accommodation for family living. The stunning principal bedroom is served by a beautifully appointed luxury ensuite, finished to the highest standard, while an additional high-quality shower room completes the first floor accommodation.
Finished throughout with meticulous attention to detail, this outstanding home combines elegant design, generous proportions and versatile living space, making it an ideal choice for the discerning family buyer. Early viewing is strongly recommended. Please note, Additional photographs will follow.
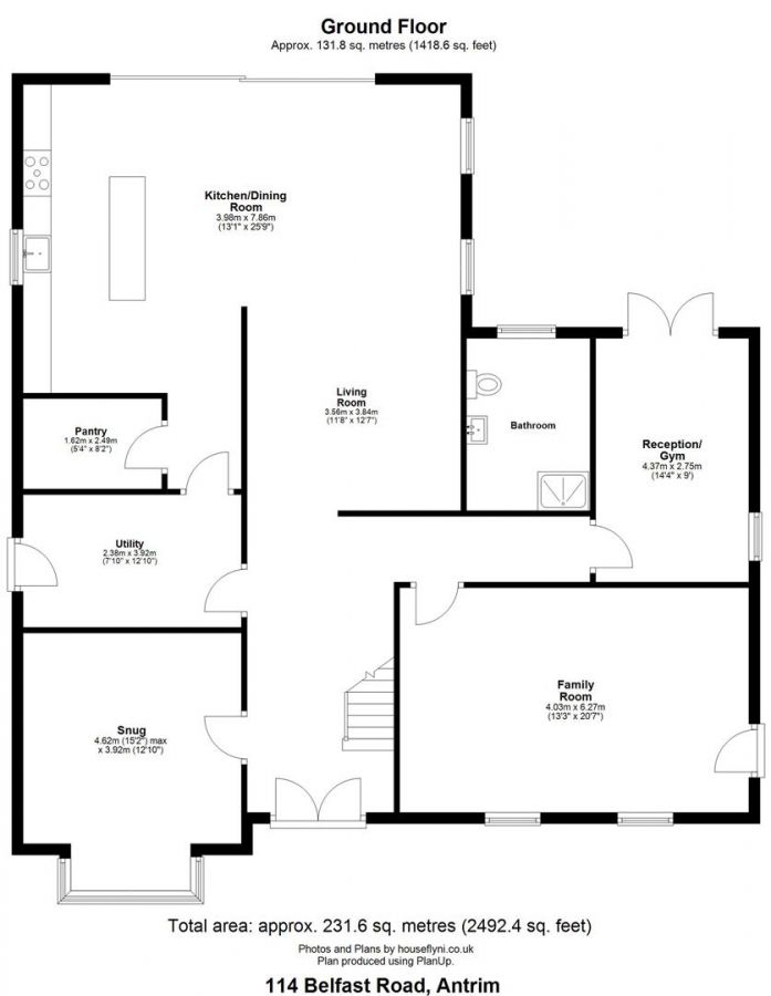
Rooms
ENTRANCE HALL 17'8" X 8'7" (5.40m X 2.63m)
African wood double glazed double doors to entrance. Double height ceiling to gallery landing. Light oak tread staircase to first floor with black rod iron powder coated balustrading and oak newel. Open to understairs.
Fully tiled limestone effect porcelain tiling. Open to
Fully tiled limestone effect porcelain tiling. Open to
FORMAL DINING
Limestone effect porcelain tiled flooring. High level plug sockets. Open to;
KITCHEN 12'7" X 24'3" (3.85m X 7.40m)
(To include pantry length)
Bespoke hand made 'In Frame' farrow and ball - green Birch Ply kitchen with contrasting quartz work surfaces and upstands and matching centre island. Belfast style sink with 'Quooker' tap in antique brass style. Integrated appliances to include a mid level combination oven and grill, microwave above, full length fridge, dishwasher, 'Miele' four ring induction hob with down draft extractor and integrated bin storage. Double doored larder cupboard with solid oak internal drawers, shelving, spice wracks and quartz work surface with brush brassed plug sockets providing internal storage for work surface appliances. Low voltage down lighting. Integrated shelving to island and under island storage and breakfast bar style seating. Plug sockets to either end. Stunning roof lantern 2.8m x 1.8m providing exceptional natural lighting.
Bespoke hand made 'In Frame' farrow and ball - green Birch Ply kitchen with contrasting quartz work surfaces and upstands and matching centre island. Belfast style sink with 'Quooker' tap in antique brass style. Integrated appliances to include a mid level combination oven and grill, microwave above, full length fridge, dishwasher, 'Miele' four ring induction hob with down draft extractor and integrated bin storage. Double doored larder cupboard with solid oak internal drawers, shelving, spice wracks and quartz work surface with brush brassed plug sockets providing internal storage for work surface appliances. Low voltage down lighting. Integrated shelving to island and under island storage and breakfast bar style seating. Plug sockets to either end. Stunning roof lantern 2.8m x 1.8m providing exceptional natural lighting.
WALK IN PANTRY 7'11" X 5'3" (2.42m X 1.60m)
Limestone effect porcelain tiled flooring.
UTILITY 12'7" X 7'9" (3.84m X 2.38m)
Units to be installed by prospective buyer. Plumbed for washing machine. Limestone effect porcelain tiled flooring. 'Joule' pressurised hot water cylinder. Under floor heating manifolds. Smart heat controls.
LOUNGE 12'9" X 15'5" (3.90m X 4.70m)
(Into bay). American Oak effect fully tiled broad board flooring. Twin wall light points.
RECEPTION 2 20'6" X 13'2" (6.26m X 4.02m)
Dual aspect windows. Plumbing in place for suitable conversion to ground floor bedroom with ensuite with correct permissions. African wood double glazed door to side.
HOME GYM / SNUG 14'2" X 8'11" (4.34m X 2.73m)
American Oak effect fully tiled broad board flooring. PVC triple glazed 'French' patio doors to rear.
GROUND FLOOR SHOWER ROOM 10'0" X 7'3" (3.07m X 2.22m)
Easy access fully tiled wet room style shower comprising a 'Grohe' 360 Duo integrated power shower with drench shower head and 10mm Merlyn glazed screen and folding door. Wall mounted trough style wash hand basin with feature tap and exposed polished chrome gulley trap. Half tiled walls with polished chrome edging and light oak shelf over sink. Low voltage down lighting. Polished chrome heating towel rail.
FIRST FLOOR GALLERY LANDING
Access to large partially floored loft with foldout ladder. Large walk in linen cupboard with shelving.
PRINCIPAL BEDROOM SUITE 12'10" X 20'11" (3.92m X 6.38m)
Vaulted ceiling. Eye level aerial socket and tv point. Twin wall light points. Double glazed sliding patio doors. Two double radiators.
LUXURY ENSUITE 14'6" X 8'7" (4.44m X 2.63m)
Four piece luxury ensuite comprising an 1800mm easy access shower with 'Grohe' 360 duo shower with drench shower head, fully tiled Herringbone feature wall and 10mm Merlyn shower screen. Free standing double ended Lusso stone Picasso bath with feature stand pipe, polished mixer tap and pencil shower attachment. Matching Lusso sink units with bespoke stained oak vanity unit. American Oak effect fully tiled flooring. Semi vaulted ceiling.
BEDROOM 2 10'2" X 10'8" (3.11m X 3.26m)
Double radiator. Views over rear garden.
BEDROOM 3 12'3" X 10'9" (3.75m X 3.30m)
Double radiator.
BEDROOM 4 12'3" X 9'4" (3.76m X 2.87m)
Double radiator.
BEDROOM 5 10'10" X 8'7" (3.30m X 2.64m)
Views over rear garden. Double radiator.
SHOWER ROOM (3.30m X 2.35m)
1400mm walk-in shower with 'Duravit' shower tray, 10mm Merlyn shower screen and 'Grohe' 360 duo integrated power shower.
Victorian style moulded wash hand base on custom vanity with oak surface and double storage below. Feature mixer tap. Low flush push button WC. Feature 'Victorian' style part polished chrome towel rad with inset radiator. Wiring for mirror light. American Oak effect fully tiled flooring. Chrome towel rail.
Victorian style moulded wash hand base on custom vanity with oak surface and double storage below. Feature mixer tap. Low flush push button WC. Feature 'Victorian' style part polished chrome towel rad with inset radiator. Wiring for mirror light. American Oak effect fully tiled flooring. Chrome towel rail.
OUTSIDE
Double entrance pillars to decorative stone driveway to front and side. Substantial parking for up to 10 cars. Front garden top soiled and ready for lawn. 6 ft timber fencing to front and specimen trees. Matching low level wall and steps down to garden. Outside lighting. Vehicular access to rear with potential for detached garage.
PVC oil tank. Low level feature double wall with inset planter area. Steps to slightly raised neat lawn with mature hedging and specimen trees. Greenhouse and timber garden shed. Prefabricated oil fired boiler house. Outside tap and lighting.
PVC oil tank. Low level feature double wall with inset planter area. Steps to slightly raised neat lawn with mature hedging and specimen trees. Greenhouse and timber garden shed. Prefabricated oil fired boiler house. Outside tap and lighting.
IMPORTANT NOTE TO ALL POTENTIAL PURCHASERS;
Please note, none of the services or appliances have been tested at this property.
Please also be aware, additional photographs will follow.
Please also be aware, additional photographs will follow.
Broadband Speed Availability
Potential Speeds for 114 Belfast Road
Max Download
1800
Mbps
Max Upload
220
MbpsThe speeds indicated represent the maximum estimated fixed-line speeds as predicted by Ofcom. Please note that these are estimates, and actual service availability and speeds may differ.
Property Location
Mortgage Calculator
Contact Agent
Contact Country Estates (Antrim)
Request More Information
Requesting Info about...