3 Bed Semi-Detached House

Site 117 Tammany B, Oakwood

Ballygore Road, Birch Hill Road, BT41

price £230,000
  • Status Sale Agreed
  • Property Type Semi-Detached
  • Bedrooms 3
  • Receptions 1
  • Bathrooms 1
  • Stamp Duty
    Higher amount applies when purchasing as buy to let or as an additional property
    £2,100 / £13,600*
  • Typical Mortgage
    Click price to use our mortgage calculator

Key Features & Description

  • PHASE 4 - EXCITING NEW PHASE ON RELEASE!
  • SPECIFICATION
  • KITCHENS & UTILITY ROOMS
  • High quality units with choice of soft close drawer, doors styles and colours. Choice of worktop and handle
  • Integrated appliances to include gas hob, electric oven, extractor hood, fridge/freezer and dishwasher
  • Integrated washing machine in kitchen where no utility room
  • LED lighting to underside of kitchen units
  • Recessed LED down lighters to kitchen ceiling
  • Plumbing and electric supply for washing machine in utility room
  • INTERNAL FEATURES
  • Internal décor, walls and ceilings painted
  • Multi fuel Stove with hearth
  • Mains supply smoke detectors
  • Mains supply Carbon monoxide detectors
  • Moulded skirting and architraves
  • Painted internal doors with quality ironmongery
  • Comprehensive range of electrical sockets, switches, TV and telephone points
  • Wiring for future satellite point
  • Firmus fired central heating system
  • Integral Alarm System
  • BATHROOMS, EN-SUITES & WC'S
  • Contemporary white sanitary ware with chrome fittings
  • Thermostatically controlled Shower over bath with screen door where applicable
  • Separate shower enclosure with thermostatically controlled shower where applicable
  • Heated chrome towel radiator to main bathroom and ensuite
  • LED recessed downlighters to main bathroom and ensuite
  • FLOOR COVERINGS & TILINGS
  • Ceramic wall tiling between kitchen units Porcelain tiled floor to kitchen/dining area, utility, hall, bathroom, en-suite and WC
  • Full height porcelain wall tiles to shower enclosure and wet areas to bath and sinks
  • Carpets with underfelt to lounge, bedrooms, stairs and landing
  • EXTERNAL FEATURES
  • Soft landscaping to front gardens (where applicable) in keeping with other houses in the development. Planting to be carried out Spring/Summer (Weather dependant)
  • Rear gardens rotovated and seeded
  • Bitmac driveway
  • uPVC double glazed windows with lockable system
  • Composite front doors with painted finish
  • Outside water tap
  • Boundary fencing to side and rear of the back garden
  • Feature external lighting to front and rear door
  • 10 year NHBC structural warranty
  • Description
    Every Hilmark Home is designed to blend naturally with its environment and complement the surrounding architecture but Oakwood takes our Move-In Ready homes to the next level.

    Contemporary and stylish designs are our trademark and Oakwood presented us the unique opportunity to make the very most of the exceptionally stunning countryside surrounding the area.

    Constructed by skilled local craftsmen using carefully selected materials, every element in each new Hilmark Home is carefully considered for the best possible build. We've taken particular care at Oakwood to integrate large windows in your new home to take full advantage of the breathtaking views and make the most of the natural light.

    We also give you the opportunity to add your own personal touch to the finished design by choosing from our Style and Refine ranges.

    Oakwood combines aspirational living and a desirable location to create a once in a lifetime
    opportunity for those seeking a balance between work, family life and recreation.

    Hilmark Homes promises your new home will always be unique, always considered and always built for you.

    The Hilmark Homes Get-Ready-Room

    We offer a comprehensive, modern move-in-ready specification as standard on all of our developments and Oakwood is no exception. We aim to provide you with the very best in terms of product quality and stylish finishes.

    At Hilmark our focus is on you, the purchaser, and making the process of buying your new home as enjoyable as possible. You will be invited to join us at the custom built Get Ready Room at our Headquarters in Portadown where you will have the opportunity to personalise your new home.

    At Hilmark we offer an exceptional move-in-ready finish from our Style range in your purchase price but you may want to further personalise your home with our Refine range. The Refine range does incur additional costs so you may want to have a think about any additional budget available.

    Our show homes are a good way to get inspiration as they use both the Hilmark Style and Refine ranges. Please note that suppliers can vary from development to development.

    Rooms

    GROUND FLOOR
    Lounge 16'8" X 11'5" (5.09m X 3.47m)
    Kitchen / Dining 18'4" X 14'9" (5.59m X 4.50m)
    Optional Garden Room 10'7" X 9'11" (3.22m X 3.02m)
    Utility Room
    WC
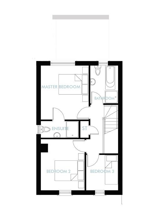
    FIRST FLOOR
    Bedroom 1 12'10" X 11'5" (3.90m X 3.47m)
    Ensuite Bathroom
    Bedroom 2 12'2" X 10'5" (3.70m X 3.17m)
    Bedroom 3 8'5" X 7'7" (2.56m X 2.30m)
    Bathroom 11'2" X 10'9" (3.41m X 3.27m)

    Virtual Tour

    Property Location

    Show Map

    Mortgage Calculator

    Disclaimer: The following calculations act as a guide only, and are based on a typical repayment mortgage model. Financial decisions should not be made based on these calculations and accuracy is not guaranteed. Always seek professional advice before making any financial decisions.

    Request More Information
    Requesting Info about...
    Site 117 Tammany B, Oakwood, Ballygore Road, Birch Hill Road, BT41 Site 117 Tammany B, Oakwood, Ballygore Road, Birch Hill Road, BT41

    By registering your interest, you acknowledge our Privacy Policy