Contact Agent
Contact Templeton Robinson (Lisburn Road)
3 Bed Semi-Detached House
60 Niblock Oaks
Antrim Town, BT41 2DP
offers over
£183,500
Key Features & Description
Modern Three Bedroom Semi-Detached Home in Ideal Location Close to Many Amenities and Junction One Shopping Complex
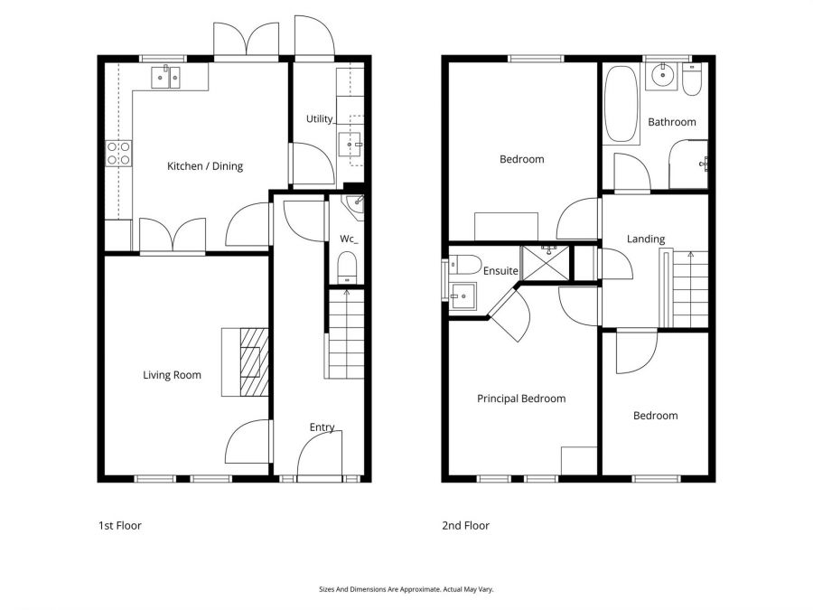
Entrance Hall with Cloakroom/wc
Living Room with Feature Fireplace
Modern Fitted Kitchen with Range of Integrated Appliances and Casual Dining Area
Utility Room
Three Well Proportioned Bedrooms, Principal Bedroom with Ensuite Shower Room
Modern Bathroom
Oil Fired Central Heating / Double Glazed Windows
Tarmac Driveway Parking for Two Cars
Enclosed Rear Gardens in Lawns with Large Timber Deck and Covered Garden Store
Superb Quiet Situation Yet Convenient to Antrim and a Host of Local Amenities with Belfast Within Easy Commuting Distance
A Number of Leading Primary and Secondary Schools only a Short Distance Away
Ready for New Buyer to Move in and Enjoy
Description
This modern, three bedroom semi-detached occupies an excellent location just a few minutes drive from Junction One and all the amenities it has to offer as well as Antrim town centre and access to the main motorway network whether travelling North or South, within easy access to Belfast City Centre.
The property offers bright and well proportioned accommodation comprising; entrance hall with cloakroom/wc, living room, modern fitted kitchen with range of integrated appliances and casual dining area, and separate utility room. There is access from the kitchen via patio doors to the enclosed rear gardens. all finished to a high standard throughout. On the first floor there are three bedrooms (one with ensuite) and modern bathroom.
Externally there is driveway parking for 2 cars to the front, enclosed rear gardens in lawns and timber patio area, covered garden store.
Recent sales in the area have proved extremely popular thus early viewing is recommended.
This modern, three bedroom semi-detached occupies an excellent location just a few minutes drive from Junction One and all the amenities it has to offer as well as Antrim town centre and access to the main motorway network whether travelling North or South, within easy access to Belfast City Centre.
The property offers bright and well proportioned accommodation comprising; entrance hall with cloakroom/wc, living room, modern fitted kitchen with range of integrated appliances and casual dining area, and separate utility room. There is access from the kitchen via patio doors to the enclosed rear gardens. all finished to a high standard throughout. On the first floor there are three bedrooms (one with ensuite) and modern bathroom.
Externally there is driveway parking for 2 cars to the front, enclosed rear gardens in lawns and timber patio area, covered garden store.
Recent sales in the area have proved extremely popular thus early viewing is recommended.
Rooms
Hardwood front door with leaded double glazed sidelights to:
ENTRANCE HALL:
Fully tiled floor.
DOWNSTAIRS W.C.:
Modern white suite comprising low flush wc, corner wash hand basin with storage below, part tiled walls, fully tiled floor, extractor fan.
LIVING ROOM: 15' 4" X 11' 6" (4.67m X 3.51m)
Feature fireplace with beech wood surround, part polished cast iron inset, open fire, slate tiled hearth. French doors with bevelled glass to:
KITCHEN/DINING AREA: 13' 2" X 12' 11" (4.01m X 3.94m)
Shaker sytle kitchen with full range of high and low level units, contrasting work surfaces. One and a half bowl single drainer stainless steel sink unit with mixer taps. Integrated four ring halogen hob, low level combination oven and grill. Stainless steel extractor fan and canopy above. Integrated dishwasher, fridge and freezer. Part tiled walls, tiled floor. uPVC double glazed French doors to rear.
UTILITY ROOM: 8' 11" X 5' 1" (2.72m X 1.55m)
Range of white high and low level units with contrasting work surfaces. Single drainer stainless steel sink unit with mixer taps. Plumbed for washing machine, space for tumble dryer. Oil fired boiler. Tiled floor, partly tiled walls. Hardwood double glazed door to rear.
LANDING:
Access to roofspace. Hotpress with insulated copper cylinder and immersion heater. Shelving above.
BEDROOM (1): 13' 1" X 10' 6" (3.99m X 3.20m)
(at widest points). Laminate wooden floor.
ENSUITE SHOWER ROOM:
Modern white suite comprising low flush wc, pedestal wash hand basin with feature taps. Fully tiled shower cubicle with Triton electric shower, pivot and sliding door, fully tiled floor, extractor fan.
BEDROOM (2): 12' 7" X 10' 6" (3.84m X 3.20m)
High level TV point.
BEDROOM (3): 9' 10" X 7' 6" (3.00m X 2.29m)
(at widest points). Laminate wooden floor.
BATHROOM:
Modern white suite comprising tiled panelled bath with off-set taps, hand held shower. Tiled splashback. Low flush wc, vanity sink unit with feature taps. Fully tiled corner shower cubicle with thermostatic power shower with drencher shower head, separate hand shower. Fully tiled floor, chrome heated towel rail.
Tarmac side by side parking for two cars to front. Pink stone display. Tarmac pathway to front and side, walk through lean-to timber shed to side with access to fully enclosed rear garden in neat lawns and raised timber decked patio area. PVC oil tank, timber fencing. Outside tap and light.
Broadband Speed Availability
Potential Speeds for 60 Niblock Oaks
Max Download
1800
Mbps
Max Upload
220
MbpsThe speeds indicated represent the maximum estimated fixed-line speeds as predicted by Ofcom. Please note that these are estimates, and actual service availability and speeds may differ.
Property Location
Mortgage Calculator
Directions
From Antrim Town take Stiles Way and then right onto Springfarm Road, then right onto Niblock Road and left into Niblock Oaks.
Contact Agent
Contact Templeton Robinson (Lisburn Road)
Request More Information
Requesting Info about...
60 Niblock Oaks, Antrim Town, BT41 2DP
By registering your interest, you acknowledge our Privacy Policy
By registering your interest, you acknowledge our Privacy Policy