4 Bed Semi-Detached House
222 Cliftonville Road
Belfast, County Antrim, BT14 6LD
offers over
£270,000
Key Features & Description
Description
This beautifully presented red brick semi-detached home occupies an elevated site just off the Cliftonville Road, offering both privacy and attractive outlooks. Finished to an exceptional standard throughout, this property blends period character with modern comfort, making it an ideal family home.
Upon entering, you are welcomed by an entrance porch leading into a bright and elegant hallway, complete with corniced ceilings, corbels, and picture rails, setting the tone for the quality found throughout.
The ground floor boasts a superb open plan living and dining area, enhanced by hardwood flooring and a striking bay window that floods the space with natural light through newly installed PVC sash windows. The living area is further complemented by a charming open fire place, creating a warm and inviting atmosphere. The dining area features patio doors leading to the rear garden and provides seamless access to a well-appointed kitchen, finished to a high standard with a range of integrated appliances. From here, there is access to the rear and a convenient utility room.
The first floor comprises two well-proportioned bedrooms and a contemporary family bathroom, finished to an excellent standard with a freestanding bath, walk-in shower, and dual "his and hers" sinks.
The second floor offers two additional bedrooms, with the front-facing rooms enjoying impressive views over Cavehill and towards Belfast Lough. All windows throughout the property are fitted with stylish shutter blinds.
Externally, the property has been thoughtfully landscaped with low maintenance in mind. The front features a neatly designed pathway leading to the entrance and around to the rear. The gardens are tiered to create practical and visually appealing spaces, with a variety of shrubs and flowerbeds. The rear garden continues this theme, offering three distinct tiered areas including planting zones and a generous patio space, all benefiting from excellent privacy.
This is a rare opportunity to acquire a home of such quality in a highly sought-after location.
This beautifully presented red brick semi-detached home occupies an elevated site just off the Cliftonville Road, offering both privacy and attractive outlooks. Finished to an exceptional standard throughout, this property blends period character with modern comfort, making it an ideal family home.
Upon entering, you are welcomed by an entrance porch leading into a bright and elegant hallway, complete with corniced ceilings, corbels, and picture rails, setting the tone for the quality found throughout.
The ground floor boasts a superb open plan living and dining area, enhanced by hardwood flooring and a striking bay window that floods the space with natural light through newly installed PVC sash windows. The living area is further complemented by a charming open fire place, creating a warm and inviting atmosphere. The dining area features patio doors leading to the rear garden and provides seamless access to a well-appointed kitchen, finished to a high standard with a range of integrated appliances. From here, there is access to the rear and a convenient utility room.
The first floor comprises two well-proportioned bedrooms and a contemporary family bathroom, finished to an excellent standard with a freestanding bath, walk-in shower, and dual "his and hers" sinks.
The second floor offers two additional bedrooms, with the front-facing rooms enjoying impressive views over Cavehill and towards Belfast Lough. All windows throughout the property are fitted with stylish shutter blinds.
Externally, the property has been thoughtfully landscaped with low maintenance in mind. The front features a neatly designed pathway leading to the entrance and around to the rear. The gardens are tiered to create practical and visually appealing spaces, with a variety of shrubs and flowerbeds. The rear garden continues this theme, offering three distinct tiered areas including planting zones and a generous patio space, all benefiting from excellent privacy.
This is a rare opportunity to acquire a home of such quality in a highly sought-after location.
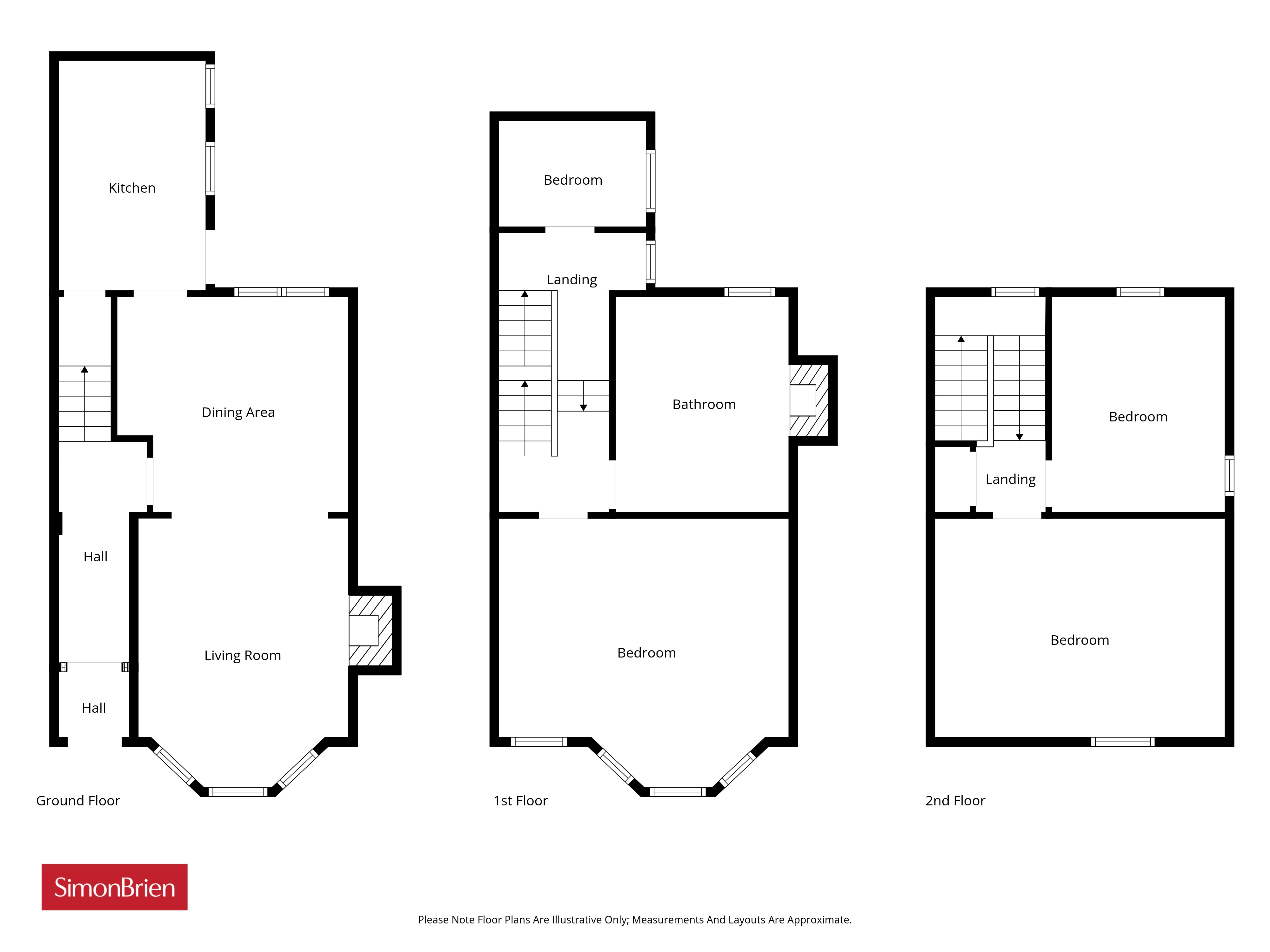
Rooms
Front
Entrance
Composite front door.
Entrance Porch
Ceramic tiled floor, picture rail, corniced ceiling, hardwood front door with stain glass and glass side panels.
Entrance Hall
Ceramic tiled floor, dado rail, picture rail, corniced ceiling and ceiling corbel.
Living/ Dining 27'3" X 15'6" (8.30m X 4.72m)
Engraved flooring, feature bay window with shutter blinds, picture rail, corniced ceiling, feature fireplace (Open), open plan into dining room and patio doors to rear garden.
Kitchen 12'11" X 8'3" (3.94m X 2.51m)
Comprises of a excellent range of high and low level units with wooden work tops, one and a half bowl Belfast sink unit with mixer tap. Four ring hob with under bench oven and overhead stainless steel extractor hood. Integrated dishwasher, integrated fridge and freezer, partly tiled walls, tiled floor, under stair storage, access to rear garden and feature shutter blinds.
Utility Room
Plumbed for washing machine, space for tumble dryer, Belfast sink with mixer taps and gas boiler storage.
First Floor
Landing
Bespoke seating area, dado rail, corniced ceiling, feature shutter blinds and picture rail.
Office/ Bedroom Four 8'6" X 6'0" (2.60m X 1.83m)
Shutter blinds.
Bedroom One 16'2" X 15'3" (4.93m X 4.65m)
Feature bay window with shutter blinds, engraved flooring, picture rail, corniced ceiling and views over Cavehill.
Bathroom
Comprises of free standing bath, walk in shower with glass shower screen, low flush WC, dado rail, picture rail, tiled floor, his and hers ceramic bowl sink units with mixer taps and vanity storage underneath. Extractor fan.
Second Floor
Dado rail, picture rail and built in storage.
Bedroom Two 15'10" X 12'1" (4.83m X 3.68m)
Engraved flooring, views over Cavehill, views over Belfast Lough and shutter blinds.
Bedroom Three 11'10" X 7'4" (3.60m X 2.24m)
Engraved Floor.
Outside
Front
Beautifully tended front entrance with a range of shrubbery, flowerbeds and bordering fencing
Rear
Paved patio area with excellent privacy, pleasant range of shrubbery and hedging. Outside tap, security light, access to utility room, BBQ area, steps leading to second tier of garden with beautiful flowerbeds and bordering fencing. Third tier with additional flowerbeds and feature shed storage.
Broadband Speed Availability
Potential Speeds for 222 Cliftonville Road
Max Download
1800
Mbps
Max Upload
220
MbpsThe speeds indicated represent the maximum estimated fixed-line speeds as predicted by Ofcom. Please note that these are estimates, and actual service availability and speeds may differ.
Property Location
Mortgage Calculator
Contact Agent
Contact Simon Brien (North Belfast)
Request More Information
Requesting Info about...
222 Cliftonville Road, Belfast, County Antrim, BT14 6LD
By registering your interest, you acknowledge our Privacy Policy
By registering your interest, you acknowledge our Privacy Policy