Contact Agent
Contact Simon Brien (North Belfast)
4 Bed House
23 Donegall Park Avenue
Belfast, County Antrim, BT15 4EU
price
£270,000
Key Features & Description
Description
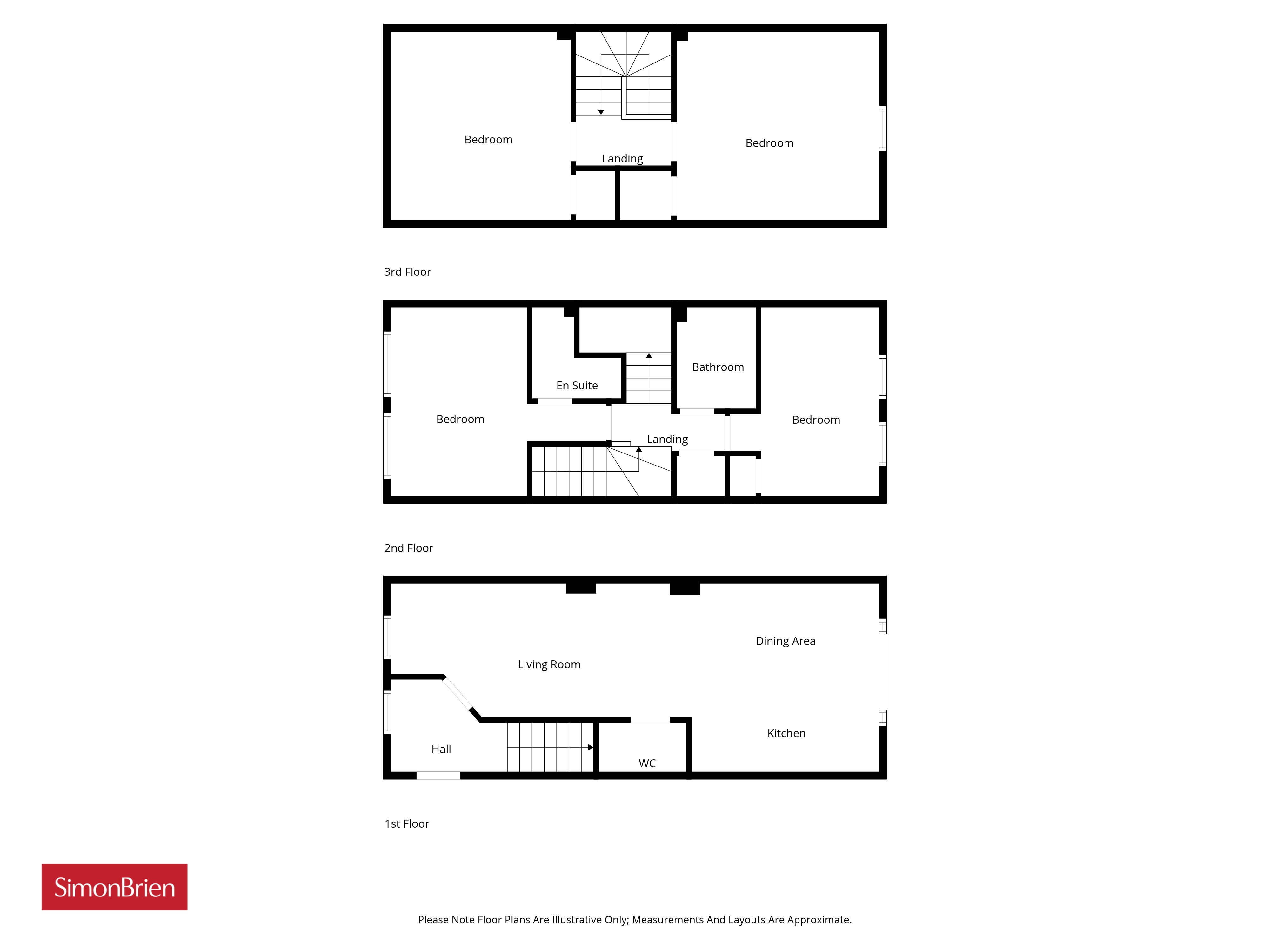
Situated on the leafy and highly regarded Donegall Park Avenue, this impressive end townhouse, constructed in 2014, offers spacious and contemporary accommodation across three floors, finished in a stylish and modern manner throughout.
The property opens into an entrance hall leading to a large open-plan living, dining and kitchen area, creating an excellent space for modern family living and entertaining. The sleek fitted kitchen features cool, contemporary finishes along with a breakfast bar, providing both functionality and style. A ground floor WC completes the accommodation on this level.
The first floor comprises two generous double bedrooms, including a principal bedroom with ensuite shower room, alongside a family bathroom.
The second floor offers two further well-proportioned double bedrooms, ideal for growing families, home office space or guest accommodation.
Externally, the property benefits from an enclosed patio area leading to a raised garden, providing a private outdoor space for relaxation and entertaining. Further advantages include two allocated parking spaces, gas-fired central heating, and tasteful, contemporary décor throughout.
This is a superb opportunity to acquire a modern, low-maintenance home in a sought-after North Belfast location, with excellent transport links and amenities close by. Early viewing is strongly recommended.
Situated on the leafy and highly regarded Donegall Park Avenue, this impressive end townhouse, constructed in 2014, offers spacious and contemporary accommodation across three floors, finished in a stylish and modern manner throughout.
The property opens into an entrance hall leading to a large open-plan living, dining and kitchen area, creating an excellent space for modern family living and entertaining. The sleek fitted kitchen features cool, contemporary finishes along with a breakfast bar, providing both functionality and style. A ground floor WC completes the accommodation on this level.
The first floor comprises two generous double bedrooms, including a principal bedroom with ensuite shower room, alongside a family bathroom.
The second floor offers two further well-proportioned double bedrooms, ideal for growing families, home office space or guest accommodation.
Externally, the property benefits from an enclosed patio area leading to a raised garden, providing a private outdoor space for relaxation and entertaining. Further advantages include two allocated parking spaces, gas-fired central heating, and tasteful, contemporary décor throughout.
This is a superb opportunity to acquire a modern, low-maintenance home in a sought-after North Belfast location, with excellent transport links and amenities close by. Early viewing is strongly recommended.
Rooms
Entrance
uPVC Front door.
Entrance Hall
Tiled floor and natural light.
Lounge 19'6" X 9'2" (5.94m X 2.80m)
Tiled floor.
Kitchen 13'7" X 13'0" (4.14m X 3.96m)
Excellent range of high and low level Quartz work tops, one and a half bowl sink unit with mixer tap, four ring gas hob and overhead extractor hood. Under bench oven, integrated fridge and freezer, integrated dishwasher, integrated washing machine, breakfast bar for casual dining and hosting. Formal dining space and patio doors to rear garden.
Ground Floor WC
Comprises of low flush WC, pedestal wash hand basin with mixer tap and tiled splash back.
First Floor
Landing
Built in storage.
Bedroom One 14'11" X 13'1" (4.55m X 4.00m)
Ensuite
Comprises of enclosed corner shower unit with tiled walls and shower screen, low flush WC, pedestal wash hand basin with mixer tap and tiled splash back. Tiled floor and extractor fan.
Bedroom Two 13'2" X 10'5" (4.01m X 3.18m)
Bathroom
Comprises of paneled bath and overhead shower with shower screen, pedestal wash hand basin with mixer tap and tiled splash back. Low flush WC, tiled floor, recessed lighting and extractor fan.
Second Floor
Landing
Access to loft via Slingsby ladder.
Bedroom Three 13'8" X 13'1" (4.17m X 4.00m)
Herringbone floor and built in storage.
Bedroom Four 13'1" X 12'7" (4.00m X 3.84m)
Built in storage.
Outside
Allocated parking for 2 cars, enclosed rear garden with bordering fencing, paved patio area, outside tap, outside light and bin storage.
Broadband Speed Availability
Potential Speeds for 23 Donegall Park Avenue
Max Download
1800
Mbps
Max Upload
220
MbpsThe speeds indicated represent the maximum estimated fixed-line speeds as predicted by Ofcom. Please note that these are estimates, and actual service availability and speeds may differ.
Property Location
Mortgage Calculator
Contact Agent
Contact Simon Brien (North Belfast)
Request More Information
Requesting Info about...
23 Donegall Park Avenue, Belfast, County Antrim, BT15 4EU
By registering your interest, you acknowledge our Privacy Policy
By registering your interest, you acknowledge our Privacy Policy