4 Burn Side
Magheraconluce Road, Anahilt, Royal Hillsborough, BT26 6SS

Description
A beautifully presented semi-detached 4 bedroom home, nestling with in this charming hamlet of Magheraclnluce and convenient to Anahilt Village for local amenities including Anahilt Primary School, The Pheasant restaurant as well as good road networks for Lisburn, Ballynahinch and Royal Hillsborough.
The property is a welcome addition to the current market providing an opportunity for a wide spectrum of potentially purchasers seeking a practical property that has been well maintained for modern living. Viewing a must!
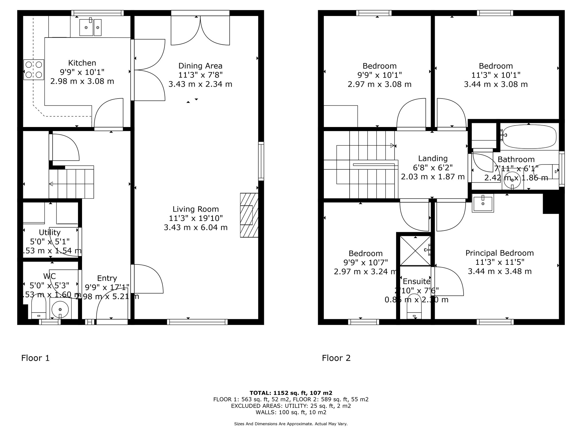
Handsome semi-detached home
Four good bedrooms, master bedroom with ensuite shower room
Bright entrance hallway with staircase to the first floor accommodation
Downstairs cloak room with WC and wash hand basin
Separate utility room with space for an automatic washing machine and space for a tumble dryer
Open plan living room with dining area with an attractive fireplace and open fire. Glazed double doors leading through to the kitchen, patio doors leading to the rear gardens
Modern style kitchen with a generous range of fitted high and low level units with a built in oven and inset hob, with an extractor fan above. Built in dish washer. Integrated fridge and integrated freezer
Bathroom on the first floor with modern and attractive white suite including a bath, WC and wash hand basin. Glass shower screen over bath with a fitted shower fitment
Enclosed rear garden area with neat lawns and patio area. Parking area at the front
PVC double glazed windows
Oil fired central heating
Pine panelled interior doors
Broadband Speed Availability
Potential Speeds for 4 Burn Side
Property Location

Mortgage Calculator
Directions
Contact Agent

Contact Stewart Estate Agents

By registering your interest, you acknowledge our Privacy Policy