Contact Agent

Contact CPS Armagh

Contact CPS Armagh

4 Bed Detached House

14 Annaghmore Road & Two Sites

Annaghmore, BT62 1NA

price £250,000
  • Status For Sale
  • Property Type Detached
  • Bedrooms 4
  • Receptions 1
  • Heating Oil
  • Stamp Duty
    Higher amount applies when purchasing as buy to let or as an additional property
    £2,500 / £15,000*
  • Tenure Freehold
  • Typical Mortgage
    Click price to use our mortgage calculator

Description

CPS Proposed Lot Breakdown – 14 Annaghmore Road

CPS are delighted to present 14 Annaghmore Road, a highly versatile property offering significant development and investment potential. The property may be sold as one entire holding or divided into individual lots, as outlined below and illustrated on the accompanying images. The guide price for the entire purchasing portfolio is £250,000.00, with individual lot pricing available upon request, subject to agreement.


Lot 1 – Detached Bungalow on Approx. 0.3 Acres

(Red outline on image)

CPS offer the existing four-bedroom detached bungalow with converted roof space, occupying an individual site extending to approximately 0.3 acres.

The property provides generous internal accommodation throughout but requires modernisation, offering purchasers an excellent opportunity to refurbish, extend, or redevelop (subject to the necessary consents). The bungalow benefits from driveway access to both sides and a prominent position along Annaghmore Road.


Bungalow Accommodation

Hall – 2.1m x 4.7m
Front-facing entrance hall with wooden flooring throughout, providing access to the main living accommodation.

Living Room – 5.09m x 5.13m
Spacious front-facing reception room featuring an open fire and radiator.

Living Room Two – 3.45m x 3.67m
Additional reception room suitable for family living or dining.

Kitchen – 3.35m x 6.0m
Generous kitchen with tiled flooring and radiator, offering ample space for kitchen units and dining.

Bedroom 1 – 3.13m x 5.08m
Front-facing double bedroom.

Bedroom 2 – 5.09m x 2.87m
Front-facing double bedroom.

Bedroom 3 – 5.09m x 2.45m
Double bedroom with carpet flooring.

Bathroom – 3.1m x 1.67m
Bathroom fitted with a three-piece suite.

Shower Room – 2.56m x 1.24m
Additional shower room.

Utility Room – 2.56m x 2.76m
Utility space providing additional storage and work area.

First Floor (Converted Roof Space)
Bedroom 4 and WC, together with additional storage areas.


Planning / Status

  • Existing residential dwelling

  • No planning permission required for continued use

  • Adjacent development potential enhanced following outline planning approval in December 2023


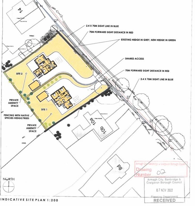
Lot 2 – Development Site 1 (Approx. 0.3 Acres)

(Blue outline – right-hand site on image)

CPS are pleased to offer Site 1, a prime development site extending to approximately 0.3 acres, benefiting from outline planning permission for a single dwelling.

The site enjoys independent access directly from the public road, making it ideal for builders, developers, or private self-build purchasers.

Planning / Status

  • Outline planning permission granted December 2023

  • Planning reference: LA08/2022/1353/O

  • Approximately five years remaining, expiring December 2028 (subject to conditions)


Lot 3 – Development Site 2 (Approx. 0.35 Acres)

(Blue outline – left-hand site on image)

Site 2 extends to approximately 0.35 acres and also benefits from outline planning permission for a dwelling, together with its own separate access from the public road.

Slightly larger than Site 1, this plot offers excellent flexibility in design and layout, making it a highly attractive opportunity for developers or self-build purchasers.

Planning / Status

  • Outline planning permission granted December 2023

  • Planning reference: LA08/2022/1353/O

  • Approximately five years remaining, expiring December 2028


Lot 4 – Sheds, Yard & Outbuildings on Approx. 0.5 Acres

(Yellow outline on image)

CPS also offer an extensive range of sheds, outbuildings, workshop, garage, and yard, extending to approximately 0.5 acres.

This lot is ideally suited to agricultural use, storage, commercial purposes, or potential future redevelopment, subject to planning. A right of way exists from the main road through the yard, running along the front of the bungalow, to provide agricultural access to rear lands.

Outbuildings include:

  • Workshop – approx. 5.3m x 6.5m

  • Extensive sheds – approx. 25m x 5m x 3m

  • Garage – approx. 3.87m x 5.3m

Planning / Status

  • Existing structures

  • No current planning permission

  • Future development subject to the necessary consents


Summary of Lots

Lot Approx. Area Description Planning Status
Lot 1 0.3 acres Detached bungalow Existing dwelling
Lot 2 0.3 acres Development Site 1 Outline PP – Dec 2023 (expires Dec 2028)
Lot 3 0.35 acres Development Site 2 Outline PP – Dec 2023 (expires Dec 2028)
Lot 4 0.5 acres Sheds & yard No current PP

 

Broadband Speed Availability

Ultrafast

Potential Speeds for 14 Annaghmore Road & Two Sites

Max Download
1800
Mbps
Max Upload
220
Mbps
The speeds indicated represent the maximum estimated fixed-line speeds as predicted by Ofcom. Please note that these are estimates, and actual service availability and speeds may differ.

Property Location

Show Map

Mortgage Calculator

Disclaimer: The following calculations act as a guide only, and are based on a typical repayment mortgage model. Financial decisions should not be made based on these calculations and accuracy is not guaranteed. Always seek professional advice before making any financial decisions.

Contact Agent

Contact CPS Armagh

Contact CPS Armagh

Request More Information
Requesting Info about...
14 Annaghmore Road & Two Sites, Annaghmore, BT62 1NA 14 Annaghmore Road & Two Sites, Annaghmore, BT62 1NA

By registering your interest, you acknowledge our Privacy Policy
Ask Holmes
Ask Holmes
Let's find your next home

Are you sure you want to reset the chat?

Checking API...