Contact Agent
Contact Templeton Robinson (Lisburn Road)
3 Bed Semi-Detached House
12 Gransha Green
Andersonstown, Belfast, BT11 8AX
offers over
£235,000
Key Features & Description
Well-maintained semi-detached home in a popular area
Convenient location just off the Glen Road
Bright open-plan kitchen and living space
Three good-sized bedrooms
Family bathroom with plenty of space
Detached out-house, ideal for a number of uses
Close to local schools and Falls Park
Shops and everyday amenities nearby
Easy access to public transport and main routes
Ideal home for families or first-time buyers
Description
This well-presented semi-detached home is ideally located in a popular area just off the Glen Road, offering excellent convenience for family living. The property features a modern open-plan kitchen and living area, providing a bright and sociable space ideal for everyday use. There are three well-proportioned bedrooms, floored roofspace and a generous family bathroom. Externally, the property benefits from a detached out-house, fully insulated with central heating, light and power, perfect for entertaining or additional leisure space.
The home is situated close to a range of highly regarded local schools and is within easy reach of Falls Park, making it particularly appealing to families. Nearby shopping centres and local amenities ensure all day-to-day needs are well catered for.
With strong transport links and a sought-after location, this property offers an excellent opportunity for owner-occupiers. Early viewing is recommended.
This well-presented semi-detached home is ideally located in a popular area just off the Glen Road, offering excellent convenience for family living. The property features a modern open-plan kitchen and living area, providing a bright and sociable space ideal for everyday use. There are three well-proportioned bedrooms, floored roofspace and a generous family bathroom. Externally, the property benefits from a detached out-house, fully insulated with central heating, light and power, perfect for entertaining or additional leisure space.
The home is situated close to a range of highly regarded local schools and is within easy reach of Falls Park, making it particularly appealing to families. Nearby shopping centres and local amenities ensure all day-to-day needs are well catered for.
With strong transport links and a sought-after location, this property offers an excellent opportunity for owner-occupiers. Early viewing is recommended.
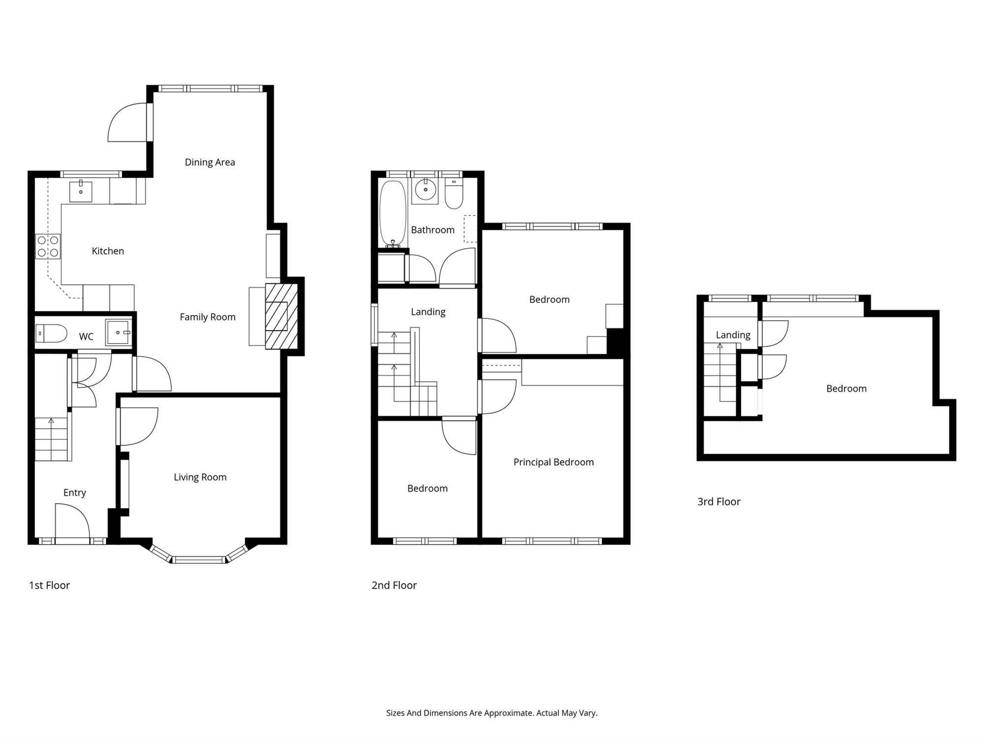
Rooms
Compostie front door to . . .
ENTRANCE HALL:
Solid wood strip flooring, understairs storage.
LIVING ROOM: 11' 6" X 10' 2" (3.51m X 3.10m)
Solid wood strip flooring, media wall, feature bay window.
DOWNSTAIRS W.C.:
Low flush wc, vanity unit with wash hand basin, solid wood strip flooring.
KITCHEN / LIVING / DINING: 22' 0" X 18' 2" (6.71m X 5.54m)
Range of high and low level units, built-in oven, microwave, ceramic hob and extractor fan, plumbed for washing machine, stainless steel sink with mixer tap, laminate work surfaces, feature slate wall, open fire, solid wood strip flooring, recessed lighting.
LANDING:
Carpeted.
FULLY TILED BATHROOM: 7' 10" X 7' 4" (2.39m X 2.24m)
Low flush wc, wash hand basin, bath with overhead shower, gas fired boiler.
BEDROOM (1): 11' 3" X 10' 5" (3.43m X 3.18m)
Carpeted, built-in wardrobes.
BEDROOM (2): 10' 5" X 9' 3" (3.18m X 2.82m)
Laminate flooring.
BEDROOM (3): 8' 9" X 7' 5" (2.67m X 2.26m)
Laminate wood strip flooring. Stairs to . . .
ROOFSPACE: 12' 8" X 10' 2" (3.86m X 3.10m)
Dormer window, light, power and heating, vinyl flooring, under eave storage.
INSULATED OUTHOUSE: 14' 4" X 11' 3" (4.37m X 3.43m)
Light, power, gas heating, laminate wood strip flooring, uPVC door, recessed lighting.
Broadband Speed Availability
Potential Speeds for 12 Gransha Green
Max Download
10000
Mbps
Max Upload
10000
MbpsThe speeds indicated represent the maximum estimated fixed-line speeds as predicted by Ofcom. Please note that these are estimates, and actual service availability and speeds may differ.
Property Location
Mortgage Calculator
Directions
At Gransha shops take first right into Gransha Avenue then turn right onto Gransha Drive. When turning the bend onto Gransha Gardens, take the first right into Gransha Green, Number 12 is on the left hand side.
Contact Agent
Contact Templeton Robinson (Lisburn Road)
Request More Information
Requesting Info about...
12 Gransha Green, Andersonstown, Belfast, BT11 8AX
By registering your interest, you acknowledge our Privacy Policy
By registering your interest, you acknowledge our Privacy Policy