Contact Agent

Contact Simon Brien (Newtownards)

Contact Simon Brien (Newtownards)

3 Bed Terrace House

115 East Street

Newtownards, County Down, BT23 7DE

price £145,000
  • Status For Sale
  • Property Type Terrace
  • Bedrooms 3
  • Receptions 1
  • EPC Rating C74 / C75
  • Stamp Duty
    Higher amount applies when purchasing as buy to let or as an additional property
    £400 / £7,650*
  • Typical Mortgage
    Click price to use our mortgage calculator
EPC Rating

Key Features & Description

  • A stunning, deceptively spacious mid terrace property
  • Extensive modernisation programme just completed
  • Sleek and trendy interiors with a feature open plan layout on the ground floor
  • Located within the centre of the town, easy walking distance to shops, cafés, restaurants, and pubs
  • Victoria Primary is literally across the road, Movilla High within a 5 mins walk, and Regent House Grammar can be reached by car in 10 mins
  • Welcoming entrance hall with wall panelling
  • Massive open plan luxury kitchen/ dining/ living space with direct access to the rear South facing garden
  • Brand-new luxury fitted kitchen with grey shakers, island, integrated appliances, marble effect tiled floor
  • Three great sized bedrooms, bedroom one and two are doubles and have built in robes
  • Brand-new luxury shower room comprising modern white suite
  • Enclosed paved patio to front
  • Large enclosed, South facing, rear garden in paved patio areas, flowerbed, two brick stores and fencing
  • Gas fired central heating system, Worcester boiler
  • Grey Upvc double glazed windows and doors
  • No onward chain
  • Description
    Ideally located within the centre of the town, we offer this fantastic mid terrace property to the open market. Our client has just completed an extensive modernisation programme of 115 East Street which can only genuinely be appreciated upon inspection.

    This deceptively spacious home is presented to an excellent standard throughout and would make a superb first time buy or ideal for those seeking to move into the town centre and downsize. The ground floor comprises a welcoming entrance hall with wall panelling and a massive open plan luxury kitchen/ dining/ living space. The brand-new kitchen is gorgeous and offers grey shaker style units, granite effect tops, island, and excellent range of integrated appliances all open to the dining and living space - perfect for entertaining.

    On the first floor there are three well-proportioned bedrooms, bedroom one and two are doubles and both have built in robes. There is also a brand-new luxury shower room comprising a modern white suite.

    Externally, there is an enclosed paved patio to the front, and a large enclosed, South facing rear garden laid out in paved patio areas, fencing and pedestrian access to rear.

    Interest levels are likely to be high for this property, please contact our Newtownards office on 02891 800700.

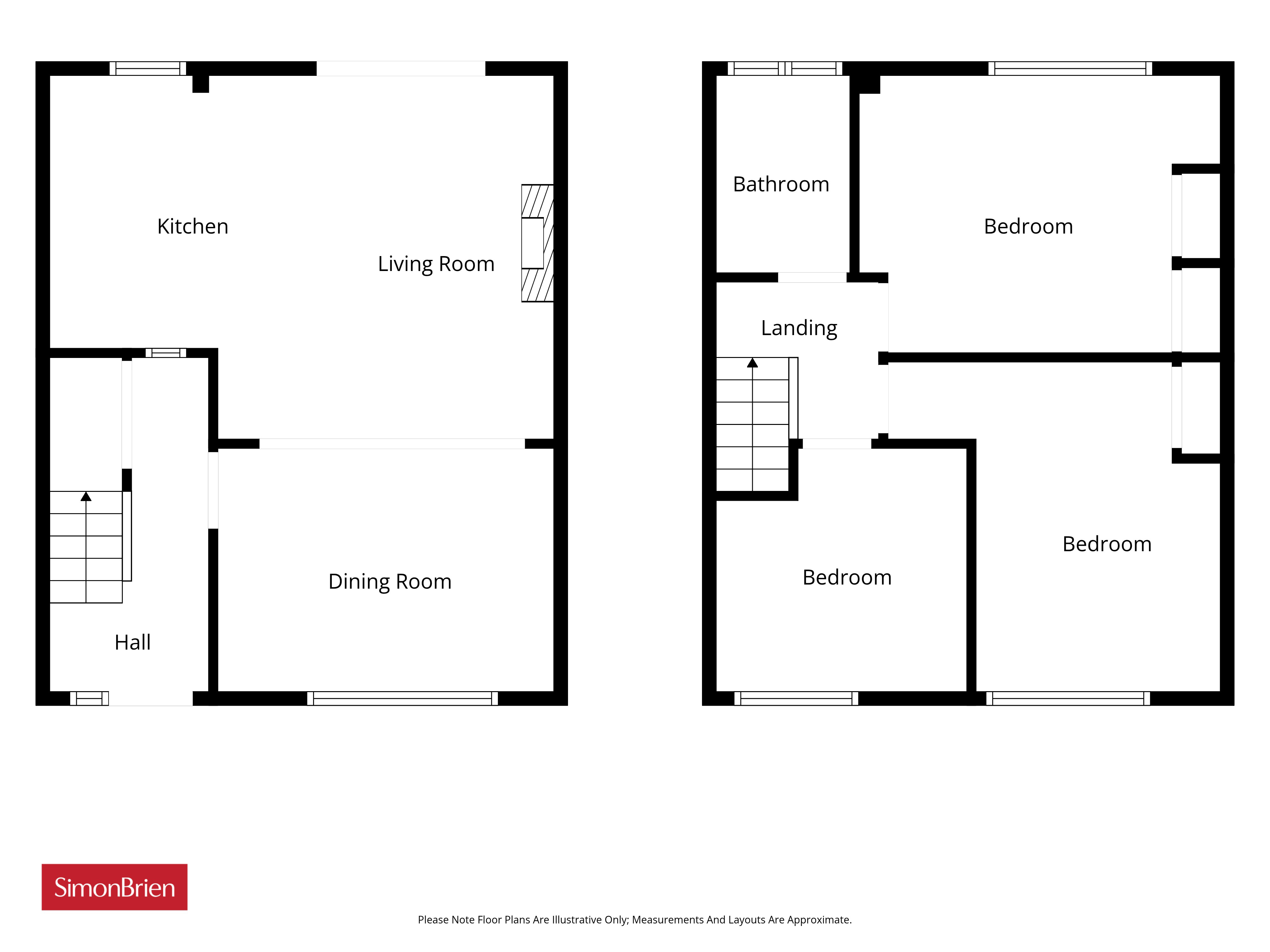
    Rooms

    Ground Floor Grey uPVC double glazed front door with matching side lights to:
    Entrance Hall Marble effect ceramic tiled floor, corniced ceiling, wall panelling, enclosed under stairs cloaks storage, LED recessed spotlighting.
    Large Open Plan Luxury Fitted Kitchen/Living/Dining Space 22'9" X 18'8" (6.93m X 5.70m(Atwidestpoints)) Excellent range of high and low level grey shaker style units, granite effect Formica roll edge work surfaces, 4 ring ceramic hob unit, stainless steel and glass extractor hood, built in oven and microwave, integral fridge freezer, island with matching units and tops, stainless steel sink unit with mixer taps, integrated dishwasher and breakfast bar, concealed lighting, marble effect ceramic tiled floor, LED recessed spotlighting, uPVC double glazed French doors to rear South facing enclosed garden.
    First Floor
    Landing Staircase leading to landing with wall panelling, corniced ceiling and roofspace access.
    Bedroom 1 12'2" X 9'0" (3.70m X 2.74m) Wall panelling, double built in robes, corniced ceiling.
    Bedroom 2 13'5" X 10'5" (4.10m X 3.18m(Atwidestpoints)) Dado rail, double built in robe and concealed Worcester gas boiler.
    Bedroom 3 9'5" X 9'3" (2.87m X 2.82m) Corniced ceiling.
    Luxury Shower Room Modern white suite comprising: Large separate shower cubicle with thermostatically controlled shower, rain head and telephone hand shower, vanity sink unit with mixer taps, push button WC, chrome towel radiator, PVC clad walls, electric wall mounted mirror, LED recessed spotlighting.
    Outside Gardens to front in enclosed paved patio and red brick wall. Large South facing rear gardens laid out in paved patio areas, feature raised flowerbed, fencing, two brick stores, pedestrian access to rear via timber gate, outside light, outside water tap.

    Broadband Speed Availability

    Ultrafast

    Potential Speeds for 115 East Street

    Max Download
    1800
    Mbps
    Max Upload
    220
    Mbps
    The speeds indicated represent the maximum estimated fixed-line speeds as predicted by Ofcom. Please note that these are estimates, and actual service availability and speeds may differ.

    Property Location

    Show Map

    Mortgage Calculator

    Disclaimer: The following calculations act as a guide only, and are based on a typical repayment mortgage model. Financial decisions should not be made based on these calculations and accuracy is not guaranteed. Always seek professional advice before making any financial decisions.

    Contact Agent

    Contact Simon Brien (Newtownards)

    Contact Simon Brien (Newtownards)

    Request More Information
    Requesting Info about...
    115 East Street, Newtownards, County Down, BT23 7DE 115 East Street, Newtownards, County Down, BT23 7DE

    By registering your interest, you acknowledge our Privacy Policy